大阪府茨木市北春日丘2丁目(茨木駅)の一戸建て:物件詳細
交通 所在地 |
駅徒歩 |
価格 |
間取り 建物面積 |
土地面積 私道負担面積 |
物件種目 築年月 |
|
JR東海道本線/茨木 【バス】7分 翠瑚園 停歩4分
大阪府茨木市北春日丘2丁目
|
-
|
2,880万円
|
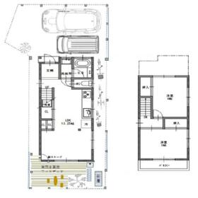
2LDK
58.37m²
|
111.96m²
なし
|
中古一戸建て
2022年7月(築3年6ヶ月)
|
|
南向き、閑静な住宅街
|
| 交通 | JR東海道本線 茨木駅 【バス】 7分 翠瑚園 停歩4分 |
| 所在地 |
大阪府茨木市北春日丘2丁目
|
| 物件種目 |
中古一戸建て |
| 価格 |
2,880万円 |
借地期間・地代(月額) |
- |
| 権利金 |
- |
敷金または保証金 |
- / - |
| 維持費等 |
- |
その他一時金 |
なし |
| 間取り |
2LDK |
建物面積 |
58.37m² |
| 土地権利 |
所有権 |
建物構造 |
木造 |
| 土地面積 |
111.96m²(公簿) |
私道負担面積 |
なし |
| 築年月 |
2022年7月(築3年6ヶ月)
|
都市計画 |
市街化区域 |
| 建物名 |
|
建築確認番号 |
- |
| 用途地域 |
1種低層 |
駐車場 |
有 |
| 建ぺい率 |
50% |
容積率 |
100% |
| 階建 |
2階建 |
接道状況 |
北 4.0m 公道 接面4.0m
・ 北西 4.0m 公道 接面4.0m
|
| 地目 |
宅地 |
地勢 |
平坦 |
| 国土法届出 |
- |
セットバック |
要 |
| アピールポイント |
☆リノベ完成後未入居♪
屋根、外装全面、キッチン(ミーレ食洗器付き)、トイレ、浴槽、洗面
薪ストーブ、薪小屋、ウッドデッキ、内装スイス漆喰、無垢フロアー
アルデ空気清浄機、ガス給湯器新規など多数
☆ウッドデッキで家キャンプも楽しめます♪
|
| リフォーム履歴 |
- |
| リノベーション履歴 |
- |
| 瑕疵保証 |
- |
| 瑕疵保険 |
- |
| 評価・証明書 |
- |
| 備考 |
主要採光面:南向き
|
| エネルギー消費性能 |
- |
| 断熱性能 |
- |
| 目安光熱費 |
- |
| バス・トイレ |
浴室乾燥機 |
| キッチン |
- |
| 設備・サービス |
都市ガス、ウッドデッキ |
| その他 |
- |
| 現況 |
空家 |
引渡可能時期 |
相談 |
| 物件番号 |
1106937103 |
|
|
| 情報公開日 |
2025年9月5日 |
次回更新予定日 |
2025年12月13日 |
| ケータイ用バーコード |
- スマートフォンでこの物件を見る
- スマートフォンからもこの物件をご覧になれます。
|
※「-」と表示されている項目については、情報提供会社にご確認ください。
ここから簡単にお問い合わせをすることができます。
(SSLでの暗号化での送信を希望されるお客さまは
こちら
よりお問い合わせください)
お問い合わせを行う前に
「個人情報の取り扱いについて」を必ずお読みください。
「個人情報の取り扱いについて」に同意いただいた場合は「上記にご同意の上 確認画面へ進む」のボタンをクリックしてください。
個人情報の取り扱いについて
皆さまが送付された個人情報はアットホーム(株)のサーバを経由し、お問い合わせ先の不動産会社にメールまたはFAXにて転送されるためアットホーム(株)にも保管されます。アットホーム(株)で保管された個人情報の取り扱いについては、【こちら】をご覧ください。
また、本画面でご記入いただいた個人情報は、お問い合わせ先の不動産会社でも保管します。 お問い合わせ先の不動産会社が保管する個人情報の取り扱いについては、不動産会社に直接お問い合わせください。
大阪府知事免許(1)第62556号 |
|---|
- 交通:
- JR東海道本線/JR総持寺駅
- 大阪府茨木市西河原2丁目10番20号
- TEL:
- 072-631-0818
- FAX:
- 072-631-0828
- 所属団体:
- (公社)全日本不動産協会会員(公社)近畿地区不動産公正取引協議会加盟
取引態様:媒介  - 99001052
|
- スマートフォンで
この不動産会社を見る

|
- 提携サイト等より掲載されている物件情報につきましては、不動産会社詳細情報にリンクされていないものがあります。
- 物件に関するお問合せは、物件詳細ページの「情報提供会社」に表示されている不動産会社へ直接お願いいたします。
- 間取図は、現況を優先させていただきます。
- 映像は物件の一部を撮影したものです。物件の契約にあたっての最終判断はご自身の判断に基づいて行ってください。
- 仲介手数料について

アットホームは物件情報の適正化に努めております。
内容に誤りがある場合にはこちらへご連絡ください。