愛知県豊田市明和町2丁目(三河豊田駅)の一戸建て:物件詳細
交通 所在地 |
駅徒歩 |
価格 |
間取り 建物面積 |
土地面積 私道負担面積 |
物件種目 築年月 |
愛知環状鉄道/三河豊田
愛知県豊田市明和町2丁目
|
18分
|
3,490万円
|
4LDK
91.52m²
|
120.83m²
なし
|
新築一戸建て
2025年7月
|
駐車場2台分、南向き、制震構造、外壁サイディング、バス1坪以上、全室2面採光、2面採光、24時間換気システム、バリアフリー、閑静な住宅街、整形地、設計住宅性能評価書あり、建設住宅性能評価書あり、耐震基準適合証明書あり、フラット35S適合証明書あり
|
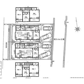
間取図
間取り図です
|
外観
外観写真です。
|
<
その他の画像
>
|
交通 | 愛知環状鉄道 三河豊田駅 徒歩18分 |
所在地 |
愛知県豊田市明和町2丁目
|
物件種目 |
新築一戸建て |
価格 |
3,490万円 |
借地期間・地代(月額) |
- |
権利金 |
- |
敷金または保証金 |
- / - |
維持費等 |
- |
その他一時金 |
なし |
間取り |
4LDK |
建物面積 |
91.52m² |
土地権利 |
所有権 |
建物構造 |
木造 |
土地面積 |
120.83m²(公簿) |
私道負担面積 |
なし |
築年月 |
2025年7月
|
都市計画 |
市街化区域 |
建物名 |
豊田市明和町4期 全2棟・2号棟 |
建築確認番号 |
第HPA-25-04294-2号 |
用途地域 |
1種住居 |
駐車場 |
有 |
建ぺい率 |
60% |
容積率 |
200% |
階建 |
2階建 |
接道状況 |
東 5.4m 公道
|
地目 |
宅地 |
地勢 |
平坦 |
国土法届出 |
- |
セットバック |
- |
アピールポイント |
★ご内覧でクオカードをプレゼント!★内覧予約受付中◆資料請求も可能◇ご成約頂いたお客様には選べるプレゼントをご準備☆ |
リフォーム履歴 |
- |
リノベーション履歴 |
- |
瑕疵保証 |
- |
瑕疵保険 |
- |
評価・証明書 |
■フラット35S適合証明書 フラット35S適合証明書あり ■耐震基準適合証明書 耐震基準適合証明書あり |
備考 |
主要採光面:南向き
建築確認完了検査済証あり
|
エネルギー消費性能 |
- |
断熱性能 |
- |
目安光熱費 |
- |
バス・トイレ |
浴室暖房、浴室乾燥機、オートバス、追焚機能、シャワー付洗面化粧台、温水洗浄便座、トイレ2ヶ所 |
キッチン |
カウンターキッチン、オープンキッチン、システムキッチン、浄水器、3口以上コンロ |
設備・サービス |
全居室収納、クローゼット、床下収納、モニター付インターホン、カードキー、ダブルロックドア、省エネ給湯器、全居室フローリング、上水道、下水道、都市ガス、電気、ルーフバルコニー、ダウンライト、照明器具、火災警報器(報知機)、複層ガラス |
その他 |
- |
現況 |
完成済 |
引渡可能時期 |
相談 |
物件番号 |
1107385403 |
|
|
情報公開日 |
2025年9月20日 |
次回更新予定日 |
2025年11月1日 |
ケータイ用バーコード |
- スマートフォンでこの物件を見る
- スマートフォンからもこの物件をご覧になれます。
|
※「-」と表示されている項目については、情報提供会社にご確認ください。
周辺施設 |
Felna前山店 |
距離 |
810m |
写真を見る |
周辺施設 |
セブンイレブン豊田市明和町3丁目店 |
距離 |
416m |
写真を見る |
周辺施設 |
B&Dドラッグストア豊田前山店 |
距離 |
707m |
写真を見る |
周辺施設 |
豊田市立末野原中学校 |
距離 |
2300m |
写真を見る |
周辺施設 |
豊田市立前山小学校 |
距離 |
1181m |
写真を見る |
周辺施設 |
豊田市立藤藪こども園 |
距離 |
760m |
写真を見る |
周辺施設 |
豊田水源郵便局 |
距離 |
1142m |
写真を見る |
ここから簡単にお問い合わせをすることができます。
(SSLでの暗号化での送信を希望されるお客さまは
こちら
よりお問い合わせください)
お問い合わせを行う前に
「個人情報の取り扱いについて」を必ずお読みください。
「個人情報の取り扱いについて」に同意いただいた場合は「上記にご同意の上 確認画面へ進む」のボタンをクリックしてください。
個人情報の取り扱いについて
皆さまが送付された個人情報はアットホーム(株)のサーバを経由し、お問い合わせ先の不動産会社にメールまたはFAXにて転送されるためアットホーム(株)にも保管されます。アットホーム(株)で保管された個人情報の取り扱いについては、【こちら】をご覧ください。
また、本画面でご記入いただいた個人情報は、お問い合わせ先の不動産会社でも保管します。 お問い合わせ先の不動産会社が保管する個人情報の取り扱いについては、不動産会社に直接お問い合わせください。
愛知県知事免許(3)第22220号 |
---|
- 交通:
- 東海道本線/岡崎駅
- 愛知県岡崎市柱曙3丁目7番地12
- TEL:
- 0120-920-359
- FAX:
- 0564-64-3006
- 所属団体:
- (公社)愛知県宅地建物取引業協会会員東海不動産公正取引協議会加盟
取引態様:一般媒介  - 99000602
|
- スマートフォンで
この不動産会社を見る

|
- 提携サイト等より掲載されている物件情報につきましては、不動産会社詳細情報にリンクされていないものがあります。
- 物件に関するお問合せは、物件詳細ページの「情報提供会社」に表示されている不動産会社へ直接お願いいたします。
- 間取図は、現況を優先させていただきます。
- 映像は物件の一部を撮影したものです。物件の契約にあたっての最終判断はご自身の判断に基づいて行ってください。
- 仲介手数料について

アットホームは物件情報の適正化に努めております。
内容に誤りがある場合にはこちらへご連絡ください。