福岡県北九州市八幡西区木屋瀬3丁目(木屋瀬駅)の一戸建て:物件詳細
交通 所在地 |
駅徒歩 |
価格 |
間取り 建物面積 |
土地面積 私道負担面積 |
物件種目 築年月 |
|
筑豊電気鉄道/木屋瀬
福岡県北九州市八幡西区木屋瀬3丁目
|
4分
|
2,998万円
|
4LDK
112.30m²
|
142.47m²
なし
|
新築一戸建て
2025年12月
|
|
駐車場3台分以上、外壁サイディング、天井高2.5M以上、2×4工法、バス1坪以上、24時間換気システム、オール電化
|
|
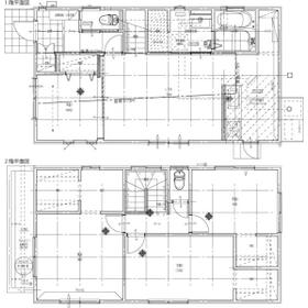
間取図
オール電化住宅!10年設備延長保証付!
|
外観
完成予想パース!
|
その他の画像
|
| 交通 | 筑豊電気鉄道 木屋瀬駅 徒歩4分 |
|---|
| その他の交通 | 筑豊電気鉄道 新木屋瀬駅 徒歩10分 JR筑豊本線 筑前植木駅 徒歩18分 |
| 所在地 |
福岡県北九州市八幡西区木屋瀬3丁目
|
| 物件種目 |
新築一戸建て |
| 価格 |
2,998万円 |
借地期間・地代(月額) |
- |
| 権利金 |
- |
敷金または保証金 |
- / - |
| 維持費等 |
- |
その他一時金 |
なし |
| 間取り |
4LDK |
建物面積 |
112.30m² |
| 土地権利 |
所有権 |
建物構造 |
木造 |
| 土地面積 |
142.47m²(公簿) |
私道負担面積 |
なし |
| 築年月 |
2025年12月
|
都市計画 |
市街化区域 |
| 建物名 |
|
建築確認番号 |
第R07確認建築福住セ北00112号 |
| 用途地域 |
近隣商業 |
駐車場 |
有 |
| 建ぺい率 |
80% |
容積率 |
200% |
| 階建 |
2階建 |
接道状況 |
南 5.0m 公道
|
| 地目 |
宅地 |
地勢 |
平坦 |
| 国土法届出 |
- |
セットバック |
- |
| アピールポイント |
当社キャンペーン対象物件!【仲介手数料無料!】詳細はご連絡ください!
オール電化住宅!食器洗乾燥機付など家事の時短の設備も!
嬉しい設備も満載です!ぜひ一度ご見学ください!!
まずはご連絡ください!【0949-29-6410】
同時開催【無料住宅ローン相談開催中】
30分ほどのお時間でお客様にとって最適な住宅ローンのプランをお伝えします! 相談は無料ですのでお気軽にお問合せください。
〇自分がいくら借りられるのか不安な方
〇月々の支払がどのくらいになるのか知りたい方
マイホームを購入するにあたって不安に感じていることなど、なんでもご相談ください。 |
| リフォーム履歴 |
- |
| リノベーション履歴 |
- |
| 瑕疵保証 |
- |
| 瑕疵保険 |
- |
| 評価・証明書 |
- |
| 備考 |
工事完了予定日:2025年12月
建築確認完了検査済証あり、新築時・増改築時の設計図書あり
木屋瀬小学校徒歩約9分!サンリブ木屋瀬店徒歩約5分!筑豊電鉄木屋瀬徒歩約4分!
オール電化住宅!食器洗乾燥機付など家事の時短の設備も!
嬉しい設備も満載です!ぜひ一度ご見学ください!!
まずはご連絡ください!【0949-29-6410】
|
| エネルギー消費性能 |
- |
| 断熱性能 |
- |
| 目安光熱費 |
- |
| バス・トイレ |
浴室暖房、浴室乾燥機、オートバス、追焚機能、シャワー付洗面化粧台、温水洗浄便座、トイレ2ヶ所 |
| キッチン |
カウンターキッチン、システムキッチン、食器洗浄乾燥機、浄水器、IHクッキングヒーター、3口以上コンロ、グリル |
| 設備・サービス |
全居室収納、ウォークインクローゼット、クローゼット、床下収納、モニター付インターホン、ディンプルキー、ダブルロックドア、省エネ給湯器、全居室フローリング、上水道、下水道、電気、人感センサー付照明、火災警報器(報知機)、複層ガラス |
| その他 |
- |
| 現況 |
建築中 |
引渡可能時期 |
相談 |
| 物件番号 |
1107725303 |
|
|
| 情報公開日 |
2025年10月2日 |
次回更新予定日 |
2025年10月30日 |
| ケータイ用バーコード |
- スマートフォンでこの物件を見る
- スマートフォンからもこの物件をご覧になれます。
|
※「-」と表示されている項目については、情報提供会社にご確認ください。
| 周辺施設 |
サンリブ木屋瀬 |
| 距離 |
452m |
写真を見る |
| 周辺施設 |
マックスバリュ真名子店 |
| 距離 |
1377m |
写真を見る |
| 周辺施設 |
セブンイレブン八幡野面店 |
| 距離 |
895m |
写真を見る |
| 周辺施設 |
北九州市立木屋瀬小学校 |
| 距離 |
659m |
写真を見る |
| 周辺施設 |
木屋瀬駅(筑豊電鉄 筑豊電気鉄道線) |
| 距離 |
322m |
写真を見る |
| 周辺施設 |
新木屋瀬駅(筑豊電鉄 筑豊電気鉄道線) |
| 距離 |
751m |
写真を見る |
ここから簡単にお問い合わせをすることができます。
(SSLでの暗号化での送信を希望されるお客さまは
こちら
よりお問い合わせください)
お問い合わせを行う前に
「個人情報の取り扱いについて」を必ずお読みください。
「個人情報の取り扱いについて」に同意いただいた場合は「上記にご同意の上 確認画面へ進む」のボタンをクリックしてください。
個人情報の取り扱いについて
皆さまが送付された個人情報はアットホーム(株)のサーバを経由し、お問い合わせ先の不動産会社にメールまたはFAXにて転送されるためアットホーム(株)にも保管されます。アットホーム(株)で保管された個人情報の取り扱いについては、【こちら】をご覧ください。
また、本画面でご記入いただいた個人情報は、お問い合わせ先の不動産会社でも保管します。 お問い合わせ先の不動産会社が保管する個人情報の取り扱いについては、不動産会社に直接お問い合わせください。
福岡県知事免許(3)第17564号 |
|---|
- 交通:
- JR筑豊本線/直方駅
- 福岡県直方市大字感田1855-1
- TEL:
- 0949-29-6410
- FAX:
- 0949-29-6411
- 所属団体:
- (公社)福岡県宅地建物取引業協会会員(一社)九州不動産公正取引協議会加盟
取引態様:一般媒介  - 99000700
|
- スマートフォンで
この不動産会社を見る

|
- 提携サイト等より掲載されている物件情報につきましては、不動産会社詳細情報にリンクされていないものがあります。
- 物件に関するお問合せは、物件詳細ページの「情報提供会社」に表示されている不動産会社へ直接お願いいたします。
- 間取図は、現況を優先させていただきます。
- 映像は物件の一部を撮影したものです。物件の契約にあたっての最終判断はご自身の判断に基づいて行ってください。
- 仲介手数料について

アットホームは物件情報の適正化に努めております。
内容に誤りがある場合にはこちらへご連絡ください。