大阪府大阪市平野区流町2丁目(平野駅)の一戸建て:物件詳細
交通 所在地 |
駅徒歩 |
価格 |
間取り 建物面積 |
土地面積 私道負担面積 |
物件種目 築年月 |
地下鉄谷町線/平野
大阪府大阪市平野区流町2丁目
|
8分
|
4,180万円
|
3LDK
95.38m²
|
50.57m²
なし
|
新築一戸建て
2025年8月
|
閑静な住宅街
|
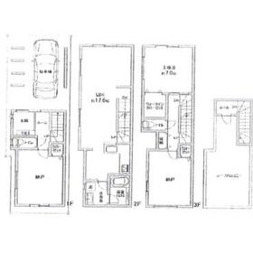
間取図
|
外観
|
<
その他の画像
>
|
交通 | 地下鉄谷町線 平野駅 徒歩8分 |
---|
その他の交通 | 地下鉄谷町線 喜連瓜破駅 徒歩14分 JR関西本線 平野駅 徒歩22分 |
所在地 |
大阪府大阪市平野区流町2丁目
|
物件種目 |
新築一戸建て |
価格 |
4,180万円 |
借地期間・地代(月額) |
- |
権利金 |
- |
敷金または保証金 |
- / - |
維持費等 |
- |
その他一時金 |
なし |
間取り |
3LDK |
建物面積 |
95.38m² |
土地権利 |
所有権 |
建物構造 |
木造ガルバリウム鋼板 |
土地面積 |
50.57m²(公簿) |
私道負担面積 |
なし |
築年月 |
2025年8月
|
都市計画 |
市街化区域 |
建物名 |
大阪市平野区流町2丁目 B号地 新築戸建 |
建築確認番号 |
第KKK02405181号 |
用途地域 |
1種住居 |
駐車場 |
有 |
建ぺい率 |
80% |
容積率 |
200% |
階建 |
3階建 |
接道状況 |
西 4.0m 公道 接面6.0m
|
地目 |
宅地 |
地勢 |
- |
国土法届出 |
- |
セットバック |
- |
アピールポイント |
■スーパーまで徒歩約5分
■コンビニまで徒歩約6分
お気軽にお問い合わせください!
<センチュリー21ランドについて>
●センチュリー21ランド西田辺店は・・・
お客様のニーズに寄り添い、大切なお住まいのご購入に最後まで伴走いたします!
●リフォームのご相談も承っております。
●購入・売却・ローンのご相談・・・なんでもお気軽にご相談くださいませ!
〇大阪メトロ御堂筋線「西田辺」駅より徒歩1分!
〇営業時間:10:00~20:00(火曜日・水曜日定休日※祝日は営業)
事前にご連絡いただけますと、スムーズにご案内が可能です。
ご連絡お待ちしております!
|
リフォーム履歴 |
- |
リノベーション履歴 |
- |
瑕疵保証 |
- |
瑕疵保険 |
- |
評価・証明書 |
- |
備考 |
主要採光面:西向き
■閑静な住宅地
■駐車1台可能(車種による)、景観法、航空法、準防火地域
|
エネルギー消費性能 |
- |
断熱性能 |
- |
目安光熱費 |
- |
バス・トイレ |
シャワー付洗面化粧台、トイレ2ヶ所 |
キッチン |
システムキッチン、3口以上コンロ |
設備・サービス |
全居室収納、シューズインクローゼット、クローゼット、上水道、下水道、都市ガス、電気、ルーフバルコニー |
その他 |
- |
現況 |
完成済 |
引渡可能時期 |
相談 |
物件番号 |
1108235303 |
|
|
情報公開日 |
2025年10月17日 |
次回更新予定日 |
2025年10月31日 |
ケータイ用バーコード |
- スマートフォンでこの物件を見る
- スマートフォンからもこの物件をご覧になれます。
|
※「-」と表示されている項目については、情報提供会社にご確認ください。
周辺施設 |
万代平野流町店 |
距離 |
379m |
写真を見る |
周辺施設 |
コノミヤ平野西店 |
距離 |
870m |
写真を見る |
周辺施設 |
ローソン平野喜連一丁目店 |
距離 |
452m |
写真を見る |
周辺施設 |
セブンイレブン大阪喜連5丁目店 |
距離 |
409m |
写真を見る |
周辺施設 |
ドラッグストアライフォート平野流町店 |
距離 |
389m |
写真を見る |
周辺施設 |
スギ薬局平野西店 |
距離 |
450m |
写真を見る |
周辺施設 |
大阪平野西郵便局 |
距離 |
416m |
写真を見る |
周辺施設 |
大阪市立平野南小学校 |
距離 |
770m |
写真を見る |
ここから簡単にお問い合わせをすることができます。
(SSLでの暗号化での送信を希望されるお客さまは
こちら
よりお問い合わせください)
お問い合わせを行う前に
「個人情報の取り扱いについて」を必ずお読みください。
「個人情報の取り扱いについて」に同意いただいた場合は「上記にご同意の上 確認画面へ進む」のボタンをクリックしてください。
個人情報の取り扱いについて
皆さまが送付された個人情報はアットホーム(株)のサーバを経由し、お問い合わせ先の不動産会社にメールまたはFAXにて転送されるためアットホーム(株)にも保管されます。アットホーム(株)で保管された個人情報の取り扱いについては、【こちら】をご覧ください。
また、本画面でご記入いただいた個人情報は、お問い合わせ先の不動産会社でも保管します。 お問い合わせ先の不動産会社が保管する個人情報の取り扱いについては、不動産会社に直接お問い合わせください。
国土交通大臣免許(2)第9508号 |
---|
- 交通:
- 地下鉄御堂筋線/西田辺駅
- 大阪府大阪市阿倍野区昭和町5丁目12-20
- TEL:
- 0120-992-668
- FAX:
- 06-6627-6629
- 所属団体:
- (公社)全日本不動産協会会員(公社)近畿地区不動産公正取引協議会加盟
取引態様:媒介  - 99001199
|
- スマートフォンで
この不動産会社を見る

|
- 提携サイト等より掲載されている物件情報につきましては、不動産会社詳細情報にリンクされていないものがあります。
- 物件に関するお問合せは、物件詳細ページの「情報提供会社」に表示されている不動産会社へ直接お願いいたします。
- 間取図は、現況を優先させていただきます。
- 映像は物件の一部を撮影したものです。物件の契約にあたっての最終判断はご自身の判断に基づいて行ってください。
- 仲介手数料について

アットホームは物件情報の適正化に努めております。
内容に誤りがある場合にはこちらへご連絡ください。