愛知県豊川市桜町2丁目(小田渕駅)の一戸建て:物件詳細
交通 所在地 |
駅徒歩 |
価格 |
間取り 建物面積 |
土地面積 私道負担面積 |
物件種目 築年月 |
|
名鉄名古屋本線/小田渕
愛知県豊川市桜町2丁目
|
12分
|
2,780万円
|
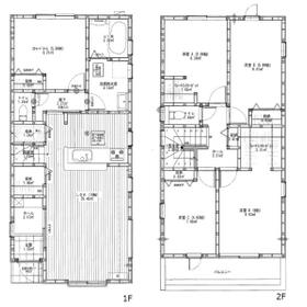
4SLDK
105.80m²
|
154.06m²
なし
|
新築一戸建て
2025年12月
|
|
駐車場2台分、外壁サイディング、バス1坪以上、2面採光、24時間換気システム、バリアフリー、閑静な住宅街、整形地、設計住宅性能評価書あり、建設住宅性能評価書あり、瑕疵保険検査基準に適合
|
| 交通 | 名鉄名古屋本線 小田渕駅 徒歩12分 |
| 所在地 |
愛知県豊川市桜町2丁目
|
| 物件種目 |
新築一戸建て |
| 価格 |
2,780万円 |
借地期間・地代(月額) |
- |
| 権利金 |
- |
敷金または保証金 |
- / - |
| 維持費等 |
- |
その他一時金 |
なし |
| 間取り |
4SLDK(LDK16S5.5洋室6洋室5.6洋室5洋室4.6) |
建物面積 |
105.80m² |
| 土地権利 |
所有権 |
建物構造 |
木造 |
| 土地面積 |
154.06m²(公簿) |
私道負担面積 |
なし |
| 築年月 |
2025年12月
|
都市計画 |
市街化区域 |
| 建物名 |
豊川第73桜町全4棟 4号棟 新築 |
建築確認番号 |
第KS125-0420-53800号 |
| 用途地域 |
1種中高 |
駐車場 |
有 |
| 建ぺい率 |
60% |
容積率 |
160% |
| 階建 |
2階建 |
接道状況 |
南東 4.0m 公道 接面5.2m
|
| 地目 |
宅地 |
地勢 |
- |
| 国土法届出 |
- |
セットバック |
済 |
| アピールポイント |
♪当店でご成約のお客様へリビングエアコンプレゼント♪
物件探し中に目に留まる物件があったら!
「内覧をしておいたほうがいい」合図かもしれません。
“ネット掲載の物件情報”
だけでは分からない事って多いですよね…
内覧に来ていただければ現地で沢山の発見があります!
写真や文字の説明には無い物件の詳細や雰囲気を
現地でぜひご確認ください(^^♪
-------------------------------------------------------
気になるところは時間を掛けてでも!じっくりご自由にご内覧下さい♪
お客様の中の疑問にひとつひとつお答えしていきます♪
\ご案内・随時受付中 /
営業時間 9:00~18:00
定休日 火・水曜日(GW・年末年始休業)
───・───・───・───・───
=無料電話・資料請求=
=お気軽にお問い合わせ下さい=
───・───・───・───・───
|
| リフォーム履歴 |
- |
| リノベーション履歴 |
- |
| 瑕疵保証 |
- |
| 瑕疵保険 |
瑕疵保険検査基準に適合 |
| 評価・証明書 |
- |
| 備考 |
主要採光面:南西向き
建築確認完了検査済証あり、新築時・増改築時の設計図書あり
生活施設が徒歩圏内に充実しています♪
名鉄名古屋本線『小田渕駅』まで徒歩12分で通勤・通学もしやすい立地です!
居室・収納豊富!4SLDK+ウォークインクローゼット付!、宅地造成工事規制区域、建築基準法第22条区域、下水処理区域
|
| エネルギー消費性能 |
- |
| 断熱性能 |
- |
| 目安光熱費 |
- |
| バス・トイレ |
浴室乾燥機、追焚機能、シャワー付洗面化粧台、トイレ2ヶ所 |
| キッチン |
カウンターキッチン、システムキッチン、浄水器、3口以上コンロ、グリル |
| 設備・サービス |
全居室収納、ウォークインクローゼット、クローゼット、床下収納、モニター付インターホン、全居室フローリング、上水道、下水道、都市ガス、電気、庭、ダウンライト、火災警報器(報知機)、複層ガラス |
| その他 |
- |
| 現況 |
建築中 |
引渡可能時期 |
2025年12月下旬予定 |
| 物件番号 |
1108495703 |
|
|
| 情報公開日 |
2025年10月26日 |
次回更新予定日 |
2026年1月1日 |
| ケータイ用バーコード |
- スマートフォンでこの物件を見る
- スマートフォンからもこの物件をご覧になれます。
|
※「-」と表示されている項目については、情報提供会社にご確認ください。
ここから簡単にお問い合わせをすることができます。
(SSLでの暗号化での送信を希望されるお客さまは
こちら
よりお問い合わせください)
お問い合わせを行う前に
「個人情報の取り扱いについて」を必ずお読みください。
「個人情報の取り扱いについて」に同意いただいた場合は「上記にご同意の上 確認画面へ進む」のボタンをクリックしてください。
個人情報の取り扱いについて
皆さまが送付された個人情報はアットホーム(株)のサーバを経由し、お問い合わせ先の不動産会社にメールまたはFAXにて転送されるためアットホーム(株)にも保管されます。アットホーム(株)で保管された個人情報の取り扱いについては、【こちら】をご覧ください。
また、本画面でご記入いただいた個人情報は、お問い合わせ先の不動産会社でも保管します。 お問い合わせ先の不動産会社が保管する個人情報の取り扱いについては、不動産会社に直接お問い合わせください。
国土交通大臣免許(1)第10621号 |
|---|
- 交通:
- 名鉄豊川線/豊川稲荷駅
- 愛知県豊川市本野ケ原3丁目19-1
- TEL:
- 0533-95-5021
- FAX:
- 0533-95-5022
- 所属団体:
- (公社)愛知県宅地建物取引業協会会員東海不動産公正取引協議会加盟
取引態様:媒介  - 99001183
|
- スマートフォンで
この不動産会社を見る

|
- 提携サイト等より掲載されている物件情報につきましては、不動産会社詳細情報にリンクされていないものがあります。
- 物件に関するお問合せは、物件詳細ページの「情報提供会社」に表示されている不動産会社へ直接お願いいたします。
- 間取図は、現況を優先させていただきます。
- 映像は物件の一部を撮影したものです。物件の契約にあたっての最終判断はご自身の判断に基づいて行ってください。
- 仲介手数料について

アットホームは物件情報の適正化に努めております。
内容に誤りがある場合にはこちらへご連絡ください。