栃木県栃木市箱森町(新栃木駅)の一戸建て:物件詳細
				
					
					
				
														
	
		
			
			交通 所在地 | 
			駅徒歩 | 
			価格 | 
			間取り 建物面積 | 
			土地面積 私道負担面積 | 
			物件種目 築年月 | 
			
		
		
			
								| 
					 東武日光線/新栃木
										 
										 
					栃木県栃木市箱森町 
				 | 
								
					 
					23分 
					 
				 | 
								
					 
					530万円
					 
				 | 
								
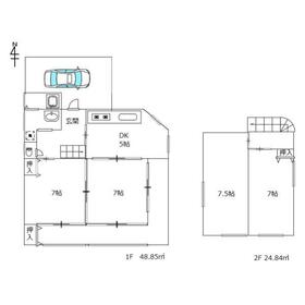
					 4DK 
					73.69m² 
				 | 
								
					 181.39m² 
					有 440.00m²(共有持分1/9) 
				 | 
								
					 中古一戸建て 
					1983年2月(築42年10ヶ月)
																				 
				 | 
			
						
				| 
					  南向き、2面採光、閑静な住宅街 
				 | 
			
								
	
		
		
		
					| 
			 間取図 
			
			
			
			
			
		 | 
		
			 外観 
			
			
			
			
			
		 | 
				
		
		
			
				
										<
										
						
							 
							その他の画像
						 
					 
					
										>
									 
				
			 
		 | 
	
				
 
	
		
			
																			          | 交通 | 東武日光線 新栃木駅 徒歩23分  | 
			
				| 所在地 | 
				
					栃木県栃木市箱森町
				 | 
			
		
		
			
				| 物件種目 | 
				中古一戸建て | 
			
			
				| 価格 | 
				530万円 | 
				借地期間・地代(月額) | 
				-  | 
			
			
				| 権利金 | 
				- | 
				敷金または保証金 | 
				- / - | 
			
			
				| 維持費等 | 
				- | 
				その他一時金 | 
				なし | 
			
		
		
			
				| 間取り | 
				4DK(和室7和室7DK5和室7洋室7.5) | 
				建物面積 | 
				73.69m² | 
			
			
				| 土地権利 | 
				所有権 | 
				建物構造 | 
				木造 | 
			
			
				| 土地面積 | 
				181.39m²(公簿) | 
				私道負担面積 | 
				有 440.00m²(共有持分1/9) | 
			
			
				| 築年月 | 
				1983年2月(築42年10ヶ月)
												 | 
				都市計画 | 
				市街化区域 | 
			
			
				| 建物名 | 
				栃木市箱森町 中古戸建 | 
				建築確認番号 | 
				- | 
			
			
				| 用途地域 | 
				1種低層 | 
				駐車場 | 
				有 | 
			
			
				| 建ぺい率 | 
				40% | 
				容積率 | 
				60% | 
			
			
				| 階建 | 
				2階建 | 
				接道状況 | 
				
												東 4.0m 私道 接面18.0m
								 | 
			
			
				| 地目 | 
				宅地 | 
				地勢 | 
				平坦 | 
			
			
				| 国土法届出 | 
				- | 
				セットバック | 
				- | 
			
			
	| アピールポイント | 
	徒歩圏内にスーパーやコンビニ、学校もあり生活利便性◎閑静な住宅地で小さなお子様がいるご家族にも安心です。 
 | 
			
				| リフォーム履歴 | 
				- | 
			
			
				| リノベーション履歴 | 
				- | 
			
			
				| 瑕疵保証 | 
				- | 
			
			
				| 瑕疵保険 | 
				- | 
			
			
				| 評価・証明書 | 
				- | 
			
			
				| 備考 | 
				
					 
																	主要採光面:南向き
											 						空き家バンク登録物件
											 						※契約不適合責任免責※共有私道持分有※残置物処分費売主様負担、景観法、宅地造成工事規制区域
										 
					
				 | 
			
		
				
		
		| エネルギー消費性能 | 
		- | 
	
	
		| 断熱性能 | 
		- | 
	
	
		| 目安光熱費 | 
		- | 
	
	
		
									
				| バス・トイレ | 
				- | 
			
						
				| キッチン | 
				- | 
			
						
				| 設備・サービス | 
				クローゼット、上水道、下水道、電気、庭 | 
			
						
				| その他 | 
				- | 
			
					
		
			
				| 現況 | 
				空家 | 
				引渡可能時期 | 
				相談 | 
			
			
				| 物件番号 | 
				1108680903 | 
								  | 
				  | 
							
			
				| 情報公開日 | 
				2025年11月1日 | 
				次回更新予定日 | 
				2025年11月16日 | 
			
						
				| ケータイ用バーコード | 
					
						
							
							
								
									- スマートフォンでこの物件を見る
 
									- スマートフォンからもこの物件をご覧になれます。
 
								 
							 
						 
					 | 
				
					
	 
	 									※「-」と表示されている項目については、情報提供会社にご確認ください。
						
	
			
			
			
				
					
						
							| 周辺施設 | 
							セブンイレブン栃木運動公園前店 | 
						
						
							| 距離 | 
							489m | 
							写真を見る | 						
					
				
			 
		 
					
			
				
					
						
							| 周辺施設 | 
							イオン栃木店 | 
						
						
							| 距離 | 
							861m | 
							写真を見る | 						
					
				
			 
		 
		 
				
			
			
				
					
						
							| 周辺施設 | 
							かましん栃木平柳店 | 
						
						
							| 距離 | 
							1276m | 
							写真を見る | 						
					
				
			 
		 
					
			
				
					
						
							| 周辺施設 | 
							ユニクロ栃木店 | 
						
						
							| 距離 | 
							838m | 
							写真を見る | 						
					
				
			 
		 
		 
				
			
			
				
					
						
							| 周辺施設 | 
							栃木大町郵便局 | 
						
						
							| 距離 | 
							833m | 
							写真を見る | 						
					
				
			 
		 
					
			
				
					
						
							| 周辺施設 | 
							栃木銀行栃木北支店 | 
						
						
							| 距離 | 
							1000m | 
							写真を見る | 						
					
				
			 
		 
		 
		 									
												
					
					  ここから簡単にお問い合わせをすることができます。
(SSLでの暗号化での送信を希望されるお客さまは
													こちら
												よりお問い合わせください)
					
					
						
						
					
					お問い合わせを行う前に
「個人情報の取り扱いについて」を必ずお読みください。
「個人情報の取り扱いについて」に同意いただいた場合は「上記にご同意の上 確認画面へ進む」のボタンをクリックしてください。 
 
					
					
						個人情報の取り扱いについて
						皆さまが送付された個人情報はアットホーム(株)のサーバを経由し、お問い合わせ先の不動産会社にメールまたはFAXにて転送されるためアットホーム(株)にも保管されます。アットホーム(株)で保管された個人情報の取り扱いについては、【こちら】をご覧ください。
						また、本画面でご記入いただいた個人情報は、お問い合わせ先の不動産会社でも保管します。 お問い合わせ先の不動産会社が保管する個人情報の取り扱いについては、不動産会社に直接お問い合わせください。
					 
					 
					
														
				  
				  
					栃木県知事免許(1)第5338号  | 
|---|
- 交通:
 - JR両毛線/栃木駅
 - 栃木県栃木市河合町2-9 
 - TEL:
 - 0282-22-0017
 - FAX:
 - 0282-22-0020
 - 所属団体:
 - (公社)栃木県宅地建物取引業協会会員(公社)首都圏不動産公正取引協議会加盟
 
 取引態様:専任媒介  - 99001251
 
  | 
						  						  
							
							  
								- スマートフォンで
 この不動産会社を見る 
								    
							   
							 
						   | 
						  						
					  
					 
				   
				 
							
						
												
			
					
- 提携サイト等より掲載されている物件情報につきましては、不動産会社詳細情報にリンクされていないものがあります。
 
- 物件に関するお問合せは、物件詳細ページの「情報提供会社」に表示されている不動産会社へ直接お願いいたします。
 
- 間取図は、現況を優先させていただきます。
 
- 映像は物件の一部を撮影したものです。物件の契約にあたっての最終判断はご自身の判断に基づいて行ってください。
 
- 仲介手数料について

 
アットホームは物件情報の適正化に努めております。
内容に誤りがある場合にはこちらへご連絡ください。