神奈川県藤沢市本町3丁目(藤沢本町駅)の一戸建て:物件詳細
交通 所在地 |
駅徒歩 |
価格 |
間取り 建物面積 |
土地面積 私道負担面積 |
物件種目 築年月 |
|
小田急江ノ島線/藤沢本町
神奈川県藤沢市本町3丁目
|
5分
|
4,290万円
|
2SLDK
88.19m²
|
57.90m²
なし
|
新築一戸建て
2025年11月
|
|
外壁サイディング、バス1坪以上、全室2面採光、3面採光、24時間換気システム、フラット35適合証明書あり、フラット35S適合証明書あり
|
|
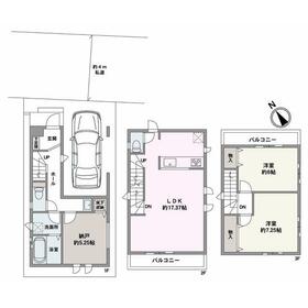
間取図
17帖超の2階LDKは3面採光。2階・3階にバルコニーがあり、陽当たりと通風にも配慮された設計です。
|
外観
【外観写真】小田急江ノ島線「藤沢本町」駅まで徒歩5分!全3棟の街並みに佇む、2LDK+Sの新築戸建。
|
<
その他の画像
>
|
| 交通 | 小田急江ノ島線 藤沢本町駅 徒歩5分 |
| 所在地 |
神奈川県藤沢市本町3丁目
|
| 物件種目 |
新築一戸建て |
| 価格 |
4,290万円 |
借地期間・地代(月額) |
- |
| 権利金 |
- |
敷金または保証金 |
- / - |
| 維持費等 |
- |
その他一時金 |
- |
| 間取り |
2SLDK |
建物面積 |
88.19m² |
| 土地権利 |
所有権 |
建物構造 |
木造 |
| 土地面積 |
57.90m²(公簿) |
私道負担面積 |
なし |
| 築年月 |
2025年11月
|
都市計画 |
市街化区域 |
| 建物名 |
藤沢市本町3丁目 B号棟 |
建築確認番号 |
第HPA-25-07243-1号 |
| 用途地域 |
1種住居 |
駐車場 |
有 無料 |
| 建ぺい率 |
60% |
容積率 |
200% |
| 階建 |
3階建 |
接道状況 |
北東 4.0m 私道
|
| 地目 |
宅地 |
地勢 |
- |
| 国土法届出 |
- |
セットバック |
- |
| アピールポイント |
駅徒歩5分!南西向き×全居室6帖以上のゆとりある2LDK+S◎
◇◆「藤沢市本町3丁目 B号棟」のオススメPOINT◆◇
◆アクセス
・小田急江ノ島線「藤沢本町」駅まで徒歩5分
◆第一種住居地域に位置する、全3棟の新築戸建が誕生。
◆北東側前面道路は幅員約4.0m。段差が少なく車の入出庫もスムーズ。
◆リビング階段&対面式キッチンが採用された17帖超の2階LDK。
◆約5.25帖の広々とした納戸有り。
◆南西側・北東側の2箇所にバルコニーが備わっています。
◆「子育てグリーン住宅支援事業」対象住宅です。
◆周辺環境
・本町小学校 徒歩12分
・第一中学校 徒歩4分
・スーパーセンタートライアル藤沢羽鳥店 徒歩13分 |
| リフォーム履歴 |
- |
| リノベーション履歴 |
- |
| 瑕疵保証 |
- |
| 瑕疵保険 |
- |
| 評価・証明書 |
■フラット35適合証明書 フラット35適合証明書あり ■フラット35S適合証明書 フラット35S適合証明書あり |
| 備考 |
主要採光面:南西向き
総戸数:3戸
※建物配置は実際とは多少異なる場合があります。※物件価格には、網戸・照明器具・カーテンレール・エアコン・TVアンテナ・門柱・門扉は含まれておりません。※外構は実際とは異なります。又、車は価格に含まれておりません。※サッシ位置及びサイズは、実際とは異なる場合があります。※フラット35利用の場合は適合証明検査申請料が別途必要となります。株式会社ファミリーサービスを利用によるフラット利用の場合は55000円(税込)、それ以外のフラット利用の場合は105000円(税込)申し受けます。※司法書士・土地家屋調査士は売主指定。※天候等、造成工事及び建築工事の進捗状況により、引渡しが遅れる場合があります。
|
| エネルギー消費性能 |
★★★(削減率20%達成) |
| 断熱性能 |
5段階/7段階中 |
| 目安光熱費 |
- |
| バス・トイレ |
浴室乾燥機、オートバス、追焚機能、シャワー付洗面化粧台、温水洗浄便座、トイレ2ヶ所、浴室に窓あり |
| キッチン |
カウンターキッチン、システムキッチン、浄水器、3口以上コンロ |
| 設備・サービス |
クローゼット、床下収納、モニター付インターホン、全居室フローリング、上水道、下水道、都市ガス、電気、複層ガラス |
| その他 |
- |
| 現況 |
建築中 |
引渡可能時期 |
相談 |
| 物件番号 |
1110008514 |
|
|
| 情報公開日 |
2025年11月24日 |
次回更新予定日 |
2025年12月25日 |
| ケータイ用バーコード |
- スマートフォンでこの物件を見る
- スマートフォンからもこの物件をご覧になれます。
|
※「-」と表示されている項目については、情報提供会社にご確認ください。
ここから簡単にお問い合わせをすることができます。
(SSLでの暗号化での送信を希望されるお客さまは
こちら
よりお問い合わせください)
お問い合わせを行う前に
「個人情報の取り扱いについて」を必ずお読みください。
「個人情報の取り扱いについて」に同意いただいた場合は「上記にご同意の上 確認画面へ進む」のボタンをクリックしてください。
個人情報の取り扱いについて
皆さまが送付された個人情報はアットホーム(株)のサーバを経由し、お問い合わせ先の不動産会社にメールまたはFAXにて転送されるためアットホーム(株)にも保管されます。アットホーム(株)で保管された個人情報の取り扱いについては、【こちら】をご覧ください。
また、本画面でご記入いただいた個人情報は、お問い合わせ先の不動産会社でも保管します。 お問い合わせ先の不動産会社が保管する個人情報の取り扱いについては、不動産会社に直接お問い合わせください。
国土交通大臣免許(9)第4118号 |
|---|
- 交通:
- JR東海道本線/藤沢駅
- 神奈川県藤沢市南藤沢5-9 朝日生命藤沢ビル8F
- TEL:
- 0120-397-600
- FAX:
- 0466-47-2236
- 所属団体:
- (一社)不動産協会会員(一社)不動産流通経営協会会員(公社)東京都宅地建物取引業協会会員(公社)首都圏不動産公正取引協議会加盟
取引態様:媒介  - 00270146
|
- スマートフォンで
この不動産会社を見る

|
- 提携サイト等より掲載されている物件情報につきましては、不動産会社詳細情報にリンクされていないものがあります。
- 物件に関するお問合せは、物件詳細ページの「情報提供会社」に表示されている不動産会社へ直接お願いいたします。
- 間取図は、現況を優先させていただきます。
- 映像は物件の一部を撮影したものです。物件の契約にあたっての最終判断はご自身の判断に基づいて行ってください。
- 仲介手数料について

アットホームは物件情報の適正化に努めております。
内容に誤りがある場合にはこちらへご連絡ください。