埼玉県所沢市大字上安松(新秋津駅)の一戸建て:物件詳細
交通 所在地 |
駅徒歩 |
価格 |
間取り 建物面積 |
土地面積 私道負担面積 |
物件種目 築年月 |
|
JR武蔵野線/新秋津
埼玉県所沢市大字上安松
|
10分
|
5,780万円
|
4LDK
106.91m²
|
134.52m²
有 44.00m²
|
新築一戸建て
2026年8月
|
|
駐車場2台分、南向き、全室2面採光、2面採光、閑静な住宅街
|
|
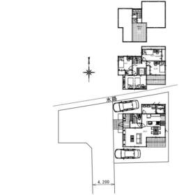
間取図
間取り図
|
外観
現地外観写真(2026年3月12日)
|
<
その他の画像
>
|
| 交通 | JR武蔵野線 新秋津駅 徒歩10分 |
|---|
| その他の交通 | 西武池袋線 秋津駅 徒歩14分 西武新宿線 所沢駅 徒歩25分 |
| 所在地 |
埼玉県所沢市大字上安松
|
| 物件種目 |
新築一戸建て |
| 価格 |
5,780万円 |
借地期間・地代(月額) |
- |
| 権利金 |
- |
敷金または保証金 |
- / - |
| 維持費等 |
- |
その他一時金 |
- |
| 間取り |
4LDK |
建物面積 |
106.91m² |
| 土地権利 |
所有権 |
建物構造 |
木造 |
| 土地面積 |
134.52m²(実測) |
私道負担面積 |
有 44.00m² |
| 築年月 |
2026年8月
|
都市計画 |
市街化区域 |
| 建物名 |
所沢市上安松 新築戸建 |
建築確認番号 |
JTC25Y-AZ0512-00号 |
| 用途地域 |
1種低層 |
駐車場 |
有 |
| 建ぺい率 |
50% |
容積率 |
80% |
| 階建 |
2階建 |
接道状況 |
西 4.2m 私道
|
| 地目 |
宅地 |
地勢 |
平坦 |
| 国土法届出 |
- |
セットバック |
- |
| アピールポイント |
*住宅ローンのご相談*
○どこの銀行がお勧めなの?適切な借入額は?などの疑問にお答えすべく、当社では最短15分で土・日・祝日関係なく事前審査が行えるようになりました!
○現在、他の借り入れが有って、ローンが心配な方にも、ご都合に合わせて最適なご提案をさせて頂きますので、お気軽にご相談ください。 |
| リフォーム履歴 |
- |
| リノベーション履歴 |
- |
| 瑕疵保証 |
- |
| 瑕疵保険 |
- |
| 評価・証明書 |
- |
| 備考 |
主要採光面:南向き
総戸数:1戸
法令等制限:景観法、宅地造成工事規制区域、都市再生特別地区、高さ最高限度
家族と過ごす時間をもっと大切にしたいという方にぴったりの物件です。キッチンは対面式で、料理をしながらリビングの様子を見渡せるので、 お子さまとの会話やテレビを見ながらの夕食準備も楽しめます。新築ならではの綺麗な設備、4LDKのゆとりある間取り、 そして利便性の高い立地が揃った、家族思いの本格木造住宅です。ぜひ一度実際に現地をご覧ください。
|
| エネルギー消費性能 |
- |
| 断熱性能 |
- |
| 目安光熱費 |
- |
| バス・トイレ |
オートバス、トイレ2ヶ所、浴室に窓あり |
| キッチン |
システムキッチン、浄水器、3口以上コンロ、グリル |
| 設備・サービス |
全居室収納、ウォークインクローゼット、シューズインクローゼット、全居室フローリング、上水道、下水道、プロパンガス、電気、火災警報器(報知機) |
| その他 |
- |
| 現況 |
建築中 |
引渡可能時期 |
2026年8月下旬予定 |
| 物件番号 |
1110376018 |
|
|
| 情報公開日 |
2026年4月6日 |
次回更新予定日 |
2026年5月11日 |
| ケータイ用バーコード |
- スマートフォンでこの物件を見る
- スマートフォンからもこの物件をご覧になれます。
|
※「-」と表示されている項目については、情報提供会社にご確認ください。
| 周辺施設 |
西武池袋・新宿線「所沢」駅 2000m |
| 距離 |
2000m |
写真を見る |
| 周辺施設 |
所沢市立松井小学校 1290m |
| 距離 |
1290m |
写真を見る |
| 周辺施設 |
所沢市立東中学校 2310m |
| 距離 |
2310m |
写真を見る |
ここから簡単にお問い合わせをすることができます。
(SSLでの暗号化での送信を希望されるお客さまは
こちら
よりお問い合わせください)
お問い合わせを行う前に
「個人情報の取り扱いについて」を必ずお読みください。
「個人情報の取り扱いについて」に同意いただいた場合は「上記にご同意の上 確認画面へ進む」のボタンをクリックしてください。
個人情報の取り扱いについて
皆さまが送付された個人情報はアットホーム(株)のサーバを経由し、お問い合わせ先の不動産会社にメールまたはFAXにて転送されるためアットホーム(株)にも保管されます。アットホーム(株)で保管された個人情報の取り扱いについては、【こちら】をご覧ください。
また、本画面でご記入いただいた個人情報は、お問い合わせ先の不動産会社でも保管します。 お問い合わせ先の不動産会社が保管する個人情報の取り扱いについては、不動産会社に直接お問い合わせください。
国土交通大臣免許(9)第3744号 |
|---|
- 交通:
- 西武池袋線/所沢駅 徒歩5分
- 埼玉県所沢市日吉町18-26 FSビル1F
- TEL:
- 04-2927-4311
- FAX:
- 04-2927-4312
- 所属団体:
- (公社)埼玉県宅地建物取引業協会会員(公社)首都圏不動産公正取引協議会加盟
取引態様:媒介  - 00786636
|
- スマートフォンで
この不動産会社を見る

|
- 提携サイト等より掲載されている物件情報につきましては、不動産会社詳細情報にリンクされていないものがあります。
- 物件に関するお問合せは、物件詳細ページの「情報提供会社」に表示されている不動産会社へ直接お願いいたします。
- 間取図は、現況を優先させていただきます。
- 映像は物件の一部を撮影したものです。物件の契約にあたっての最終判断はご自身の判断に基づいて行ってください。
- 仲介手数料について

アットホームは物件情報の適正化に努めております。
内容に誤りがある場合にはこちらへご連絡ください。