東京都世田谷区瀬田5丁目(用賀駅)の一戸建て:物件詳細
交通 所在地 |
駅徒歩 |
価格 |
間取り 建物面積 |
土地面積 私道負担面積 |
物件種目 築年月 |
|
東急田園都市線/用賀
東京都世田谷区瀬田5丁目
|
15分
|
12,200万円
|
1SLDK
90.66m²
|
95.20m²
-
|
新築一戸建て
2025年6月
|
|
2面採光
|
|
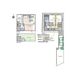
間取図
1号棟
|
外観
爽やかな青空の下に贅沢なほどに降り注ぐ陽光、豊かな居住性と、クオリティが見事に調和した住空間。
|
<
その他の画像
>
|
|
|
| 交通 | 東急田園都市線 用賀駅 徒歩15分 |
|---|
| その他の交通 | 東急田園都市線 二子玉川駅 徒歩23分 東急大井町線 上野毛駅 徒歩31分 |
| 所在地 |
東京都世田谷区瀬田5丁目
|
| 物件種目 |
新築一戸建て |
| 価格 |
12,200万円 |
借地期間・地代(月額) |
- |
| 権利金 |
- |
敷金または保証金 |
- / - |
| 維持費等 |
- |
その他一時金 |
- |
| 間取り |
1SLDK |
建物面積 |
90.66m² |
| 土地権利 |
所有権 |
建物構造 |
木造 |
| 土地面積 |
95.20m² |
私道負担面積 |
- |
| 築年月 |
2025年6月
|
都市計画 |
市街化区域 |
| 建物名 |
|
建築確認番号 |
- |
| 用途地域 |
1種低層 |
駐車場 |
有 |
| 建ぺい率 |
50% |
容積率 |
100% |
| 階建 |
2階建 |
接道状況 |
南東 6.0m 公道
|
| 地目 |
宅地 |
地勢 |
- |
| 国土法届出 |
- |
セットバック |
- |
| アピールポイント |
■東急田園都市線「用賀」駅まで徒歩15分です
■「砧公園」まで徒歩10分。ご家族で楽しめる憩いの場です
■スカイバルコニーやロフト等、各棟こだわりある居住空間 |
| リフォーム履歴 |
- |
| リノベーション履歴 |
- |
| 瑕疵保証 |
- |
| 瑕疵保険 |
- |
| 評価・証明書 |
- |
| 備考 |
総戸数:4戸
緑化地域 世田谷西部地域大蔵・岡本・鎌田・瀬田地域 敷地延長部分有 洋室2部屋は建築基準法上納戸扱いとなります(2号棟)
景観法:有 宅地造成工事規制区域:有 高度地区:有 準防火地域:有 日影制限:有 敷地面積最低限度:有 高さ最高限度:有
|
| エネルギー消費性能 |
- |
| 断熱性能 |
- |
| 目安光熱費 |
- |
| バス・トイレ |
浴室乾燥機、オートバス、追焚機能、温水洗浄便座、トイレ2ヶ所 |
| キッチン |
カウンターキッチン、システムキッチン、食器洗浄乾燥機、浄水器、3口以上コンロ |
| 設備・サービス |
全居室収納、ウォークインクローゼット、床暖房、クローゼット、床下収納、モニター付インターホン、上水道、下水道、都市ガス、複層ガラス |
| その他 |
- |
| 現況 |
空家 |
引渡可能時期 |
即時 |
| 物件番号 |
1111977706 |
|
|
| 情報公開日 |
2025年10月21日 |
次回更新予定日 |
2025年12月23日 |
| ケータイ用バーコード |
- スマートフォンでこの物件を見る
- スマートフォンからもこの物件をご覧になれます。
|
※「-」と表示されている項目については、情報提供会社にご確認ください。
| 周辺施設 |
二子玉川ライズショッピングセンター |
| 距離 |
1600m |
写真を見る |
ここから簡単にお問い合わせをすることができます。
(SSLでの暗号化での送信を希望されるお客さまは
こちら
よりお問い合わせください)
お問い合わせを行う前に
「個人情報の取り扱いについて」を必ずお読みください。
「個人情報の取り扱いについて」に同意いただいた場合は「上記にご同意の上 確認画面へ進む」のボタンをクリックしてください。
個人情報の取り扱いについて
皆さまが送付された個人情報はアットホーム(株)のサーバを経由し、お問い合わせ先の不動産会社にメールまたはFAXにて転送されるためアットホーム(株)にも保管されます。アットホーム(株)で保管された個人情報の取り扱いについては、【こちら】をご覧ください。
また、本画面でご記入いただいた個人情報は、お問い合わせ先の不動産会社でも保管します。 お問い合わせ先の不動産会社が保管する個人情報の取り扱いについては、不動産会社に直接お問い合わせください。
神奈川県知事免許(2)第30940号 |
|---|
- 交通:
- JR京浜東北線/横浜駅 徒歩4分
- 神奈川県横浜市西区北幸1丁目11-15 横浜STビル
- TEL:
- 045-414-9103
- FAX:
- 045-414-9111
- 所属団体:
- (公社)神奈川県宅地建物取引業協会会員(公社)首都圏不動産公正取引協議会加盟
取引態様:媒介  - 00268639
|
- スマートフォンで
この不動産会社を見る

|
- 提携サイト等より掲載されている物件情報につきましては、不動産会社詳細情報にリンクされていないものがあります。
- 物件に関するお問合せは、物件詳細ページの「情報提供会社」に表示されている不動産会社へ直接お願いいたします。
- 間取図は、現況を優先させていただきます。
- 映像は物件の一部を撮影したものです。物件の契約にあたっての最終判断はご自身の判断に基づいて行ってください。
- 仲介手数料について

アットホームは物件情報の適正化に努めております。
内容に誤りがある場合にはこちらへご連絡ください。