福岡県北九州市若松区畠田2丁目(二島駅)の一戸建て:物件詳細
交通 所在地 |
駅徒歩 |
価格 |
間取り 建物面積 |
土地面積 私道負担面積 |
物件種目 築年月 |
|
JR筑豊本線/二島
福岡県北九州市若松区畠田2丁目
|
20分
|
2,798万円
|
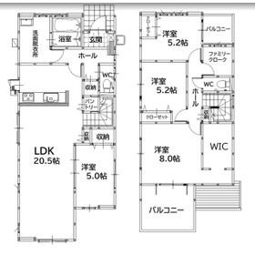
4LDK
115.48m²
|
180.13m²
なし
|
新築一戸建て
2026年4月
|
|
24時間換気システム
|
|
間取図
|
その他
|
その他の画像
|
| 交通 | JR筑豊本線 二島駅 徒歩20分 |
| 所在地 |
福岡県北九州市若松区畠田2丁目
|
| 物件種目 |
新築一戸建て |
| 価格 |
2,798万円 |
借地期間・地代(月額) |
- |
| 権利金 |
- |
敷金または保証金 |
- / - |
| 維持費等 |
- |
その他一時金 |
- |
| 間取り |
4LDK |
建物面積 |
115.48m² |
| 土地権利 |
所有権 |
建物構造 |
木造 |
| 土地面積 |
180.13m²(実測) |
私道負担面積 |
なし |
| 築年月 |
2026年4月
|
都市計画 |
市街化区域 |
| 建物名 |
|
建築確認番号 |
KJH25-02027-1 |
| 用途地域 |
1種低層 |
駐車場 |
有 |
| 建ぺい率 |
50% |
容積率 |
80% |
| 階建 |
2階建 |
接道状況 |
北 6.0m 公道 接面8.1m
|
| 地目 |
宅地 |
地勢 |
平坦 |
| 国土法届出 |
- |
セットバック |
- |
| アピールポイント |
【あなたのマイホーム探しを徹底サポート!】
・北九州で50年以上不動産業を営む大英グループ子会社のため、数多くの不動産情報に精通しています!
・年間300組以上の客様の住宅ローンをサポートする経験から、ローンについての知識が豊富です!
※過去ローンに落ちた方、他の不動産会社では「無理」だと断られた方でも一度ご相談ください♪
・親会社の大英産業は建売住宅の建築を行っているため、構造や設備に関しての知見も広いスタッフが揃っています!
・未公開の物件情報も多数保有しています!大英不動産販売なら条件にピッタリなお家が見つかるかも!
・ご契約からお引渡しまで、売主との間に入り、安心して入居ができるようにきめ細やかにフォローします!
≪こんなことにお悩みの方はご相談を!≫
・なかなか希望の物件が見つからない
・住宅ローンが通るか不安、どの銀行がいいか分からない
・前回案内してくれた不動産会社の対応がイマイチだった
・契約後の手厚いフォローが欲しいけど大丈夫か心配
不動産のプロ「大英不動産販売」のスタッフがお悩み解決します! |
| リフォーム履歴 |
- |
| リノベーション履歴 |
- |
| 瑕疵保証 |
- |
| 瑕疵保険 |
- |
| 評価・証明書 |
- |
| 備考 |
BELS/省エネ基準適合認定
|
| エネルギー消費性能 |
- |
| 断熱性能 |
- |
| 目安光熱費 |
- |
| バス・トイレ |
浴室乾燥機、追焚機能、シャワー付洗面化粧台、温水洗浄便座、トイレ2ヶ所 |
| キッチン |
システムキッチン、食器洗浄乾燥機 |
| 設備・サービス |
ウォークインクローゼット、クローゼット、上水道、下水道、都市ガス、電気、火災警報器(報知機)、複層ガラス |
| その他 |
- |
| 現況 |
完成済 |
引渡可能時期 |
相談 |
| 物件番号 |
1120010720 |
|
|
| 情報公開日 |
2026年1月15日 |
次回更新予定日 |
2026年5月21日 |
| ケータイ用バーコード |
- スマートフォンでこの物件を見る
- スマートフォンからもこの物件をご覧になれます。
|
※「-」と表示されている項目については、情報提供会社にご確認ください。
ここから簡単にお問い合わせをすることができます。
(SSLでの暗号化での送信を希望されるお客さまは
こちら
よりお問い合わせください)
お問い合わせを行う前に
「個人情報の取り扱いについて」を必ずお読みください。
「個人情報の取り扱いについて」に同意いただいた場合は「上記にご同意の上 確認画面へ進む」のボタンをクリックしてください。
個人情報の取り扱いについて
皆さまが送付された個人情報はアットホーム(株)のサーバを経由し、お問い合わせ先の不動産会社にメールまたはFAXにて転送されるためアットホーム(株)にも保管されます。アットホーム(株)で保管された個人情報の取り扱いについては、【こちら】をご覧ください。
また、本画面でご記入いただいた個人情報は、お問い合わせ先の不動産会社でも保管します。 お問い合わせ先の不動産会社が保管する個人情報の取り扱いについては、不動産会社に直接お問い合わせください。
国土交通大臣免許(1)第11126号 |
|---|
- 交通:
- JR鹿児島本線/黒崎駅
- 福岡県北九州市八幡西区下上津役4丁目1-6 NTガーデン202号室
- TEL:
- 093-613-2230
- 所属団体:
- (公社)福岡県宅地建物取引業協会会員(一社)九州不動産公正取引協議会加盟
取引態様:媒介  - 80508899
|
- スマートフォンで
この不動産会社を見る

|
- 提携サイト等より掲載されている物件情報につきましては、不動産会社詳細情報にリンクされていないものがあります。
- 物件に関するお問合せは、物件詳細ページの「情報提供会社」に表示されている不動産会社へ直接お願いいたします。
- 間取図は、現況を優先させていただきます。
- 映像は物件の一部を撮影したものです。物件の契約にあたっての最終判断はご自身の判断に基づいて行ってください。
- 仲介手数料について

アットホームは物件情報の適正化に努めております。
内容に誤りがある場合にはこちらへご連絡ください。