埼玉県さいたま市南区太田窪5丁目(南浦和駅)の一戸建て:物件詳細
交通 所在地 |
駅徒歩 |
価格 |
間取り 建物面積 |
土地面積 私道負担面積 |
物件種目 築年月 |
|
JR京浜東北線/南浦和
埼玉県さいたま市南区太田窪5丁目
|
14分
|
4,798万円
|
2SLDK
106.18m²
|
61.01m²
有 11.50m²
|
新築一戸建て
2025年10月
|
|
24時間換気システム、閑静な住宅街、整形地、設計住宅性能評価書あり
|
|
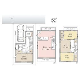
間取図
|
外観
JR「南浦和」駅 徒歩14分//静かな住宅街に建つ3階建て戸建
|
その他の画像
|
| 交通 | JR京浜東北線 南浦和駅 徒歩14分 |
|---|
| その他の交通 | JR武蔵野線 南浦和駅 徒歩14分 |
| 所在地 |
埼玉県さいたま市南区太田窪5丁目
|
| 物件種目 |
新築一戸建て |
| 価格 |
4,798万円 |
借地期間・地代(月額) |
- |
| 権利金 |
- |
敷金または保証金 |
- / - |
| 維持費等 |
- |
その他一時金 |
- |
| 間取り |
2SLDK |
建物面積 |
106.18m² |
| 土地権利 |
所有権 |
建物構造 |
木造 |
| 土地面積 |
61.01m²(実測) |
私道負担面積 |
有 11.50m² |
| 築年月 |
2025年10月
|
都市計画 |
市街化区域 |
| 建物名 |
さいたま市南区太田窪5丁目 新築戸建 |
建築確認番号 |
第HPA-25-04325-1号 |
| 用途地域 |
1種住居 |
駐車場 |
有 無料 |
| 建ぺい率 |
60% |
容積率 |
160% |
| 階建 |
3階建 |
接道状況 |
北西 4.0m 私道
|
| 地目 |
宅地 |
地勢 |
- |
| 国土法届出 |
- |
セットバック |
- |
| アピールポイント |
JR「南浦和」駅 徒歩14分
2025年11月完成の新築戸建
<2025年11月末ご入居可能>
■3階建て2階リビングの2LDK+納戸2か所
全居室に収納付でスッキリと生活できるPLAN
■2階リビング
外からの視線を気にせず寛げる空間
■食洗機・浄水器・室内物干・浴室乾燥機など
充実の生活設備が日々の暮らしを豊かにしてくれます
■ビルトインガレージ
雨の日の外出やお買い物時に濡れずに車に乗り降りできます
■小学校・中学校が徒歩8分以内
子育て環境が整っています
「南浦和」駅徒歩14分の利便性の良い立地で
新学期から新しい住まいでスタートしたいご家族に
おすすめしたい戸建です! |
| リフォーム履歴 |
- |
| リノベーション履歴 |
- |
| 瑕疵保証 |
- |
| 瑕疵保険 |
- |
| 評価・証明書 |
- |
| 備考 |
主要採光面:南東向き
|
| エネルギー消費性能 |
- |
| 断熱性能 |
- |
| 目安光熱費 |
- |
| バス・トイレ |
浴室乾燥機、追焚機能、温水洗浄便座、トイレ2ヶ所、浴室に窓あり |
| キッチン |
カウンターキッチン、システムキッチン、食器洗浄乾燥機、浄水器、3口以上コンロ |
| 設備・サービス |
全居室収納、クローゼット、床下収納、全居室フローリング、上水道、下水道、都市ガス、火災警報器(報知機) |
| その他 |
- |
| 現況 |
建築中 |
引渡可能時期 |
相談 |
| 物件番号 |
1120253805 |
|
|
| 情報公開日 |
2026年1月9日 |
次回更新予定日 |
2026年2月20日 |
| ケータイ用バーコード |
- スマートフォンでこの物件を見る
- スマートフォンからもこの物件をご覧になれます。
|
※「-」と表示されている項目については、情報提供会社にご確認ください。
ここから簡単にお問い合わせをすることができます。
(SSLでの暗号化での送信を希望されるお客さまは
こちら
よりお問い合わせください)
お問い合わせを行う前に
「個人情報の取り扱いについて」を必ずお読みください。
「個人情報の取り扱いについて」に同意いただいた場合は「上記にご同意の上 確認画面へ進む」のボタンをクリックしてください。
個人情報の取り扱いについて
皆さまが送付された個人情報はアットホーム(株)のサーバを経由し、お問い合わせ先の不動産会社にメールまたはFAXにて転送されるためアットホーム(株)にも保管されます。アットホーム(株)で保管された個人情報の取り扱いについては、【こちら】をご覧ください。
また、本画面でご記入いただいた個人情報は、お問い合わせ先の不動産会社でも保管します。 お問い合わせ先の不動産会社が保管する個人情報の取り扱いについては、不動産会社に直接お問い合わせください。
国土交通大臣免許(13)第2401号 |
|---|
- 交通:
- JR京浜東北線/南浦和駅 徒歩3分
- 埼玉県さいたま市南区南本町1丁目8-1 コイケレジデンス1F 101
- TEL:
- 048-864-5700
- FAX:
- 048-864-5711
- 所属団体:
- (公社)埼玉県宅地建物取引業協会会員不動産公正取引協議会加盟
取引態様:媒介  - 00320652
|
- スマートフォンで
この不動産会社を見る

|
- 提携サイト等より掲載されている物件情報につきましては、不動産会社詳細情報にリンクされていないものがあります。
- 物件に関するお問合せは、物件詳細ページの「情報提供会社」に表示されている不動産会社へ直接お願いいたします。
- 間取図は、現況を優先させていただきます。
- 映像は物件の一部を撮影したものです。物件の契約にあたっての最終判断はご自身の判断に基づいて行ってください。
- 仲介手数料について

アットホームは物件情報の適正化に努めております。
内容に誤りがある場合にはこちらへご連絡ください。