千葉県船橋市藤原7丁目(馬込沢駅)の一戸建て:物件詳細
交通 所在地 |
駅徒歩 |
価格 |
間取り 建物面積 |
土地面積 私道負担面積 |
物件種目 築年月 |
|
東武野田線/馬込沢
千葉県船橋市藤原7丁目
|
12分
|
3,400万円
|
3SLDK
95.01m²
|
135.50m²
なし
|
中古一戸建て
2021年11月(築4年7ヶ月)
|
|
駐車場2台分、天井高2.5M以上、バス1坪以上、全室2面採光、2面採光、24時間換気システム、閑静な住宅街、区画整理地内、整形地、分譲地内
|
|
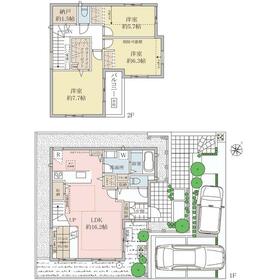
間取図
3LDK+納戸+ウォークインクローゼット+パントリー+リネン庫+お出掛けサポートクローゼット!
|
外観
2021年築!青空と陽光のきらめき豊かな緑を感じられる全76邸のポラスグループの旧分譲地内!
|
<
その他の画像
>
|
| 交通 | 東武野田線 馬込沢駅 徒歩12分 |
| 所在地 |
千葉県船橋市藤原7丁目
|
| 物件種目 |
中古一戸建て |
| 価格 |
3,400万円 |
借地期間・地代(月額) |
- |
| 権利金 |
- |
敷金または保証金 |
- / - |
| 維持費等 |
- |
その他一時金 |
- |
| 間取り |
3SLDK |
建物面積 |
95.01m² |
| 土地権利 |
所有権 |
建物構造 |
木造 |
| 土地面積 |
135.50m²(公簿) |
私道負担面積 |
なし |
| 築年月 |
2021年11月(築4年7ヶ月)
|
都市計画 |
市街化区域 |
| 建物名 |
船橋市藤原7丁目 |
建築確認番号 |
- |
| 用途地域 |
1種低層 |
駐車場 |
有 無料 |
| 建ぺい率 |
40% |
容積率 |
80% |
| 階建 |
2階建 |
接道状況 |
北東 6.0m 公道
|
| 地目 |
宅地 |
地勢 |
- |
| 国土法届出 |
- |
セットバック |
- |
| アピールポイント |
□2021年築!青空と陽光のきらめき豊かな緑を感じられる全76邸のポラスグループの旧分譲地内です!
□1階は16.2帖のLDK+2.5帖のSTAGE DEN!開放感を生み出す空間設計です!
□洋室6.3帖+洋室5.7帖は、壁を無くして12帖の洋室に変更可能!(※有償工事)
生活の変化に合わせてフレキシブルに対応できます!
□2台分のカースペースを確保!通勤・通学を始め、アクティブな生活に便利です!
□3LDK+納戸+ウォークインクローゼット+パントリー+リネン庫+お出掛けサポートクローゼット+リビング収納+ホール収納!
スッキリとした暮らしをする為に、各所に適材適所の収納を施してあります!
□東武野田線「馬込沢」駅まで徒歩12分!通勤・通学に便利な暮らし♪
□保育園も病院も近く、子育て家族に安心のお住まいです!
□成長期を支える、毎日の通学も安心の立地です!
・法田中学校 徒歩4分/290m
□コンビニ、スーパー、ドラッグストア徒歩圏内!暮らしやすい住環境です!
お気軽にお問合せください!
【フリーコール:0120-925-311】 |
| リフォーム履歴 |
- |
| リノベーション履歴 |
- |
| 瑕疵保証 |
- |
| 瑕疵保険 |
- |
| 評価・証明書 |
- |
| 備考 |
建築確認完了検査済証あり
※法令上の制限:風致地区※2台目カースペースは車種によります。
|
| エネルギー消費性能 |
- |
| 断熱性能 |
- |
| 目安光熱費 |
- |
| バス・トイレ |
ミストサウナ、浴室暖房、浴室乾燥機、オートバス、追焚機能、シャワー付洗面化粧台、温水洗浄便座、トイレ2ヶ所、浴室に窓あり |
| キッチン |
カウンターキッチン、システムキッチン、食器洗浄乾燥機、浄水器、3口以上コンロ、グリル |
| 設備・サービス |
全居室収納、ウォークインクローゼット、床暖房、クローゼット、床下収納、モニター付インターホン、カードキー、ディンプルキー、ダブルロックドア、シャッター雨戸、全居室フローリング、上水道、下水道、都市ガス、庭、ダウンライト、火災警報器(報知機)、マルチメディアコンセント、複層ガラス |
| その他 |
- |
| 現況 |
所有者居住中 |
引渡可能時期 |
相談 |
| 物件番号 |
1120265605 |
|
|
| 情報公開日 |
2025年5月31日 |
次回更新予定日 |
2026年5月18日 |
| ケータイ用バーコード |
- スマートフォンでこの物件を見る
- スマートフォンからもこの物件をご覧になれます。
|
※「-」と表示されている項目については、情報提供会社にご確認ください。
| 周辺施設 |
東武野田線「馬込沢」駅 |
| 距離 |
900m |
写真を見る |
| 周辺施設 |
法典東小学校 |
| 距離 |
1600m |
写真を見る |
| 周辺施設 |
サミットストア馬込沢駅前店 |
| 距離 |
890m |
写真を見る |
ここから簡単にお問い合わせをすることができます。
(SSLでの暗号化での送信を希望されるお客さまは
こちら
よりお問い合わせください)
お問い合わせを行う前に
「個人情報の取り扱いについて」を必ずお読みください。
「個人情報の取り扱いについて」に同意いただいた場合は「上記にご同意の上 確認画面へ進む」のボタンをクリックしてください。
個人情報の取り扱いについて
皆さまが送付された個人情報はアットホーム(株)のサーバを経由し、お問い合わせ先の不動産会社にメールまたはFAXにて転送されるためアットホーム(株)にも保管されます。アットホーム(株)で保管された個人情報の取り扱いについては、【こちら】をご覧ください。
また、本画面でご記入いただいた個人情報は、お問い合わせ先の不動産会社でも保管します。 お問い合わせ先の不動産会社が保管する個人情報の取り扱いについては、不動産会社に直接お問い合わせください。
国土交通大臣免許(13)第2401号 |
|---|
- 交通:
- JR総武本線/船橋駅 徒歩2分
- 千葉県船橋市本町1丁目28-1 レオセントラルスクエア3 1F
- TEL:
- 047-434-1333
- FAX:
- 047-434-1334
- 所属団体:
- (一社)千葉県宅地建物取引業協会会員(公社)首都圏不動産公正取引協議会加盟
取引態様:専任媒介  - 00108970
|
- スマートフォンで
この不動産会社を見る

|
- 提携サイト等より掲載されている物件情報につきましては、不動産会社詳細情報にリンクされていないものがあります。
- 物件に関するお問合せは、物件詳細ページの「情報提供会社」に表示されている不動産会社へ直接お願いいたします。
- 間取図は、現況を優先させていただきます。
- 映像は物件の一部を撮影したものです。物件の契約にあたっての最終判断はご自身の判断に基づいて行ってください。
- 仲介手数料について

アットホームは物件情報の適正化に努めております。
内容に誤りがある場合にはこちらへご連絡ください。