千葉県船橋市高野台3丁目(鎌ヶ谷大仏駅)の一戸建て:物件詳細
交通 所在地 |
駅徒歩 |
価格 |
間取り 建物面積 |
土地面積 私道負担面積 |
物件種目 築年月 |
|
京成松戸線/鎌ヶ谷大仏
千葉県船橋市高野台3丁目
|
28分
|
1,680万円
|
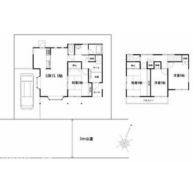
4LDK
96.47m²
|
141.00m²
なし
|
中古一戸建て
1987年4月(築39年)
|
|
間取図
間取り図
|
外観
現地外観
|
<
その他の画像
>
|
| 交通 | 京成松戸線 鎌ヶ谷大仏駅 徒歩28分 |
|---|
| その他の交通 | 北総線 西白井駅 徒歩28分 京成松戸線 二和向台駅 徒歩39分 |
| 所在地 |
千葉県船橋市高野台3丁目
|
| 物件種目 |
中古一戸建て |
| 価格 |
1,680万円 |
借地期間・地代(月額) |
- |
| 権利金 |
- |
敷金または保証金 |
- / - |
| 維持費等 |
- |
その他一時金 |
なし |
| 間取り |
4LDK(和室6.0帖 LDK15.5帖 和室6.0帖 洋室6.0帖…) |
建物面積 |
96.47m² |
| 土地権利 |
所有権 |
建物構造 |
木造 |
| 土地面積 |
141.00m²(実測) |
私道負担面積 |
なし |
| 築年月 |
1987年4月(築39年)
|
都市計画 |
市街化区域 |
| 建物名 |
船橋市高野台3丁目 中古戸建 |
建築確認番号 |
- |
| 用途地域 |
1種低層 |
駐車場 |
有 無料 |
| 建ぺい率 |
- |
容積率 |
- |
| 階建 |
2階建 |
接道状況 |
南 5.0m 公道
|
| 地目 |
宅地 |
地勢 |
平坦 |
| 国土法届出 |
- |
セットバック |
- |
| アピールポイント |
【おすすめポイント】
◎ご案内も即日ご対応可能です!
◎カースペース1台分あり!
◎周辺にはスーパーやコンビニなどお買い物施設充実!
◎各居室に収納完備!
◎LDKは家具を置いてもゆとりある広さ!家族団らんの時間をゆったり過ごすことができますね!
◎対面キッチンからはリビング・ダイニングが見渡せるのでお子様の様子を見守りながら料理ができます。
◎子育てしやすい住環境!
◎リビングの脇の和室はくつろぎの空間を御提供いたします。
【mkホームのご案内】
mkホームは、不動産売買の専門会社です。
・迅速、丁寧なご対応をいたします
不動産売買専門だからこそわかる物件やエリア情報があります。
素早く、正確な情報をお届けします。
・小さなメリット、デメリットもお伝えします
お客様に最善の提案をすることが私たちの使命です。お気に召した物件を、有利な条件でおすすめします。
・何でも聞ける雰囲気づくりを徹底します
大切なお住まいを選ぶために、不安や疑問も遠慮なくご相談ください。
不動産のことならmkホームに、どうぞ安心してお任せください!! |
| リフォーム履歴 |
- |
| リノベーション履歴 |
- |
| 瑕疵保証 |
- |
| 瑕疵保険 |
- |
| 評価・証明書 |
- |
| 備考 |
-
|
| エネルギー消費性能 |
- |
| 断熱性能 |
- |
| 目安光熱費 |
- |
| バス・トイレ |
シャワー付洗面化粧台、温水洗浄便座 |
| キッチン |
カウンターキッチン、システムキッチン |
| 設備・サービス |
全居室収納、クローゼット、下水道、都市ガス、電気 |
| その他 |
- |
| 現況 |
空家 |
引渡可能時期 |
即時 |
| 物件番号 |
1120984018 |
|
|
| 情報公開日 |
2026年3月3日 |
次回更新予定日 |
2026年3月4日 |
| ケータイ用バーコード |
- スマートフォンでこの物件を見る
- スマートフォンからもこの物件をご覧になれます。
|
※「-」と表示されている項目については、情報提供会社にご確認ください。
| 周辺施設 |
西白井駅(北総鉄道 北総線) |
| 距離 |
2230m |
写真を見る |
| 周辺施設 |
二和向台駅(新京成線) |
| 距離 |
3050m |
写真を見る |
| 周辺施設 |
寺尾ストア咲が丘店 |
| 距離 |
1590m |
写真を見る |
| 周辺施設 |
カスミフードスクエア咲が丘店 |
| 距離 |
2840m |
写真を見る |
| 周辺施設 |
船橋市立八木が谷北小学校 |
| 距離 |
2330m |
写真を見る |
| 周辺施設 |
船橋市立八木が谷中学校 |
| 距離 |
2020m |
写真を見る |
ここから簡単にお問い合わせをすることができます。
(SSLでの暗号化での送信を希望されるお客さまは
こちら
よりお問い合わせください)
お問い合わせを行う前に
「個人情報の取り扱いについて」を必ずお読みください。
「個人情報の取り扱いについて」に同意いただいた場合は「上記にご同意の上 確認画面へ進む」のボタンをクリックしてください。
個人情報の取り扱いについて
皆さまが送付された個人情報はアットホーム(株)のサーバを経由し、お問い合わせ先の不動産会社にメールまたはFAXにて転送されるためアットホーム(株)にも保管されます。アットホーム(株)で保管された個人情報の取り扱いについては、【こちら】をご覧ください。
また、本画面でご記入いただいた個人情報は、お問い合わせ先の不動産会社でも保管します。 お問い合わせ先の不動産会社が保管する個人情報の取り扱いについては、不動産会社に直接お問い合わせください。
千葉県知事免許(2)第17288号 |
|---|
- 交通:
- JR総武線/下総中山駅 徒歩3分
- 千葉県船橋市本中山2丁目19-1 ライフタイム YB201
- TEL:
- 047-321-6325
- FAX:
- 047-321-6326
- 所属団体:
- (一社)千葉県宅地建物取引業協会会員(公社)首都圏不動産公正取引協議会加盟
取引態様:媒介  - 00264065
|
- スマートフォンで
この不動産会社を見る

|
- 提携サイト等より掲載されている物件情報につきましては、不動産会社詳細情報にリンクされていないものがあります。
- 物件に関するお問合せは、物件詳細ページの「情報提供会社」に表示されている不動産会社へ直接お願いいたします。
- 間取図は、現況を優先させていただきます。
- 映像は物件の一部を撮影したものです。物件の契約にあたっての最終判断はご自身の判断に基づいて行ってください。
- 仲介手数料について

アットホームは物件情報の適正化に努めております。
内容に誤りがある場合にはこちらへご連絡ください。