東京都八王子市万町(八王子駅)の一戸建て:物件詳細
交通 所在地 |
駅徒歩 |
価格 |
間取り 建物面積 |
土地面積 私道負担面積 |
物件種目 築年月 |
|
JR中央線/八王子
東京都八王子市万町
|
10分
|
5,490万円
|
2LDK
94.39m²
|
76.00m²
なし
|
新築一戸建て
2025年11月
|
|
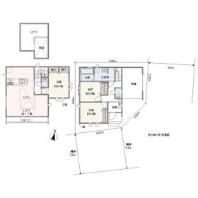
間取図
間取
|
外観
現地土地
|
その他の画像
|
| 交通 | JR中央線 八王子駅 徒歩10分 |
|---|
| その他の交通 | 京王高尾線 京王片倉駅 徒歩12分 |
| 所在地 |
東京都八王子市万町
|
| 物件種目 |
新築一戸建て |
| 価格 |
5,490万円 |
借地期間・地代(月額) |
- |
| 権利金 |
- |
敷金または保証金 |
- / - |
| 維持費等 |
- |
その他一時金 |
- |
| 間取り |
2LDK(+納戸+ロフト) |
建物面積 |
94.39m² |
| 土地権利 |
所有権 |
建物構造 |
木造 |
| 土地面積 |
76.00m²(公簿) |
私道負担面積 |
なし |
| 築年月 |
2025年11月
|
都市計画 |
市街化区域 |
| 建物名 |
八王子市万町55番 新築戸建 B棟 |
建築確認番号 |
第HPA-25-08816-1号 |
| 用途地域 |
2種中高 |
駐車場 |
- |
| 建ぺい率 |
60% |
容積率 |
200% |
| 階建 |
2階建 |
接道状況 |
南東 5.6m 公道
・ 北東 6.0m 公道
|
| 地目 |
宅地 |
地勢 |
平坦 |
| 国土法届出 |
- |
セットバック |
- |
| アピールポイント |
■JR中央線・横浜線・八高線「八王子」駅徒歩10分
■京王高尾線「京王片倉」駅徒歩12分
■南東(公道5.6m)/北東(公道6.0m)の角地
■2LDK+S+ロフト約6.8帖
■ソーラーパネル完備
~Life information~
・スーパーアルプス八王子駅南口店:徒歩9分(約650m)
・マツモトキヨシ八王子万町店:徒歩8分(約570m)
・セブンイレブン八王子万町店:徒歩6分(約410m)
・八王子市立第三小学校:徒歩7分(約540m)
・八王子市立第六中学校:徒歩8分(約640m) |
| リフォーム履歴 |
- |
| リノベーション履歴 |
- |
| 瑕疵保証 |
- |
| 瑕疵保険 |
- |
| 評価・証明書 |
- |
| 備考 |
主要採光面:南東向き
総戸数:1戸
号棟番号:戸建
施工会社:株式会社飯田産業
■2LDK+S+ロフト約6.8帖
■ソーラーパネル完備■JR中央線・横浜線・八高線「八王子」駅徒歩10分■京王高尾線「京王片倉」駅徒歩12分■南東(公道5.6m)/北東(公道6.0m)の角地~Life information~・スーパーアルプス八王子駅南口店:徒歩9分(約650m)・マツモトキヨシ八王子万町店:徒歩8分(約570m)・セブンイレブン八王子万町店:徒歩6分(約410m)・八王子市立第三小学校:徒歩7分(約540m)・八王子市立第六中学校:徒歩8分(約640m)
|
| エネルギー消費性能 |
- |
| 断熱性能 |
- |
| 目安光熱費 |
- |
| バス・トイレ |
- |
| キッチン |
カウンターキッチン、食器洗浄乾燥機 |
| 設備・サービス |
全居室収納、上水道、下水道、都市ガス、電気 |
| その他 |
- |
| 現況 |
建築中 |
引渡可能時期 |
2025年11月下旬予定 |
| 物件番号 |
1127982705 |
|
|
| 情報公開日 |
2025年9月19日 |
次回更新予定日 |
2025年11月3日 |
| ケータイ用バーコード |
- スマートフォンでこの物件を見る
- スマートフォンからもこの物件をご覧になれます。
|
※「-」と表示されている項目については、情報提供会社にご確認ください。
ここから簡単にお問い合わせをすることができます。
(SSLでの暗号化での送信を希望されるお客さまは
こちら
よりお問い合わせください)
お問い合わせを行う前に
「個人情報の取り扱いについて」を必ずお読みください。
「個人情報の取り扱いについて」に同意いただいた場合は「上記にご同意の上 確認画面へ進む」のボタンをクリックしてください。
個人情報の取り扱いについて
皆さまが送付された個人情報はアットホーム(株)のサーバを経由し、お問い合わせ先の不動産会社にメールまたはFAXにて転送されるためアットホーム(株)にも保管されます。アットホーム(株)で保管された個人情報の取り扱いについては、【こちら】をご覧ください。
また、本画面でご記入いただいた個人情報は、お問い合わせ先の不動産会社でも保管します。 お問い合わせ先の不動産会社が保管する個人情報の取り扱いについては、不動産会社に直接お問い合わせください。
国土交通大臣免許(9)第4118号 |
|---|
- 交通:
- JR中央線/吉祥寺駅 徒歩7分
- 東京都武蔵野市吉祥寺本町2丁目4-14 メディ・コープビル8 6F
- TEL:
- 0422-57-3931
- FAX:
- 0422-57-3932
- 所属団体:
- (一社)不動産流通経営協会会員(一社)不動産協会会員(公社)東京都宅地建物取引業協会会員(公社)首都圏不動産公正取引協議会加盟
取引態様:専任媒介  - 00983588
|
- スマートフォンで
この不動産会社を見る

|
- 提携サイト等より掲載されている物件情報につきましては、不動産会社詳細情報にリンクされていないものがあります。
- 物件に関するお問合せは、物件詳細ページの「情報提供会社」に表示されている不動産会社へ直接お願いいたします。
- 間取図は、現況を優先させていただきます。
- 映像は物件の一部を撮影したものです。物件の契約にあたっての最終判断はご自身の判断に基づいて行ってください。
- 仲介手数料について

アットホームは物件情報の適正化に努めております。
内容に誤りがある場合にはこちらへご連絡ください。