福岡県北九州市八幡西区藤原3丁目(折尾駅)の一戸建て:物件詳細
交通 所在地 |
駅徒歩 |
価格 |
間取り 建物面積 |
土地面積 私道負担面積 |
物件種目 築年月 |
|
JR筑豊本線/折尾
福岡県北九州市八幡西区藤原3丁目
|
22分
|
3,598万円
|
4LDK
115.53m²
|
151.19m²
-
|
新築一戸建て
2026年2月
|
|
駐車場3台分以上、バス1坪以上、24時間換気システム、閑静な住宅街、整形地
|
|
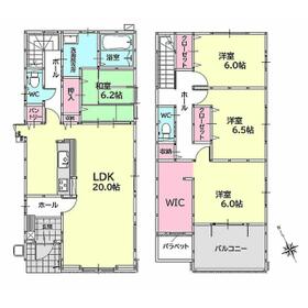
間取図
LDK20帖、和室、全室6帖以上、パントリー、ウォークインクローゼット
|
外観
よかタウンの新築戸建住宅をお得に購入するなら、よかタウングループのよかネットクラウド福岡直方営業所へお問合せください☆【0120-178-870】(通話料無料)
|
<
その他の画像
>
|
| 交通 | JR筑豊本線 折尾駅 徒歩22分 |
|---|
| その他の交通 | JR筑豊本線 本城駅 徒歩36分 JR鹿児島本線 水巻駅 徒歩51分 |
| 所在地 |
福岡県北九州市八幡西区藤原3丁目
|
| 物件種目 |
新築一戸建て |
| 価格 |
3,598万円 |
借地期間・地代(月額) |
- |
| 権利金 |
- |
敷金または保証金 |
- / - |
| 維持費等 |
- |
その他一時金 |
なし |
| 間取り |
4LDK |
建物面積 |
115.53m² |
| 土地権利 |
所有権 |
建物構造 |
木造 |
| 土地面積 |
151.19m² |
私道負担面積 |
- |
| 築年月 |
2026年2月
|
都市計画 |
市街化区域 |
| 建物名 |
よかタウンのデザイン住宅Bloom・Adoble八幡西区藤原3丁目4… |
建築確認番号 |
第KJH25-01607-1号 |
| 用途地域 |
1種低層 |
駐車場 |
有 無料 |
| 建ぺい率 |
50% |
容積率 |
80% |
| 階建 |
2階建 |
接道状況 |
南西 4.5m 公道 接面8.0m
|
| 地目 |
宅地 |
地勢 |
- |
| 国土法届出 |
- |
セットバック |
- |
| アピールポイント |
~*~*~*~*~*~*~*~*~*~*~
WEB予約は【下部のオレンジ色資料請求ボタン】から!
TEL予約は【0120-178-870】から!(通話料無料)
お家探しを始めてみようと思われたら【よかネットクラウド直方営業所】までお気軽にご相談下さい♪
実際に建売住宅を購入したスタッフ、注文住宅出身のスタッフがいるからこそできるご提案をさせていただきます。
事前に希望条件をお聞かせ頂ければ、ネット掲載不可の未公開情報や新規公開予定の物件も一緒にご紹介できます。
\住宅ローンもお任せ下さい!/
資金計画、最適な金融機関のご紹介、事前審査から本申込までサポートさせていただきます。
~*~*~*~*~*~*~*~*~*~*~ |
| リフォーム履歴 |
- |
| リノベーション履歴 |
- |
| 瑕疵保証 |
- |
| 瑕疵保険 |
- |
| 評価・証明書 |
- |
| 備考 |
総戸数:2戸
号棟番号:1号棟
施工会社:(株)よかタウン
|
| エネルギー消費性能 |
★★★(削減率20%達成) |
| 断熱性能 |
5段階/7段階中 |
| 目安光熱費 |
約19.2万円/年 |
| バス・トイレ |
浴室暖房、浴室乾燥機、オートバス、追焚機能、シャワー付洗面化粧台、温水洗浄便座、トイレ2ヶ所 |
| キッチン |
カウンターキッチン、システムキッチン、浄水器、3口以上コンロ |
| 設備・サービス |
全居室収納、ウォークインクローゼット、床下収納、モニター付インターホン、省エネ給湯器、上水道、下水道、都市ガス、電気、側溝、庭、複層ガラス |
| その他 |
- |
| 現況 |
完成済 |
引渡可能時期 |
即時 |
| 物件番号 |
1130467117 |
|
|
| 情報公開日 |
2026年3月2日 |
次回更新予定日 |
2026年5月17日 |
| ケータイ用バーコード |
- スマートフォンでこの物件を見る
- スマートフォンからもこの物件をご覧になれます。
|
※「-」と表示されている項目については、情報提供会社にご確認ください。
| 周辺施設 |
北九州市立光貞小学校 |
| 距離 |
1410m |
写真を見る |
| 周辺施設 |
北九州市立浅川中学校 |
| 距離 |
840m |
写真を見る |
| 周辺施設 |
ハローデイ共立大前店 |
| 距離 |
600m |
写真を見る |
| 周辺施設 |
ファミリーマート八幡藤原一丁目店 |
| 距離 |
490m |
写真を見る |
| 周辺施設 |
サンドラッグ共立大前店 |
| 距離 |
600m |
写真を見る |
| 周辺施設 |
産業医科大学病院 |
| 距離 |
1770m |
写真を見る |
| 周辺施設 |
折尾浅川郵便局 |
| 距離 |
380m |
写真を見る |
ここから簡単にお問い合わせをすることができます。
(SSLでの暗号化での送信を希望されるお客さまは
こちら
よりお問い合わせください)
お問い合わせを行う前に
「個人情報の取り扱いについて」を必ずお読みください。
「個人情報の取り扱いについて」に同意いただいた場合は「上記にご同意の上 確認画面へ進む」のボタンをクリックしてください。
個人情報の取り扱いについて
皆さまが送付された個人情報はアットホーム(株)のサーバを経由し、お問い合わせ先の不動産会社にメールまたはFAXにて転送されるためアットホーム(株)にも保管されます。アットホーム(株)で保管された個人情報の取り扱いについては、【こちら】をご覧ください。
また、本画面でご記入いただいた個人情報は、お問い合わせ先の不動産会社でも保管します。 お問い合わせ先の不動産会社が保管する個人情報の取り扱いについては、不動産会社に直接お問い合わせください。
福岡県知事免許(2)第18717号 |
|---|
- 交通:
- 平成筑豊鉄道/中泉駅 徒歩22分 【バス】 光福寺前 停歩3分
- 福岡県直方市大字下境607-4
- TEL:
- 0120-178-870
- FAX:
- 0949-29-1189
- 所属団体:
- (公社)福岡県宅地建物取引業協会会員(一社)九州不動産公正取引協議会加盟
取引態様:一般媒介  - 80503874
|
- スマートフォンで
この不動産会社を見る

|
- 提携サイト等より掲載されている物件情報につきましては、不動産会社詳細情報にリンクされていないものがあります。
- 物件に関するお問合せは、物件詳細ページの「情報提供会社」に表示されている不動産会社へ直接お願いいたします。
- 間取図は、現況を優先させていただきます。
- 映像は物件の一部を撮影したものです。物件の契約にあたっての最終判断はご自身の判断に基づいて行ってください。
- 仲介手数料について

アットホームは物件情報の適正化に努めております。
内容に誤りがある場合にはこちらへご連絡ください。