千葉県市川市本北方2丁目(本八幡駅)の一戸建て:物件詳細
交通 所在地 |
駅徒歩 |
価格 |
間取り 建物面積 |
土地面積 私道負担面積 |
物件種目 築年月 |
|
JR総武線/本八幡 【バス】20分 JA市川市本店 停歩5分
千葉県市川市本北方2丁目
|
-
|
3,780万円
|
3LDK
91.43m²
|
100.38m²
-
|
中古一戸建て
2000年6月(築25年7ヶ月)
|
|
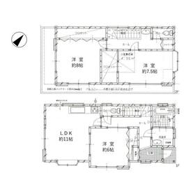
間取図
全室南東向き採光!小屋裏収納付き3LDK
|
外観
とってもお洒落な建物です! 内装はリフォームが入りますので、綺麗に生まれ変わります!
|
<
その他の画像
>
|
| 交通 | JR総武線 本八幡駅 【バス】 20分 JA市川市本店 停歩5分 |
|---|
| その他の交通 | 京成本線 鬼越駅 徒歩23分 JR武蔵野線 船橋法典駅 徒歩29分 |
| 所在地 |
千葉県市川市本北方2丁目
|
| 物件種目 |
中古一戸建て |
| 価格 |
3,780万円 |
借地期間・地代(月額) |
- |
| 権利金 |
- |
敷金または保証金 |
- / - |
| 維持費等 |
- |
その他一時金 |
- |
| 間取り |
3LDK(LDK11帖、洋室6帖、洋室8帖、洋室7.5帖) |
建物面積 |
91.43m² |
| 土地権利 |
所有権 |
建物構造 |
木造 |
| 土地面積 |
100.38m²(公簿) |
私道負担面積 |
- |
| 築年月 |
2000年6月(築25年7ヶ月)
|
都市計画 |
市街化区域 |
| 建物名 |
市川市本北方2丁目 中古戸建 全室南東向き |
建築確認番号 |
- |
| 用途地域 |
1種低層 |
駐車場 |
無 |
| 建ぺい率 |
50% |
容積率 |
100% |
| 階建 |
2階建 |
接道状況 |
北東 6.0m 公道
|
| 地目 |
宅地 |
地勢 |
- |
| 国土法届出 |
- |
セットバック |
- |
| アピールポイント |
新規リフォーム物件!【ご案内随時受付中・資料請求のみのお問合せも大歓迎】
JR総武線「本八幡」駅バス20分、停歩5分のアクセス便利な立地に2000年6月築の3LDK中古戸建が出ました。
スーパー、コンビニ、郵便局等の生活施設が徒歩6分以内で日常生活に便利な住環境!小学校は徒歩2分の近さで安心ですね。
物件は全居室6帖以上のゆとり3LDK!各居室クローゼット、小屋裏収納付きで収納スペースもたっぷりあります。
新規リフォーム物件ですので、お引渡し後すぐに新生活をスタート出来ます!
~物件のおすすめポイント~
■全室南東向き採光
■約3帖の小屋裏収納付き
■全居室6帖以上
■閑静な住宅街
■映画館付設のショッピングモールまで自転車約11分
■生活環境良好 |
| リフォーム履歴 |
■水回り:2026年2月 キッチン、浴室、トイレ ※実施年月は最も古い履歴を表示 |
| リノベーション履歴 |
- |
| 瑕疵保証 |
- |
| 瑕疵保険 |
- |
| 評価・証明書 |
- |
| 備考 |
間取備考:小屋裏収納
引渡:リフォーム後のお引渡し
北方小学校(122m)
下貝塚中学校(1200m)
|
| エネルギー消費性能 |
- |
| 断熱性能 |
- |
| 目安光熱費 |
- |
| バス・トイレ |
- |
| キッチン |
- |
| 設備・サービス |
全居室収納、グルニエ |
| その他 |
- |
| 現況 |
空家 |
引渡可能時期 |
2026年2月中旬予定 |
| 物件番号 |
1134178309 |
|
|
| 情報公開日 |
2025年12月14日 |
次回更新予定日 |
2025年12月28日 |
| ケータイ用バーコード |
- スマートフォンでこの物件を見る
- スマートフォンからもこの物件をご覧になれます。
|
※「-」と表示されている項目については、情報提供会社にご確認ください。
| 周辺施設 |
マルエツ東菅野店 |
| 距離 |
440m |
写真を見る |
| 周辺施設 |
セブンイレブン市川北方町4丁目店 |
| 距離 |
142m |
写真を見る |
| 周辺施設 |
市川本北方郵便局 |
| 距離 |
465m |
写真を見る |
| 周辺施設 |
大野中央病院 |
| 距離 |
1200m |
写真を見る |
| 周辺施設 |
子の神東公園 |
| 距離 |
368m |
写真を見る |
| 周辺施設 |
市川学園第2幼稚園 |
| 距離 |
952m |
写真を見る |
| 周辺施設 |
下貝塚中学校 |
| 距離 |
1200m |
写真を見る |
ここから簡単にお問い合わせをすることができます。
(SSLでの暗号化での送信を希望されるお客さまは
こちら
よりお問い合わせください)
お問い合わせを行う前に
「個人情報の取り扱いについて」を必ずお読みください。
「個人情報の取り扱いについて」に同意いただいた場合は「上記にご同意の上 確認画面へ進む」のボタンをクリックしてください。
個人情報の取り扱いについて
皆さまが送付された個人情報はアットホーム(株)のサーバを経由し、お問い合わせ先の不動産会社にメールまたはFAXにて転送されるためアットホーム(株)にも保管されます。アットホーム(株)で保管された個人情報の取り扱いについては、【こちら】をご覧ください。
また、本画面でご記入いただいた個人情報は、お問い合わせ先の不動産会社でも保管します。 お問い合わせ先の不動産会社が保管する個人情報の取り扱いについては、不動産会社に直接お問い合わせください。
千葉県知事免許(5)第14131号 |
|---|
- 交通:
- JR総武線/市川駅 徒歩3分
- 千葉県市川市市川2丁目2-11
- TEL:
- 047-329-1800
- FAX:
- 047-329-1700
- 所属団体:
- (一社)千葉県宅地建物取引業協会会員(公社)首都圏不動産公正取引協議会加盟
取引態様:媒介  - 00140741
|
- スマートフォンで
この不動産会社を見る

|
- 提携サイト等より掲載されている物件情報につきましては、不動産会社詳細情報にリンクされていないものがあります。
- 物件に関するお問合せは、物件詳細ページの「情報提供会社」に表示されている不動産会社へ直接お願いいたします。
- 間取図は、現況を優先させていただきます。
- 映像は物件の一部を撮影したものです。物件の契約にあたっての最終判断はご自身の判断に基づいて行ってください。
- 仲介手数料について

アットホームは物件情報の適正化に努めております。
内容に誤りがある場合にはこちらへご連絡ください。