兵庫県神戸市灘区篠原南町4丁目(六甲駅)の一戸建て:物件詳細
交通 所在地 |
駅徒歩 |
価格 |
間取り 建物面積 |
土地面積 私道負担面積 |
物件種目 築年月 |
阪急神戸線/六甲
兵庫県神戸市灘区篠原南町4丁目
|
10分
|
6,280万円
|
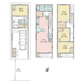
3SLDK
124.48m²
|
63.37m²
なし
|
新築一戸建て
2025年5月
|
南向き
|
間取図
|
外観
|
<
その他の画像
>
|
交通 | 阪急神戸線 六甲駅 徒歩10分 |
所在地 |
兵庫県神戸市灘区篠原南町4丁目
|
物件種目 |
新築一戸建て |
価格 |
6,280万円 |
借地期間・地代(月額) |
- |
権利金 |
- |
敷金または保証金 |
- / - |
維持費等 |
- |
その他一時金 |
- |
間取り |
3SLDK |
建物面積 |
124.48m² |
土地権利 |
所有権 |
建物構造 |
木造 |
土地面積 |
63.37m²(公簿) |
私道負担面積 |
なし |
築年月 |
2025年5月
|
都市計画 |
市街化区域 |
建物名 |
篠原南町4丁目新築戸建 |
建築確認番号 |
第J24-20474号 |
用途地域 |
近隣商業 |
駐車場 |
有 |
建ぺい率 |
80% |
容積率 |
300% |
階建 |
3階建 |
接道状況 |
南東 8.0m 公道 接面4.8m
|
地目 |
宅地 |
地勢 |
- |
国土法届出 |
- |
セットバック |
- |
リフォーム履歴 |
- |
リノベーション履歴 |
- |
瑕疵保証 |
- |
瑕疵保険 |
- |
評価・証明書 |
- |
備考 |
主要採光面:南向き
法令等制限:宅地造成工事等規制区域
■灘区篠原南町4丁目新築戸建
■阪急神戸線「六甲」駅徒歩10分
■南東向き区画
■耐震等級:2 ■断熱等級:4
■前面道路は公道:幅員約8m
~設備・仕様~
■全窓サッシはLow-E 複層ガラス
■LDKは約17.3帖(L字型カウンターキッチン)
システムキッチンは食洗機付
■各部屋に収納あり
■LDKに床暖房(ガス)3ヵ所
■浴室暖房乾燥機付(ミストサウナ機能付)
■給湯器はエコジョーズ(省エネ型)
■1階車庫部分に物置スペース3ヵ所あり
■モニター付インターフォン
■玄関扉は電子錠
※1階建物面積に自動車車庫等部分約14.17㎡含まれます。
※掲載写真の家具、調度品は含まれません。
※別途住宅省エネルギー証明書発行手数料:30,000円(税込)要
※駐車場スペースは要確認
|
エネルギー消費性能 |
- |
断熱性能 |
- |
目安光熱費 |
- |
バス・トイレ |
ミストサウナ、浴室暖房、浴室乾燥機、追焚機能、温水洗浄便座、トイレ2ヶ所 |
キッチン |
カウンターキッチン、システムキッチン、食器洗浄乾燥機 |
設備・サービス |
全居室収納、ウォークインクローゼット、床暖房、クローゼット、モニター付インターホン、上水道、下水道、都市ガス、複層ガラス |
その他 |
- |
現況 |
空家 |
引渡可能時期 |
相談 |
物件番号 |
1134332208 |
|
|
情報公開日 |
2025年8月31日 |
次回更新予定日 |
2025年11月2日 |
ケータイ用バーコード |
- スマートフォンでこの物件を見る
- スマートフォンからもこの物件をご覧になれます。
|
※「-」と表示されている項目については、情報提供会社にご確認ください。
周辺施設 |
セブンイレブン神戸篠原南町4丁目店 |
距離 |
50m |
周辺施設 |
長峰中学校 |
距離 |
1500m |
写真を見る |
ここから簡単にお問い合わせをすることができます。
(SSLでの暗号化での送信を希望されるお客さまは
こちら
よりお問い合わせください)
お問い合わせを行う前に
「個人情報の取り扱いについて」を必ずお読みください。
「個人情報の取り扱いについて」に同意いただいた場合は「上記にご同意の上 確認画面へ進む」のボタンをクリックしてください。
個人情報の取り扱いについて
皆さまが送付された個人情報はアットホーム(株)のサーバを経由し、お問い合わせ先の不動産会社にメールまたはFAXにて転送されるためアットホーム(株)にも保管されます。アットホーム(株)で保管された個人情報の取り扱いについては、【こちら】をご覧ください。
また、本画面でご記入いただいた個人情報は、お問い合わせ先の不動産会社でも保管します。 お問い合わせ先の不動産会社が保管する個人情報の取り扱いについては、不動産会社に直接お問い合わせください。
国土交通大臣免許(16)第220号 |
---|
- 交通:
- 地下鉄海岸線/旧居留地・大丸前駅 徒歩7分
- 兵庫県神戸市中央区京町83 三宮センチュリービル 2F
- TEL:
- 0120-21-4063
- FAX:
- 078-381-7389
- 所属団体:
- (一社)不動産協会会員(一社)不動産流通経営協会会員(公社)首都圏不動産公正取引協議会加盟
取引態様:一般媒介  - 50003215
|
- スマートフォンで
この不動産会社を見る

|
- 提携サイト等より掲載されている物件情報につきましては、不動産会社詳細情報にリンクされていないものがあります。
- 物件に関するお問合せは、物件詳細ページの「情報提供会社」に表示されている不動産会社へ直接お願いいたします。
- 間取図は、現況を優先させていただきます。
- 映像は物件の一部を撮影したものです。物件の契約にあたっての最終判断はご自身の判断に基づいて行ってください。
- 仲介手数料について

アットホームは物件情報の適正化に努めております。
内容に誤りがある場合にはこちらへご連絡ください。