福島県須賀川市向陽町(安積永盛駅)の一戸建て:物件詳細
交通 所在地 |
駅徒歩 |
価格 |
間取り 建物面積 |
土地面積 私道負担面積 |
物件種目 築年月 |
|
JR東北本線/安積永盛
福島県須賀川市向陽町
|
46分
|
1,560万円
|
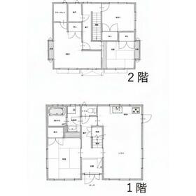
4LDK
97.71m²
|
178.08m²
なし
|
中古一戸建て
1989年12月(築36年1ヶ月)
|
|
駐車場3台分以上
|
|
間取図
|
外観
外観
|
<
その他の画像
>
|
| 交通 | JR東北本線 安積永盛駅 徒歩46分 |
| 所在地 |
福島県須賀川市向陽町
|
| 物件種目 |
中古一戸建て |
| 価格 |
1,560万円 |
借地期間・地代(月額) |
- |
| 権利金 |
- |
敷金または保証金 |
- / - |
| 維持費等 |
- |
その他一時金 |
- |
| 間取り |
4LDK |
建物面積 |
97.71m² |
| 土地権利 |
所有権 |
建物構造 |
木造 |
| 土地面積 |
178.08m² |
私道負担面積 |
なし |
| 築年月 |
1989年12月(築36年1ヶ月)
|
都市計画 |
調整区域 |
| 建物名 |
須賀川市向陽町 中古戸建 |
建築確認番号 |
- |
| 用途地域 |
無指定 |
駐車場 |
有 無料 |
| 建ぺい率 |
40% |
容積率 |
60% |
| 階建 |
2階建 |
接道状況 |
南 6.0m 公道 接面11.5m
|
| 地目 |
宅地 |
地勢 |
- |
| 国土法届出 |
- |
セットバック |
- |
| アピールポイント |
◆◇ おススメPoint! ◇◆
・駐車スペース4台可(車種による)
・南向きで大きな窓あるので採光◎
・サンルーフがあるので洗濯物干がいつでも安心♪
・ブイチェーン、セブンイレブンが近くお買い物に便利な立地
◆◇ 周辺環境 ◇◆
・仁井田小学校 徒歩約26分
・仁井田中学校 徒歩約21分
・ブイチェーン向陽町店 徒歩約3分
・セブンイレブングリーンヒルズ季の郷店 徒歩約11分
◆『頭金 0円』『車のローンが残ってる』『転職したばかり』そんな方もご購入可能です!
◆経験豊富な弊社スタッフがご購入のサポートを致します!
◆平日、土日祝、夜間やお仕事帰りでも内覧可
◆不動産のことなら、どんなことでもお気軽にご相談ください!
◆アフターフォローもお任せください(^-^)/
【ご質問・ご相談は「LINE」からお気軽に!】
「友だち追加」→「@prestige-hnet」 |
| リフォーム履歴 |
- |
| リノベーション履歴 |
- |
| 瑕疵保証 |
- |
| 瑕疵保険 |
- |
| 評価・証明書 |
- |
| 備考 |
-
|
| エネルギー消費性能 |
- |
| 断熱性能 |
- |
| 目安光熱費 |
- |
| バス・トイレ |
追焚機能、シャワー付洗面化粧台、温水洗浄便座 |
| キッチン |
システムキッチン、3口以上コンロ |
| 設備・サービス |
全居室収納、モニター付インターホン、上水道、下水道、プロパンガス、電気、照明器具 |
| その他 |
- |
| 現況 |
空家 |
引渡可能時期 |
即時 |
| 物件番号 |
1137321707 |
|
|
| 情報公開日 |
2025年10月5日 |
次回更新予定日 |
2025年12月20日 |
| ケータイ用バーコード |
- スマートフォンでこの物件を見る
- スマートフォンからもこの物件をご覧になれます。
|
※「-」と表示されている項目については、情報提供会社にご確認ください。
| 周辺施設 |
仁井田小学校 |
| 距離 |
2012m |
写真を見る |
| 周辺施設 |
仁井田中学校 |
| 距離 |
1617m |
写真を見る |
| 周辺施設 |
ブイチェーン向陽町店 |
| 距離 |
187m |
写真を見る |
| 周辺施設 |
セブンイレブングリーンヒルズ季の郷店 |
| 距離 |
860m |
写真を見る |
| 周辺施設 |
須賀川病院 |
| 距離 |
1831m |
写真を見る |
| 周辺施設 |
ツルハドラッグ郡山安積店 |
| 距離 |
2907m |
写真を見る |
ここから簡単にお問い合わせをすることができます。
(SSLでの暗号化での送信を希望されるお客さまは
こちら
よりお問い合わせください)
お問い合わせを行う前に
「個人情報の取り扱いについて」を必ずお読みください。
「個人情報の取り扱いについて」に同意いただいた場合は「上記にご同意の上 確認画面へ進む」のボタンをクリックしてください。
個人情報の取り扱いについて
皆さまが送付された個人情報はアットホーム(株)のサーバを経由し、お問い合わせ先の不動産会社にメールまたはFAXにて転送されるためアットホーム(株)にも保管されます。アットホーム(株)で保管された個人情報の取り扱いについては、【こちら】をご覧ください。
また、本画面でご記入いただいた個人情報は、お問い合わせ先の不動産会社でも保管します。 お問い合わせ先の不動産会社が保管する個人情報の取り扱いについては、不動産会社に直接お問い合わせください。
福島県知事免許(2)第3346号 |
|---|
- 交通:
- JR磐越西線/郡山富田駅 【バス】 大林 停歩1分
- 福島県郡山市八山田5丁目395番地
- TEL:
- 024-983-0577
- FAX:
- 024-983-0578
- 所属団体:
- (公社)全日本不動産協会会員東北地区不動産公正取引協議会加盟
取引態様:媒介  - 20005451
|
- スマートフォンで
この不動産会社を見る

|
- 提携サイト等より掲載されている物件情報につきましては、不動産会社詳細情報にリンクされていないものがあります。
- 物件に関するお問合せは、物件詳細ページの「情報提供会社」に表示されている不動産会社へ直接お願いいたします。
- 間取図は、現況を優先させていただきます。
- 映像は物件の一部を撮影したものです。物件の契約にあたっての最終判断はご自身の判断に基づいて行ってください。
- 仲介手数料について

アットホームは物件情報の適正化に努めております。
内容に誤りがある場合にはこちらへご連絡ください。