埼玉県さいたま市岩槻区上里2丁目(東岩槻駅)の一戸建て:物件詳細
交通 所在地 |
駅徒歩 |
価格 |
間取り 建物面積 |
土地面積 私道負担面積 |
物件種目 築年月 |
|
東武野田線/東岩槻
埼玉県さいたま市岩槻区上里2丁目
|
11分
|
2,980万円
|
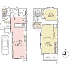
2LDK
93.05m²
|
105.41m²
なし
|
中古一戸建て
2020年5月(築5年10ヶ月)
|
|
南向き、外壁サイディング、天井高2.5M以上、24時間換気システム、分譲地内
|
|
間取図
|
外観
|
その他の画像
|
| 交通 | 東武野田線 東岩槻駅 徒歩11分 |
|---|
| その他の交通 | 東武野田線 岩槻駅 徒歩31分 東武野田線 豊春駅 徒歩30分 |
| 所在地 |
埼玉県さいたま市岩槻区上里2丁目
|
| 物件種目 |
中古一戸建て |
| 価格 |
2,980万円 |
借地期間・地代(月額) |
- |
| 権利金 |
- |
敷金または保証金 |
- / - |
| 維持費等 |
- |
その他一時金 |
- |
| 間取り |
2LDK |
建物面積 |
93.05m² |
| 土地権利 |
所有権 |
建物構造 |
木造 |
| 土地面積 |
105.41m²(公簿) |
私道負担面積 |
なし |
| 築年月 |
2020年5月(築5年10ヶ月)
|
都市計画 |
市街化区域 |
| 建物名 |
さいたま市岩槻区上里2丁目 戸建 |
建築確認番号 |
- |
| 用途地域 |
1種中高 |
駐車場 |
有 無料 |
| 建ぺい率 |
70% |
容積率 |
200% |
| 階建 |
2階建 |
接道状況 |
西 16.0m 公道
・ 北 8.1m 公道
・ 二方道路
|
| 地目 |
宅地 |
地勢 |
平坦 |
| 国土法届出 |
- |
セットバック |
- |
| アピールポイント |
◇カースペース1台、サイクルスペースあり!
◇寒い季節に嬉しいLD床暖房!
◇設備(食器洗浄乾燥機/浴室暖房乾燥機/追焚機能付/スマートフォン連動テレビドアホン/電動シャッター(一部)/宅配ボックス付機能門柱 他)
<ポラスの家/建物保証・設備保証付>2030年12月24日まで(詳細は担当までお問い合わせください) |
| リフォーム履歴 |
- |
| リノベーション履歴 |
- |
| 瑕疵保証 |
- |
| 瑕疵保険 |
- |
| 評価・証明書 |
- |
| 備考 |
主要採光面:南向き
総戸数:1戸
※ゴミ置場持分あり ※建ぺい率は角地緩和適用後のものです。 ※建物面積には車庫面積2.27平米を含みません。
|
| エネルギー消費性能 |
- |
| 断熱性能 |
- |
| 目安光熱費 |
- |
| バス・トイレ |
浴室暖房、浴室乾燥機、追焚機能、温水洗浄便座、トイレ2ヶ所、浴室に窓あり |
| キッチン |
カウンターキッチン、システムキッチン、食器洗浄乾燥機、浄水器、3口以上コンロ |
| 設備・サービス |
全居室収納、ウォークインクローゼット、床暖房、クローゼット、床下収納、モニター付インターホン、電動シャッター、シャッター雨戸、出窓、全居室フローリング、上水道、下水道、都市ガス、庭、ダウンライト、複層ガラス |
| その他 |
- |
| 現況 |
所有者居住中 |
引渡可能時期 |
2026年3月下旬予定 |
| 物件番号 |
1141646216 |
|
|
| 情報公開日 |
2026年1月24日 |
次回更新予定日 |
2026年2月14日 |
| ケータイ用バーコード |
- スマートフォンでこの物件を見る
- スマートフォンからもこの物件をご覧になれます。
|
※「-」と表示されている項目については、情報提供会社にご確認ください。
| 周辺施設 |
さいたま市立上里小学校 |
| 距離 |
60m |
写真を見る |
| 周辺施設 |
さいたま市立川通中学校 |
| 距離 |
3600m |
写真を見る |
| 周辺施設 |
ヨークフーズ |
| 距離 |
350m |
写真を見る |
ここから簡単にお問い合わせをすることができます。
(SSLでの暗号化での送信を希望されるお客さまは
こちら
よりお問い合わせください)
お問い合わせを行う前に
「個人情報の取り扱いについて」を必ずお読みください。
「個人情報の取り扱いについて」に同意いただいた場合は「上記にご同意の上 確認画面へ進む」のボタンをクリックしてください。
個人情報の取り扱いについて
皆さまが送付された個人情報はアットホーム(株)のサーバを経由し、お問い合わせ先の不動産会社にメールまたはFAXにて転送されるためアットホーム(株)にも保管されます。アットホーム(株)で保管された個人情報の取り扱いについては、【こちら】をご覧ください。
また、本画面でご記入いただいた個人情報は、お問い合わせ先の不動産会社でも保管します。 お問い合わせ先の不動産会社が保管する個人情報の取り扱いについては、不動産会社に直接お問い合わせください。
国土交通大臣免許(13)第2401号 |
|---|
- 交通:
- 東武伊勢崎線/春日部駅 徒歩3分
- 埼玉県春日部市中央1丁目2-5
- TEL:
- 048-761-5101
- FAX:
- 048-761-5105
- 所属団体:
- (公社)埼玉県宅地建物取引業協会会員不動産公正取引協議会加盟
取引態様:専任媒介  - 00320248
|
- スマートフォンで
この不動産会社を見る

|
- 提携サイト等より掲載されている物件情報につきましては、不動産会社詳細情報にリンクされていないものがあります。
- 物件に関するお問合せは、物件詳細ページの「情報提供会社」に表示されている不動産会社へ直接お願いいたします。
- 間取図は、現況を優先させていただきます。
- 映像は物件の一部を撮影したものです。物件の契約にあたっての最終判断はご自身の判断に基づいて行ってください。
- 仲介手数料について

アットホームは物件情報の適正化に努めております。
内容に誤りがある場合にはこちらへご連絡ください。