愛知県田原市光崎1丁目(三河田原駅)の一戸建て:物件詳細
交通 所在地 |
駅徒歩 |
価格 |
間取り 建物面積 |
土地面積 私道負担面積 |
物件種目 築年月 |
|
豊橋鉄道渥美線/三河田原 【バス】18分 ぐるりんバス童浦線光崎 停歩1分
愛知県田原市光崎1丁目
|
-
|
1,880万円
|
3SLDK
109.38m²
|
204.79m²
-
|
中古一戸建て
2003年9月(築22年7ヶ月)
|
|
駐車場2台分、閑静な住宅街、オール電化
|
|
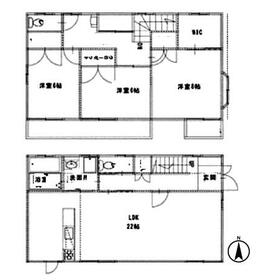
間取図
3SLDK
|
外観
トヨタホーム施工の軽量鉄骨住宅「3SLDK」です。全居室収納付き広さ6帖以上のゆとりある間取り。
|
<
その他の画像
>
|
| 交通 | 豊橋鉄道渥美線 三河田原駅 【バス】 18分 ぐるりんバス童浦線光崎 停歩1分 |
| 所在地 |
愛知県田原市光崎1丁目
|
| 物件種目 |
中古一戸建て |
| 価格 |
1,880万円 |
借地期間・地代(月額) |
- |
| 権利金 |
- |
敷金または保証金 |
- / - |
| 維持費等 |
- |
その他一時金 |
- |
| 間取り |
3SLDK(LDK22帖、洋室8帖、洋室6帖、洋室6帖) |
建物面積 |
109.38m² |
| 土地権利 |
所有権 |
建物構造 |
軽量鉄骨造 |
| 土地面積 |
204.79m²(公簿) |
私道負担面積 |
- |
| 築年月 |
2003年9月(築22年7ヶ月)
|
都市計画 |
市街化区域 |
| 建物名 |
田原市光崎1丁目 戸建 |
建築確認番号 |
- |
| 用途地域 |
1種低層 |
駐車場 |
有 |
| 建ぺい率 |
60% |
容積率 |
100% |
| 階建 |
2階建 |
接道状況 |
北 9.8m 公道 接面12.8m
|
| 地目 |
宅地 |
地勢 |
- |
| 国土法届出 |
- |
セットバック |
- |
| アピールポイント |
【2018年2月リフォーム済】水回り:キッチン、浴室、トイレ、洗面所 内装:床(フローリング等)、壁・天井(クロス・塗装等)他
【2020年8月リフォーム済】:外壁、屋根ベランダ内側塗装
■おすすめポイント
・家具が配置しやすい広さ22帖の長方形リビング
・ガーデニングや家庭菜園など趣味が広がるお庭付
・前面道路が広くお車の乗り入れもしやすい住環境
□■おうち探しは 家デパ へ■□――――――・・・
住宅ローンや住み替えなど、不動産のことなら何でもご相談ください。
土日、平日夜のお仕事終わりでもご案内可能です。
キッズスペースもご用意しております。ぜひご家族揃ってご来店ください♪ |
| リフォーム履歴 |
■水回り:2018年2月 キッチン、浴室、トイレ ■内装:2018年2月 床(フローリング等)、壁・天井(クロス・塗装等) 玄関横窓ガラス交換 ■外装:2020年8月 外壁、屋根 ベランダ内側塗装 ※実施年月は最も古い履歴を表示 |
| リノベーション履歴 |
- |
| 瑕疵保証 |
- |
| 瑕疵保険 |
- |
| 評価・証明書 |
- |
| 備考 |
*トヨタホーム施工住宅
|
| エネルギー消費性能 |
- |
| 断熱性能 |
- |
| 目安光熱費 |
- |
| バス・トイレ |
追焚機能、シャワー付洗面化粧台、温水洗浄便座、トイレ2ヶ所、浴室に窓あり |
| キッチン |
カウンターキッチン、システムキッチン、IHクッキングヒーター、3口以上コンロ |
| 設備・サービス |
全居室収納、ウォークインクローゼット、太陽光発電システム、床下収納、モニター付インターホン、出窓、全居室フローリング、上水道、下水道、庭、ダウンライト、照明器具、CS、BS端子、蓄電池付き |
| その他 |
- |
| 現況 |
所有者居住中 |
引渡可能時期 |
相談 |
| 物件番号 |
1142355016 |
|
|
| 情報公開日 |
2026年2月9日 |
次回更新予定日 |
2026年3月26日 |
| ケータイ用バーコード |
- スマートフォンでこの物件を見る
- スマートフォンからもこの物件をご覧になれます。
|
※「-」と表示されている項目については、情報提供会社にご確認ください。
| 周辺施設 |
童浦小学校 |
| 距離 |
2090m |
写真を見る |
| 周辺施設 |
田原中学校 |
| 距離 |
4990m |
写真を見る |
| 周辺施設 |
童浦こども園 |
| 距離 |
2640m |
写真を見る |
| 周辺施設 |
イオン 田原店 |
| 距離 |
5050m |
写真を見る |
| 周辺施設 |
セブンイレブン田原光崎三丁目店 |
| 距離 |
300m |
写真を見る |
| 周辺施設 |
ゲンキー蔵王北荒井店 |
| 距離 |
4110m |
写真を見る |
| 周辺施設 |
田原浦郵便局 |
| 距離 |
1500m |
写真を見る |
| 周辺施設 |
JA愛知みなみ 童浦支店 |
| 距離 |
2030m |
写真を見る |
ここから簡単にお問い合わせをすることができます。
(SSLでの暗号化での送信を希望されるお客さまは
こちら
よりお問い合わせください)
お問い合わせを行う前に
「個人情報の取り扱いについて」を必ずお読みください。
「個人情報の取り扱いについて」に同意いただいた場合は「上記にご同意の上 確認画面へ進む」のボタンをクリックしてください。
個人情報の取り扱いについて
皆さまが送付された個人情報はアットホーム(株)のサーバを経由し、お問い合わせ先の不動産会社にメールまたはFAXにて転送されるためアットホーム(株)にも保管されます。アットホーム(株)で保管された個人情報の取り扱いについては、【こちら】をご覧ください。
また、本画面でご記入いただいた個人情報は、お問い合わせ先の不動産会社でも保管します。 お問い合わせ先の不動産会社が保管する個人情報の取り扱いについては、不動産会社に直接お問い合わせください。
国土交通大臣免許(2)第9781号 |
|---|
- 交通:
- 東海道本線/豊橋駅 【バス】10分 柱町 停歩3分
- 愛知県豊橋市柱三番町136番地
- TEL:
- 0532-39-4453
- FAX:
- 0532-39-4454
- 所属団体:
- (公社)愛知県宅地建物取引業協会会員東海不動産公正取引協議会加盟
取引態様:媒介  - 40408905
|
- スマートフォンで
この不動産会社を見る

|
- 提携サイト等より掲載されている物件情報につきましては、不動産会社詳細情報にリンクされていないものがあります。
- 物件に関するお問合せは、物件詳細ページの「情報提供会社」に表示されている不動産会社へ直接お願いいたします。
- 間取図は、現況を優先させていただきます。
- 映像は物件の一部を撮影したものです。物件の契約にあたっての最終判断はご自身の判断に基づいて行ってください。
- 仲介手数料について

アットホームは物件情報の適正化に努めております。
内容に誤りがある場合にはこちらへご連絡ください。