埼玉県さいたま市大宮区櫛引町1丁目(大宮駅)の一戸建て:物件詳細
交通 所在地 |
駅徒歩 |
価格 |
間取り 建物面積 |
土地面積 私道負担面積 |
物件種目 築年月 |
|
JR京浜東北線/大宮
埼玉県さいたま市大宮区櫛引町1丁目
|
20分
|
5,880万円
|
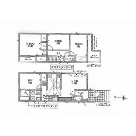
3SLDK
99.91m²
|
96.83m²
-
|
新築一戸建て
2025年12月
|
|
バス1坪以上、24時間換気システム
|
|
間取図
間取
|
外観
ここから始まる「日常」はご家族にとってかけがえのない時間となります。少しでも豊かに、快適に。
|
<
その他の画像
>
|
| 交通 | JR京浜東北線 大宮駅 徒歩20分 |
|---|
| その他の交通 | 埼玉新都市交通伊奈線 鉄道博物館(大成)駅 徒歩26分 JR川越線 指扇駅 【バス】 23分 大平公園入口 停歩5分 |
| 所在地 |
埼玉県さいたま市大宮区櫛引町1丁目
|
| 物件種目 |
新築一戸建て |
| 価格 |
5,880万円 |
借地期間・地代(月額) |
- |
| 権利金 |
- |
敷金または保証金 |
- / - |
| 維持費等 |
- |
その他一時金 |
- |
| 間取り |
3SLDK |
建物面積 |
99.91m² |
| 土地権利 |
所有権 |
建物構造 |
木造 |
| 土地面積 |
96.83m²(公簿) |
私道負担面積 |
- |
| 築年月 |
2025年12月
|
都市計画 |
市街化区域 |
| 建物名 |
|
建築確認番号 |
第SJK-KX255104100号 |
| 用途地域 |
1種住居 |
駐車場 |
有 |
| 建ぺい率 |
60% |
容積率 |
200% |
| 階建 |
2階建 |
接道状況 |
南 9.8m 公道 接面5.7m
|
| 地目 |
宅地 |
地勢 |
- |
| 国土法届出 |
- |
セットバック |
- |
| アピールポイント |
■□仲介手数料無料!□■(注意:他サービス併用不可)
「弊社は新築戸建専門店」の為、仲介手数料が無料でご紹介できます!
(例)2000万円の物件の場合・・「約72万円」
3000万円の物件の場合・・「約105万円」
4000万円の物件の場合・・「約138万円」
5000万円の物件の場合・・「約171万円」
の仲介手数料が不要!お引越し代やエアコン設置費用等にご利用ください!
■□ハウスネットパートナーのサービスご紹介□■
★仲介手数料が0円!
★送迎も無料!お気軽にご依頼ください。
★新築戸建専門店だから物件数が豊富!
★地域最大級の割引金利が利用可能!ローンに心配な方もお任せください!
★物件以外のお得情報も提供します!知らないと損することがいっぱいです!
★お引越し後も末永くお付き合いください!
・・・ LINEでのお問合せもオススメです!・・・
「 LINEお問合せボタン 」からお気軽にお問合せ下さい |
| リフォーム履歴 |
- |
| リノベーション履歴 |
- |
| 瑕疵保証 |
- |
| 瑕疵保険 |
- |
| 評価・証明書 |
- |
| 備考 |
総戸数:2戸
|
| エネルギー消費性能 |
- |
| 断熱性能 |
- |
| 目安光熱費 |
- |
| バス・トイレ |
浴室乾燥機、オートバス、追焚機能、シャワー付洗面化粧台、温水洗浄便座、トイレ2ヶ所 |
| キッチン |
カウンターキッチン、オープンキッチン、システムキッチン、独立型キッチン、食器洗浄乾燥機 |
| 設備・サービス |
全居室収納、シューズインクローゼット、クローゼット、モニター付インターホン、ディンプルキー、省エネ給湯器、上水道、下水道、都市ガス、ルーフバルコニー、火災警報器(報知機)、複層ガラス |
| その他 |
- |
| 現況 |
建築中 |
引渡可能時期 |
2026年1月中旬予定 |
| 物件番号 |
1143832414 |
|
|
| 情報公開日 |
2025年11月16日 |
次回更新予定日 |
2025年12月18日 |
| ケータイ用バーコード |
- スマートフォンでこの物件を見る
- スマートフォンからもこの物件をご覧になれます。
|
※「-」と表示されている項目については、情報提供会社にご確認ください。
| 周辺施設 |
ハウスネットパートナー |
| 距離 |
3000m |
写真を見る |
| 周辺施設 |
大宮なみき幼稚園 |
| 距離 |
520m |
写真を見る |
| 周辺施設 |
大成小学校 |
| 距離 |
1100m |
写真を見る |
| 周辺施設 |
スーパーバリュー三橋店 |
| 距離 |
520m |
写真を見る |
| 周辺施設 |
セブンイレブンさいたま櫛引町1丁目南店 |
| 距離 |
340m |
写真を見る |
ここから簡単にお問い合わせをすることができます。
(SSLでの暗号化での送信を希望されるお客さまは
こちら
よりお問い合わせください)
お問い合わせを行う前に
「個人情報の取り扱いについて」を必ずお読みください。
「個人情報の取り扱いについて」に同意いただいた場合は「上記にご同意の上 確認画面へ進む」のボタンをクリックしてください。
個人情報の取り扱いについて
皆さまが送付された個人情報はアットホーム(株)のサーバを経由し、お問い合わせ先の不動産会社にメールまたはFAXにて転送されるためアットホーム(株)にも保管されます。アットホーム(株)で保管された個人情報の取り扱いについては、【こちら】をご覧ください。
また、本画面でご記入いただいた個人情報は、お問い合わせ先の不動産会社でも保管します。 お問い合わせ先の不動産会社が保管する個人情報の取り扱いについては、不動産会社に直接お問い合わせください。
埼玉県知事免許(2)第23376号 |
|---|
- 交通:
- JR京浜東北線/大宮駅 徒歩25分 【バス】12分 かみこ公園南 停歩1分
- 埼玉県さいたま市大宮区上小町1232-1
- TEL:
- 048-778-8716
- FAX:
- 048-778-8717
- 所属団体:
- (公社)全日本不動産協会会員(公社)首都圏不動産公正取引協議会加盟
取引態様:媒介  - 00274427
|
- スマートフォンで
この不動産会社を見る

|
- 提携サイト等より掲載されている物件情報につきましては、不動産会社詳細情報にリンクされていないものがあります。
- 物件に関するお問合せは、物件詳細ページの「情報提供会社」に表示されている不動産会社へ直接お願いいたします。
- 間取図は、現況を優先させていただきます。
- 映像は物件の一部を撮影したものです。物件の契約にあたっての最終判断はご自身の判断に基づいて行ってください。
- 仲介手数料について

アットホームは物件情報の適正化に努めております。
内容に誤りがある場合にはこちらへご連絡ください。