東京都八王子市下恩方町(高尾駅)の一戸建て:物件詳細
交通 所在地 |
駅徒歩 |
価格 |
間取り 建物面積 |
土地面積 私道負担面積 |
物件種目 築年月 |
|
JR中央線/高尾 【バス】19分 松竹 停歩6分
東京都八王子市下恩方町
|
-
|
1,888万円
|
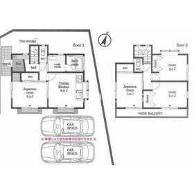
4LDK
80.97m²
|
138.40m²
なし
|
中古一戸建て
2000年4月(築25年7ヶ月)
|
|
駐車場2台分、南向き、閑静な住宅街
|
|
間取図
|
外観
|
その他の画像
|
| 交通 | JR中央線 高尾駅 【バス】 19分 松竹 停歩6分 |
|---|
| その他の交通 | 京王高尾線 高尾山口駅 徒歩95分 京王高尾線 狭間駅 徒歩82分 |
| 所在地 |
東京都八王子市下恩方町
|
| 物件種目 |
中古一戸建て |
| 価格 |
1,888万円 |
借地期間・地代(月額) |
- |
| 権利金 |
- |
敷金または保証金 |
- / - |
| 維持費等 |
- |
その他一時金 |
なし |
| 間取り |
4LDK(DK8.0帖 洋室6.5帖 洋室6.0帖 洋室6.0帖 洋…) |
建物面積 |
80.97m² |
| 土地権利 |
所有権 |
建物構造 |
木造 |
| 土地面積 |
138.40m²(実測) |
私道負担面積 |
なし |
| 築年月 |
2000年4月(築25年7ヶ月)
|
都市計画 |
調整区域 |
| 建物名 |
八王子市下恩方町 中古戸建 |
建築確認番号 |
- |
| 用途地域 |
1種低層 |
駐車場 |
有 無料 |
| 建ぺい率 |
40% |
容積率 |
80% |
| 階建 |
2階建 |
接道状況 |
西 5.0m 私道 接面10.3m
|
| 地目 |
宅地 |
地勢 |
平坦 |
| 国土法届出 |
- |
セットバック |
- |
| アピールポイント |
■クリップハウジングでは、お子様がいらっしゃるご家族も安心のキッズスペースをご用意してお待ちしております!
~ご案内の流れ~
◆弊社へのご来社◆ご自宅へお迎え◆最寄駅等でお待ち合わせ等、ご希望を仰って下さい!
ご希望があれば、物件の周辺環境等もご案内をいたします。
◆お問合せ物件の他に、ご希望があれば他物件も多数ご案内いたします。
事前にご条件を伺えれば、ご案内もスムーズです。何なりとお申し付けください。
|
| リフォーム履歴 |
- |
| リノベーション履歴 |
- |
| 瑕疵保証 |
- |
| 瑕疵保険 |
- |
| 評価・証明書 |
- |
| 備考 |
主要採光面:南向き
総戸数:1戸
◇現地案内会開催中◇
ご自宅や最寄駅までお迎え、弊社へのご来社など、お気軽にご相談ください。
■現地案内■
●物件周辺の住環境・小中学校や公園、スーパー等も合わせてご案内いたします。
●対象物件以外にもご条件お聞かせ頂ければ、合わせて物件情報(公開物件、未公開物件も含め)ご紹介いたします。
●お住み替えのご相談や住宅ローンのご提案などもさせていただきます。
☆弊社では『住宅ローン相談』を随時受け付けております!
専属の住宅ローンアドバイザーがお客様に合わせてご提案をしご担当いたします。
▽地域No1を目指したお客様目線の接客でお客様を全面バックアップ▽
・お住み替え・ご売却(買取保証付きプランあり)
・住宅ローンアドバイザーによる安心の資金設計
・一級建築士によるリフォームのご提案・無料見積り
■他社にはできないCLIP HOUSINGだからこそできる!を日々心がけております!
ご案内からお引渡し後のケアまでフルサポート致します!
お問合せを心よりお待ちしております。
|
| エネルギー消費性能 |
- |
| 断熱性能 |
- |
| 目安光熱費 |
- |
| バス・トイレ |
浴室乾燥機、追焚機能、温水洗浄便座、トイレ2ヶ所 |
| キッチン |
システムキッチン、3口以上コンロ |
| 設備・サービス |
全居室収納、クローゼット、床下収納、モニター付インターホン |
| その他 |
- |
| 現況 |
所有者居住中 |
引渡可能時期 |
相談 |
| 物件番号 |
1145398114 |
|
|
| 情報公開日 |
2025年9月6日 |
次回更新予定日 |
2025年11月4日 |
| ケータイ用バーコード |
- スマートフォンでこの物件を見る
- スマートフォンからもこの物件をご覧になれます。
|
※「-」と表示されている項目については、情報提供会社にご確認ください。
| 周辺施設 |
八王子市立恩方第一小学校 |
| 距離 |
510m |
写真を見る |
| 周辺施設 |
八王子市立恩方中学校 |
| 距離 |
1690m |
写真を見る |
| 周辺施設 |
ファミリーマート八王子西インター店 |
| 距離 |
1160m |
写真を見る |
| 周辺施設 |
スーパーアルプス恩方店 |
| 距離 |
1480m |
写真を見る |
| 周辺施設 |
ウェルパーク八王子下恩方店 |
| 距離 |
1270m |
写真を見る |
| 周辺施設 |
永寿会恩方病院 |
| 距離 |
1880m |
写真を見る |
| 周辺施設 |
恩方郵便局 |
| 距離 |
1540m |
写真を見る |
ここから簡単にお問い合わせをすることができます。
(SSLでの暗号化での送信を希望されるお客さまは
こちら
よりお問い合わせください)
お問い合わせを行う前に
「個人情報の取り扱いについて」を必ずお読みください。
「個人情報の取り扱いについて」に同意いただいた場合は「上記にご同意の上 確認画面へ進む」のボタンをクリックしてください。
個人情報の取り扱いについて
皆さまが送付された個人情報はアットホーム(株)のサーバを経由し、お問い合わせ先の不動産会社にメールまたはFAXにて転送されるためアットホーム(株)にも保管されます。アットホーム(株)で保管された個人情報の取り扱いについては、【こちら】をご覧ください。
また、本画面でご記入いただいた個人情報は、お問い合わせ先の不動産会社でも保管します。 お問い合わせ先の不動産会社が保管する個人情報の取り扱いについては、不動産会社に直接お問い合わせください。
国土交通大臣免許(1)第10086号 |
|---|
- 交通:
- JR中央線/八王子駅 徒歩15分 【バス】6分 八日町四丁目 停歩1分
- 東京都八王子市八幡町13-2 クリップホールディングスビル
- TEL:
- 0120-22-9620
- 所属団体:
- (公社)東京都宅地建物取引業協会会員(公社)首都圏不動産公正取引協議会加盟
取引態様:媒介  - 00271782
|
- スマートフォンで
この不動産会社を見る

|
- 提携サイト等より掲載されている物件情報につきましては、不動産会社詳細情報にリンクされていないものがあります。
- 物件に関するお問合せは、物件詳細ページの「情報提供会社」に表示されている不動産会社へ直接お願いいたします。
- 間取図は、現況を優先させていただきます。
- 映像は物件の一部を撮影したものです。物件の契約にあたっての最終判断はご自身の判断に基づいて行ってください。
- 仲介手数料について

アットホームは物件情報の適正化に努めております。
内容に誤りがある場合にはこちらへご連絡ください。