神奈川県横浜市保土ケ谷区狩場町(保土ケ谷駅)の一戸建て:物件詳細
交通 所在地 |
駅徒歩 |
価格 |
間取り 建物面積 |
土地面積 私道負担面積 |
物件種目 築年月 |
|
JR横須賀線/保土ケ谷 【バス】13分 狩場東 停歩1分
神奈川県横浜市保土ケ谷区狩場町
|
-
|
4,580万円
|
3SLDK
103.09m²
|
103.35m²
なし
|
新築一戸建て
2025年2月
|
|
バス1坪以上、24時間換気システム、バリアフリー、閑静な住宅街、設計住宅性能評価書あり、建設住宅性能評価書あり、長期優良住宅(耐震、省エネ性等高い)、フラット35適合証明書あり、フラット35S適合証明書あり、瑕疵保険検査基準に適合
|
|
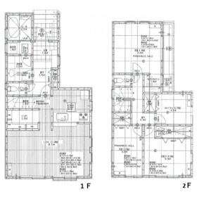
間取図
【間取り】家事シェアで家族全員が意識しお互いを助け家族間のコミュニケーションが活発になり快適な生活を送れます
|
外観
【外観】リビングやお部屋のボリューム感を実際に感じてみて下さい。新しい生活に近づきよりよい環境でのライフワークを応援します
|
<
その他の画像
>
|
| 交通 | JR横須賀線 保土ケ谷駅 【バス】 13分 狩場東 停歩1分 |
|---|
| その他の交通 | JR東海道本線 横浜駅 【バス】 29分 永田町住宅前 停歩8分 京急本線 井土ヶ谷駅 【バス】 6分 永田町住宅前 停歩8分 |
| 所在地 |
神奈川県横浜市保土ケ谷区狩場町
|
| 物件種目 |
新築一戸建て |
| 価格 |
4,580万円 |
借地期間・地代(月額) |
- |
| 権利金 |
- |
敷金または保証金 |
- / - |
| 維持費等 |
- |
その他一時金 |
- |
| 間取り |
3SLDK(洋8 洋5 洋6.5 S3.75) |
建物面積 |
103.09m² |
| 土地権利 |
所有権 |
建物構造 |
木造 |
| 土地面積 |
103.35m²(実測) |
私道負担面積 |
なし |
| 築年月 |
2025年2月
|
都市計画 |
市街化区域 |
| 建物名 |
保土ヶ谷駅 横浜市保土ヶ谷区狩場町 |
建築確認番号 |
第R07SHC113638号 |
| 用途地域 |
1種中高 |
駐車場 |
有 |
| 建ぺい率 |
60% |
容積率 |
150% |
| 階建 |
2階建 |
接道状況 |
北東 4.5m 公道
|
| 地目 |
宅地 |
地勢 |
平坦 |
| 国土法届出 |
- |
セットバック |
- |
| アピールポイント |
【営業時間 10:00~20:00】
上記時間はお電話が繋がりやすくなっております。
人気物件には特に問い合わせが集中するため、お早めにお電話ください。
お電話の場合、緑色の電話で問い合わせをクリック♪♪♪♪
又は、
「資料請求(無料)」ボタンよりご予約いただくとご見学がスムーズです。
当店は二俣川駅北口から徒歩1分の立地!青い看板が目印
開放的な接客スペースとDVDや遊び道具が揃ったキッズコーナーあり。
お子様連れでも安心です。
提携駐車場もございます。
ご来場の際は、事前にご予約をお願いします。
「室内・現地を見学する」ボタンよりご予約頂くとスムーズです。
現地ご案内
お客様の貴重なお時間の中で、ご希望の情報をご案内します。
ご都合に合わせたご紹介をします。
おおよその所要時間や内容は、下記をご参考ください。
ご希望条件のご相談(30分~)
資金計画のご相談(30分~)
現地/物件見学(30分~)
周辺環境のご紹介(30分~)
ライフスタイルは人により様々、
ご家族の思いを受け止めて設計致します。まずはスタートをすることが大切です。
私達は様々なご要望にお応え致します! |
| リフォーム履歴 |
- |
| リノベーション履歴 |
- |
| 瑕疵保証 |
- |
| 瑕疵保険 |
瑕疵保険検査基準に適合 |
| 評価・証明書 |
■長期優良住宅認定通知書 長期優良住宅認定通知書あり ■フラット35適合証明書 フラット35適合証明書あり ■フラット35S適合証明書 フラット35S適合証明書あり |
| 備考 |
総戸数:2戸
法令等制限:宅地造成工事規制区域 日影制限有 準防火地域 景観法
高度地区 緑化地域
**~** すまい安心のおとりつぎ **~**当社13店舗のネットワークを駆使し「新鮮」で「安全」な情報をお届けします。■ここが大事!!周辺の教育施設やスーパー、ドラックストア等の情報、災害情報を「物件レポート」お渡します!■他の物件と併せてご案内もOK!■ご自宅や指定場所から無料送迎もOK!■当日見学もOK!
|
| エネルギー消費性能 |
- |
| 断熱性能 |
- |
| 目安光熱費 |
- |
| バス・トイレ |
浴室乾燥機、オートバス、追焚機能、シャワー付洗面化粧台、温水洗浄便座、トイレ2ヶ所、浴室に窓あり |
| キッチン |
システムキッチン、食器洗浄乾燥機、浄水器 |
| 設備・サービス |
ウォークインクローゼット、床下収納、モニター付インターホン、省エネ給湯器、全居室フローリング、上水道、下水道、都市ガス、複層ガラス |
| その他 |
- |
| 現況 |
建築中 |
引渡可能時期 |
相談 |
| 物件番号 |
1145415611 |
|
|
| 情報公開日 |
2025年11月30日 |
次回更新予定日 |
2025年12月22日 |
| ケータイ用バーコード |
- スマートフォンでこの物件を見る
- スマートフォンからもこの物件をご覧になれます。
|
※「-」と表示されている項目については、情報提供会社にご確認ください。
| 周辺施設 |
横浜市立瀬戸ヶ谷小学校 |
| 距離 |
480m |
写真を見る |
| 周辺施設 |
横浜市立岩崎中学校 |
| 距離 |
1670m |
写真を見る |
| 周辺施設 |
JR保土ヶ谷駅 |
| 距離 |
2020m |
写真を見る |
| 周辺施設 |
スーパーTAIGA永田店 |
| 距離 |
1050m |
写真を見る |
| 周辺施設 |
エンゼルファミリー永田台店 |
| 距離 |
1070m |
写真を見る |
| 周辺施設 |
井土ヶ谷ふじい内科 |
| 距離 |
1760m |
写真を見る |
| 周辺施設 |
狩場町第三公園 |
| 距離 |
140m |
写真を見る |
| 周辺施設 |
仲よし幼稚園 |
| 距離 |
960m |
写真を見る |
ここから簡単にお問い合わせをすることができます。
(SSLでの暗号化での送信を希望されるお客さまは
こちら
よりお問い合わせください)
お問い合わせを行う前に
「個人情報の取り扱いについて」を必ずお読みください。
「個人情報の取り扱いについて」に同意いただいた場合は「上記にご同意の上 確認画面へ進む」のボタンをクリックしてください。
個人情報の取り扱いについて
皆さまが送付された個人情報はアットホーム(株)のサーバを経由し、お問い合わせ先の不動産会社にメールまたはFAXにて転送されるためアットホーム(株)にも保管されます。アットホーム(株)で保管された個人情報の取り扱いについては、【こちら】をご覧ください。
また、本画面でご記入いただいた個人情報は、お問い合わせ先の不動産会社でも保管します。 お問い合わせ先の不動産会社が保管する個人情報の取り扱いについては、不動産会社に直接お問い合わせください。
国土交通大臣免許(9)第3744号 |
|---|
- 交通:
- 相鉄本線/二俣川駅 徒歩1分
- 神奈川県横浜市旭区二俣川1丁目6-1 二俣川北口ビル1階
- TEL:
- 045-360-4362
- FAX:
- 045-360-4312
- 所属団体:
- (公社)神奈川県宅地建物取引業協会会員(公社)首都圏不動産公正取引協議会加盟
取引態様:媒介  - 00784255
|
- スマートフォンで
この不動産会社を見る

|
- 提携サイト等より掲載されている物件情報につきましては、不動産会社詳細情報にリンクされていないものがあります。
- 物件に関するお問合せは、物件詳細ページの「情報提供会社」に表示されている不動産会社へ直接お願いいたします。
- 間取図は、現況を優先させていただきます。
- 映像は物件の一部を撮影したものです。物件の契約にあたっての最終判断はご自身の判断に基づいて行ってください。
- 仲介手数料について

アットホームは物件情報の適正化に努めております。
内容に誤りがある場合にはこちらへご連絡ください。