神奈川県座間市四ツ谷(入谷駅)の一戸建て:物件詳細
交通 所在地 |
駅徒歩 |
価格 |
間取り 建物面積 |
土地面積 私道負担面積 |
物件種目 築年月 |
|
JR相模線/入谷
神奈川県座間市四ツ谷
|
8分
|
4,080万円
|
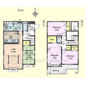
4LDK
96.05m²
|
104.36m²
-
|
新築一戸建て
2025年9月
|
|
駐車場2台分、バス1坪以上、2面採光、バリアフリー、吹抜、設計住宅性能評価書あり、建設住宅性能評価書あり
|
|
|
その他の画像
|
| 交通 | JR相模線 入谷駅 徒歩8分 |
|---|
| その他の交通 | 小田急小田原線 座間駅 徒歩16分 JR相模線 相武台下駅 徒歩31分 |
| 所在地 |
神奈川県座間市四ツ谷
|
| 物件種目 |
新築一戸建て |
| 価格 |
4,080万円 |
借地期間・地代(月額) |
- |
| 権利金 |
- |
敷金または保証金 |
- / - |
| 維持費等 |
- |
その他一時金 |
- |
| 間取り |
4LDK |
建物面積 |
96.05m² |
| 土地権利 |
所有権 |
建物構造 |
木造 |
| 土地面積 |
104.36m²(実測) |
私道負担面積 |
- |
| 築年月 |
2025年9月
|
都市計画 |
市街化区域 |
| 建物名 |
入谷駅歩8分 全5棟ー4号棟 |
建築確認番号 |
第R07SHC107029号 |
| 用途地域 |
1種低層 |
駐車場 |
有 無料 |
| 建ぺい率 |
50% |
容積率 |
100% |
| 階建 |
2階建 |
接道状況 |
南 4.0m
|
| 地目 |
宅地 |
地勢 |
- |
| 国土法届出 |
- |
セットバック |
- |
| アピールポイント |
☆ 当社独自の”ちゅてぜろ”とは… ☆
通常どこの不動産会社でも物件のご購入時に必ずかかる”仲介手数料”ですが、弊社では■無料■にてお取り扱いさせて頂きます!
住宅ローンのご相談や住宅ローンの事前審査はもちろんのこと契約時の書類作成費用等■すべて無料■になりますので、初期費用が抑えられお得にご検討いただけます。
☆ さらに! ☆
弊社では前述のとおり■仲介手数料無料■にてお取り扱いさせて頂きますが、それだけではございません。
さらにお得にご検討いただきたいお客様は「ちゅてぜろ」で検索、弊社ホームページをぜひご覧ください!
夢のマイホームを必ずお得にご検討頂けます!
※他社様掲載の物件もご紹介可能ですのでお気軽にお問い合わせください。
※女性スタッフも在籍しております!
☆ お問い合わせはこちら ☆
【相模原相談センター】:042-707-7075
または上記 [ メールでお問合せ ] よりご連絡ください♪
☆ 本物件おすすめポイント ☆
◆心安らぐ畳コーナー!
◆ウォークインクローゼット付きで収納充実! |
| リフォーム履歴 |
- |
| リノベーション履歴 |
- |
| 瑕疵保証 |
- |
| 瑕疵保険 |
- |
| 評価・証明書 |
- |
| 備考 |
総戸数:5戸
完成済です!空室ですので、ご都合の良い日時にていつでもご内見可能です!
|
| エネルギー消費性能 |
- |
| 断熱性能 |
- |
| 目安光熱費 |
- |
| バス・トイレ |
浴室暖房、浴室乾燥機、追焚機能、シャワー付洗面化粧台、温水洗浄便座、トイレ2ヶ所 |
| キッチン |
カウンターキッチン、システムキッチン、浄水器、グリル |
| 設備・サービス |
ウォークインクローゼット、床下収納、モニター付インターホン、上水道、下水道 |
| その他 |
- |
| 現況 |
空家 |
引渡可能時期 |
相談 |
| 物件番号 |
1147168511 |
|
|
| 情報公開日 |
2025年11月20日 |
次回更新予定日 |
2025年12月19日 |
| ケータイ用バーコード |
- スマートフォンでこの物件を見る
- スマートフォンからもこの物件をご覧になれます。
|
※「-」と表示されている項目については、情報提供会社にご確認ください。
ここから簡単にお問い合わせをすることができます。
(SSLでの暗号化での送信を希望されるお客さまは
こちら
よりお問い合わせください)
お問い合わせを行う前に
「個人情報の取り扱いについて」を必ずお読みください。
「個人情報の取り扱いについて」に同意いただいた場合は「上記にご同意の上 確認画面へ進む」のボタンをクリックしてください。
個人情報の取り扱いについて
皆さまが送付された個人情報はアットホーム(株)のサーバを経由し、お問い合わせ先の不動産会社にメールまたはFAXにて転送されるためアットホーム(株)にも保管されます。アットホーム(株)で保管された個人情報の取り扱いについては、【こちら】をご覧ください。
また、本画面でご記入いただいた個人情報は、お問い合わせ先の不動産会社でも保管します。 お問い合わせ先の不動産会社が保管する個人情報の取り扱いについては、不動産会社に直接お問い合わせください。
国土交通大臣免許(3)第8625号 |
|---|
- 交通:
- JR横浜線/相模原駅 徒歩9分
- 神奈川県相模原市中央区相模原8丁目1-6 1階
- TEL:
- 042-707-7075
- FAX:
- 042-851-4953
- 所属団体:
- (公社)神奈川県宅地建物取引業協会会員(公社)首都圏不動産公正取引協議会加盟
取引態様:媒介  - 00161737
|
- スマートフォンで
この不動産会社を見る

|
- 提携サイト等より掲載されている物件情報につきましては、不動産会社詳細情報にリンクされていないものがあります。
- 物件に関するお問合せは、物件詳細ページの「情報提供会社」に表示されている不動産会社へ直接お願いいたします。
- 間取図は、現況を優先させていただきます。
- 映像は物件の一部を撮影したものです。物件の契約にあたっての最終判断はご自身の判断に基づいて行ってください。
- 仲介手数料について

アットホームは物件情報の適正化に努めております。
内容に誤りがある場合にはこちらへご連絡ください。