東京都葛飾区小菅2丁目(堀切菖蒲園駅)の一戸建て:物件詳細
交通 所在地 |
駅徒歩 |
価格 |
間取り 建物面積 |
土地面積 私道負担面積 |
物件種目 築年月 |
京成本線/堀切菖蒲園
東京都葛飾区小菅2丁目
|
9分
|
6,280万円
|
4LDK
100.26m²
|
74.28m²
有 112.00m²(共有持分113/1000)
|
新築一戸建て
2025年11月
|
南向き、バス1坪以上、24時間換気システム
|
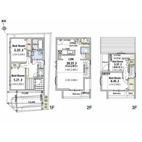
間取図
南西角地につきまして日当たり・通風良好。4LDK(リビング20帖超)・カースペース。食洗器や浴室乾燥機、ウ
|
その他
外観パース
|
その他の画像
|
交通 | 京成本線 堀切菖蒲園駅 徒歩9分 |
---|
その他の交通 | JR千代田・常磐緩行線 綾瀬駅 徒歩16分 東武伊勢崎線 堀切駅 徒歩20分 |
所在地 |
東京都葛飾区小菅2丁目
|
物件種目 |
新築一戸建て |
価格 |
6,280万円 |
借地期間・地代(月額) |
- |
権利金 |
- |
敷金または保証金 |
- / - |
維持費等 |
- |
その他一時金 |
なし |
間取り |
4LDK |
建物面積 |
100.26m² |
土地権利 |
所有権 |
建物構造 |
木造 |
土地面積 |
74.28m²(実測) |
私道負担面積 |
有 112.00m²(共有持分113/1000) |
築年月 |
2025年11月
|
都市計画 |
市街化区域 |
建物名 |
葛飾区小菅2丁目新築分譲住宅 |
建築確認番号 |
25UDI1W建01040 |
用途地域 |
準工業 |
駐車場 |
有 無料 |
建ぺい率 |
60% |
容積率 |
200% |
階建 |
3階建 |
接道状況 |
南 5.3m 公道
・ 西 3.3m 私道
・ 二方道路
|
地目 |
宅地 |
地勢 |
平坦 |
国土法届出 |
- |
セットバック |
- |
アピールポイント |
日常生活で利用頻度の高い水回りだからこそ、使い勝手のいいシステムキッチンを選んでみませんか。生活を豊かにする様々な設備も充実した、新築の戸建て物件です。駅から徒歩9分の物件です。南向きの物件です。建物面積100.26㎡の物件はいかがですか。風呂場に行かなくても操作が可能なオートバス。床暖房の機能が付いています。 |
リフォーム履歴 |
- |
リノベーション履歴 |
- |
瑕疵保証 |
- |
瑕疵保険 |
- |
評価・証明書 |
- |
備考 |
主要採光面:南向き
総戸数:1戸
工事完了予定日:2025年11月
【頭金0円での購入可能・住宅ローンには特に精通したスタッフがおりますのでお気軽にお問い合わせください】
駅から徒歩9分の物件です。こちらは南向きの物件です。
|
エネルギー消費性能 |
- |
断熱性能 |
- |
目安光熱費 |
- |
バス・トイレ |
浴室乾燥機、オートバス、追焚機能、温水洗浄便座、トイレ2ヶ所 |
キッチン |
カウンターキッチン、システムキッチン、食器洗浄乾燥機、浄水器、3口以上コンロ |
設備・サービス |
全居室収納、床暖房、クローゼット、上水道、下水道、都市ガス、複層ガラス |
その他 |
- |
現況 |
建築中 |
引渡可能時期 |
相談 |
物件番号 |
1147701914 |
|
|
情報公開日 |
2025年9月21日 |
次回更新予定日 |
2025年10月19日 |
ケータイ用バーコード |
- スマートフォンでこの物件を見る
- スマートフォンからもこの物件をご覧になれます。
|
※「-」と表示されている項目については、情報提供会社にご確認ください。
周辺施設 |
Akafudado(赤札堂) 堀切菖蒲園店 |
距離 |
560m |
写真を見る |
周辺施設 |
コモディイイダ 小菅店 |
距離 |
640m |
写真を見る |
周辺施設 |
ビッグ・エー 葛飾小菅店 |
距離 |
710m |
写真を見る |
周辺施設 |
葛飾区立小菅保育園 |
距離 |
240m |
写真を見る |
周辺施設 |
葛飾区立こすげ小学校 |
距離 |
400m |
写真を見る |
周辺施設 |
葛飾区立綾瀬中学校 |
距離 |
316m |
写真を見る |
周辺施設 |
セブンイレブン 葛飾小菅2丁目店 |
距離 |
400m |
写真を見る |
周辺施設 |
くすりの福太郎 堀切菖蒲園店 |
距離 |
560m |
写真を見る |
ここから簡単にお問い合わせをすることができます。
(SSLでの暗号化での送信を希望されるお客さまは
こちら
よりお問い合わせください)
お問い合わせを行う前に
「個人情報の取り扱いについて」を必ずお読みください。
「個人情報の取り扱いについて」に同意いただいた場合は「上記にご同意の上 確認画面へ進む」のボタンをクリックしてください。
個人情報の取り扱いについて
皆さまが送付された個人情報はアットホーム(株)のサーバを経由し、お問い合わせ先の不動産会社にメールまたはFAXにて転送されるためアットホーム(株)にも保管されます。アットホーム(株)で保管された個人情報の取り扱いについては、【こちら】をご覧ください。
また、本画面でご記入いただいた個人情報は、お問い合わせ先の不動産会社でも保管します。 お問い合わせ先の不動産会社が保管する個人情報の取り扱いについては、不動産会社に直接お問い合わせください。
東京都知事免許(1)第105514号 |
---|
- 交通:
- JR総武本線/錦糸町駅 徒歩7分
- 東京都墨田区太平3丁目18-5 千代津ビル101
- TEL:
- 03-6240-4711
- FAX:
- 03-6240-4722
- 所属団体:
- (公社)東京都宅地建物取引業協会会員(公社)首都圏不動産公正取引協議会加盟
取引態様:専属専任媒介  - 00269210
|
- スマートフォンで
この不動産会社を見る

|
- 提携サイト等より掲載されている物件情報につきましては、不動産会社詳細情報にリンクされていないものがあります。
- 物件に関するお問合せは、物件詳細ページの「情報提供会社」に表示されている不動産会社へ直接お願いいたします。
- 間取図は、現況を優先させていただきます。
- 映像は物件の一部を撮影したものです。物件の契約にあたっての最終判断はご自身の判断に基づいて行ってください。
- 仲介手数料について

アットホームは物件情報の適正化に努めております。
内容に誤りがある場合にはこちらへご連絡ください。