東京都町田市真光寺町(鶴川駅)の一戸建て:物件詳細
交通 所在地 |
駅徒歩 |
価格 |
間取り 建物面積 |
土地面積 私道負担面積 |
物件種目 築年月 |
|
小田急小田原線/鶴川 【バス】14分 下谷戸入口 停歩3分
東京都町田市真光寺町
|
-
|
4,880万円
|
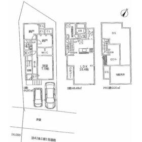
1SLDK
94.60m²
|
103.48m²
なし
|
新築一戸建て
2026年2月
|
|
閑静な住宅街
|
|
間取図
|
外観
|
その他の画像
|
| 交通 | 小田急小田原線 鶴川駅 【バス】 14分 下谷戸入口 停歩3分 |
| 所在地 |
東京都町田市真光寺町
|
| 物件種目 |
新築一戸建て |
| 価格 |
4,880万円 |
借地期間・地代(月額) |
- |
| 権利金 |
- |
敷金または保証金 |
- / - |
| 維持費等 |
- |
その他一時金 |
なし |
| 間取り |
1SLDK |
建物面積 |
94.60m² |
| 土地権利 |
所有権 |
建物構造 |
木造 |
| 土地面積 |
103.48m²(公簿) |
私道負担面積 |
なし |
| 築年月 |
2026年2月
|
都市計画 |
市街化区域 |
| 建物名 |
町田市真光寺町 新築戸建 |
建築確認番号 |
25UDI1K建00592 |
| 用途地域 |
2種中高 |
駐車場 |
有 無料 |
| 建ぺい率 |
50% |
容積率 |
150% |
| 階建 |
2階建 |
接道状況 |
南東 16.0m 公道 接面5.8m
|
| 地目 |
宅地 |
地勢 |
- |
| 国土法届出 |
- |
セットバック |
- |
| アピールポイント |
・全室照明器具付
・生地を選べるオーダーカーテン付
・厚さ15ミリ、国産檜の無垢フローリング
・ウォークインクローゼット、パントリー、シューズクロークなど収納充実 |
| リフォーム履歴 |
- |
| リノベーション履歴 |
- |
| 瑕疵保証 |
- |
| 瑕疵保険 |
- |
| 評価・証明書 |
- |
| 備考 |
工事完了予定日:2026年2月
|
| エネルギー消費性能 |
- |
| 断熱性能 |
- |
| 目安光熱費 |
- |
| バス・トイレ |
浴室乾燥機、トイレ2ヶ所 |
| キッチン |
カウンターキッチン、システムキッチン、食器洗浄乾燥機、IHクッキングヒーター |
| 設備・サービス |
ウォークインクローゼット、上水道、下水道、都市ガス、照明器具、複層ガラス |
| その他 |
- |
| 現況 |
建築中 |
引渡可能時期 |
相談 |
| 物件番号 |
1147776914 |
|
|
| 情報公開日 |
2025年9月23日 |
次回更新予定日 |
2025年12月21日 |
| ケータイ用バーコード |
- スマートフォンでこの物件を見る
- スマートフォンからもこの物件をご覧になれます。
|
※「-」と表示されている項目については、情報提供会社にご確認ください。
ここから簡単にお問い合わせをすることができます。
(SSLでの暗号化での送信を希望されるお客さまは
こちら
よりお問い合わせください)
お問い合わせを行う前に
「個人情報の取り扱いについて」を必ずお読みください。
「個人情報の取り扱いについて」に同意いただいた場合は「上記にご同意の上 確認画面へ進む」のボタンをクリックしてください。
個人情報の取り扱いについて
皆さまが送付された個人情報はアットホーム(株)のサーバを経由し、お問い合わせ先の不動産会社にメールまたはFAXにて転送されるためアットホーム(株)にも保管されます。アットホーム(株)で保管された個人情報の取り扱いについては、【こちら】をご覧ください。
また、本画面でご記入いただいた個人情報は、お問い合わせ先の不動産会社でも保管します。 お問い合わせ先の不動産会社が保管する個人情報の取り扱いについては、不動産会社に直接お問い合わせください。
神奈川県知事免許(7)第21528号 |
|---|
- 交通:
- JR横浜線/古淵駅 徒歩15分
- 神奈川県相模原市南区大野台2丁目6-15
- TEL:
- 042-786-6701
- FAX:
- 042-786-6702
- 所属団体:
- (公社)神奈川県宅地建物取引業協会会員(公社)首都圏不動産公正取引協議会加盟
取引態様:媒介  - 00104774
|
- スマートフォンで
この不動産会社を見る

|
- 提携サイト等より掲載されている物件情報につきましては、不動産会社詳細情報にリンクされていないものがあります。
- 物件に関するお問合せは、物件詳細ページの「情報提供会社」に表示されている不動産会社へ直接お願いいたします。
- 間取図は、現況を優先させていただきます。
- 映像は物件の一部を撮影したものです。物件の契約にあたっての最終判断はご自身の判断に基づいて行ってください。
- 仲介手数料について

アットホームは物件情報の適正化に努めております。
内容に誤りがある場合にはこちらへご連絡ください。