大阪府岸和田市池尻町(久米田駅)の一戸建て:物件詳細
交通 所在地 |
駅徒歩 |
価格 |
間取り 建物面積 |
土地面積 私道負担面積 |
物件種目 築年月 |
|
JR阪和線/久米田
大阪府岸和田市池尻町
|
15分
|
1,300万円
|
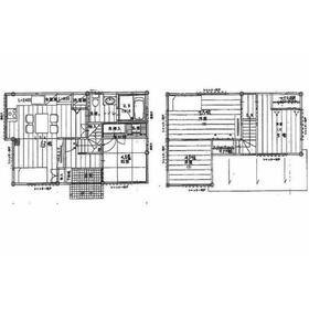
4LDK
79.24m²
|
92.71m²
なし
|
中古一戸建て
1976年1月(築50年2ヶ月)
|
|
閑静な住宅街
|
|
間取図
間取り図
|
外観
外観
|
その他の画像
|
| 交通 | JR阪和線 久米田駅 徒歩15分 |
|---|
| その他の交通 | JR阪和線 下松駅 徒歩23分 南海本線 和泉大宮駅 徒歩40分 |
| 所在地 |
大阪府岸和田市池尻町
|
| 物件種目 |
中古一戸建て |
| 価格 |
1,300万円 |
借地期間・地代(月額) |
- |
| 権利金 |
- |
敷金または保証金 |
- / - |
| 維持費等 |
- |
その他一時金 |
なし |
| 間取り |
4LDK |
建物面積 |
79.24m² |
| 土地権利 |
所有権 |
建物構造 |
木造 |
| 土地面積 |
92.71m² |
私道負担面積 |
なし |
| 築年月 |
1976年1月(築50年2ヶ月)
|
都市計画 |
市街化区域 |
| 建物名 |
岸和田市池尻町 |
建築確認番号 |
- |
| 用途地域 |
1種低層 |
駐車場 |
有 無料 |
| 建ぺい率 |
40% |
容積率 |
80% |
| 階建 |
2階建 |
接道状況 |
東 4.7m 公道
・ 北 4.7m 公道
・ 二方道路
|
| 地目 |
宅地 |
地勢 |
- |
| 国土法届出 |
- |
セットバック |
- |
| アピールポイント |
平成21年に全面改装済み!丁寧に使用され、大変きれいな状態です。
■ポイント
日当たり・通風良好な角地の4LDK!LDKは約13帖
<リフォーム内容>
・キッチン、浴室、トイレ、洗面所
・壁、天井(クロス、塗装等)
・床(フローリング等)
空き家につき、即お引渡し可
遊歩道が整った久米田池が近く、お散歩やジョギングを楽しめます
■アクセス
JR阪和線「久米田」駅徒歩15分
■ロケーション
八木南小学校880m 久米田中学校430m
ローソン岸和田尾生町5丁目店930m コープ久米田1340m
久米田池590m
■メッセージ
お悩みやご希望にあわせてぴったりなご提案をいたします
資金計画や住宅ローンのご相談も承ります!
気になる物件をまとめてご案内も可能です
住まい探しはフジ住宅おうち館におまかせください♪ |
| リフォーム履歴 |
- |
| リノベーション履歴 |
- |
| 瑕疵保証 |
- |
| 瑕疵保険 |
- |
| 評価・証明書 |
- |
| 備考 |
総戸数:1戸
法令等制限:風致地区
|
| エネルギー消費性能 |
- |
| 断熱性能 |
- |
| 目安光熱費 |
- |
| バス・トイレ |
- |
| キッチン |
システムキッチン、食器洗浄乾燥機 |
| 設備・サービス |
上水道、下水道 |
| その他 |
- |
| 現況 |
空家 |
引渡可能時期 |
即時 |
| 物件番号 |
1148062514 |
|
|
| 情報公開日 |
2026年1月16日 |
次回更新予定日 |
2026年2月6日 |
| ケータイ用バーコード |
- スマートフォンでこの物件を見る
- スマートフォンからもこの物件をご覧になれます。
|
※「-」と表示されている項目については、情報提供会社にご確認ください。
| 周辺施設 |
岸和田市立八木南小学校 |
| 距離 |
880m |
写真を見る |
| 周辺施設 |
岸和田市立久米田中学校 |
| 距離 |
430m |
写真を見る |
| 周辺施設 |
ローソン岸和田尾生町5丁目店 |
| 距離 |
930m |
写真を見る |
| 周辺施設 |
コープ久米田店 |
| 距離 |
1340m |
写真を見る |
ここから簡単にお問い合わせをすることができます。
(SSLでの暗号化での送信を希望されるお客さまは
こちら
よりお問い合わせください)
お問い合わせを行う前に
「個人情報の取り扱いについて」を必ずお読みください。
「個人情報の取り扱いについて」に同意いただいた場合は「上記にご同意の上 確認画面へ進む」のボタンをクリックしてください。
個人情報の取り扱いについて
皆さまが送付された個人情報はアットホーム(株)のサーバを経由し、お問い合わせ先の不動産会社にメールまたはFAXにて転送されるためアットホーム(株)にも保管されます。アットホーム(株)で保管された個人情報の取り扱いについては、【こちら】をご覧ください。
また、本画面でご記入いただいた個人情報は、お問い合わせ先の不動産会社でも保管します。 お問い合わせ先の不動産会社が保管する個人情報の取り扱いについては、不動産会社に直接お問い合わせください。
国土交通大臣免許(13)第2430号 |
|---|
- 交通:
- JR阪和線/東岸和田駅 徒歩8分
- 大阪府岸和田市作才町1丁目10-20 アネックスビル
- TEL:
- 0120-917-170
- 所属団体:
- (一社)大阪府宅地建物取引業協会会員(公社)近畿地区不動産公正取引協議会加盟
取引態様:媒介  - 50110381
|
- スマートフォンで
この不動産会社を見る

|
- 提携サイト等より掲載されている物件情報につきましては、不動産会社詳細情報にリンクされていないものがあります。
- 物件に関するお問合せは、物件詳細ページの「情報提供会社」に表示されている不動産会社へ直接お願いいたします。
- 間取図は、現況を優先させていただきます。
- 映像は物件の一部を撮影したものです。物件の契約にあたっての最終判断はご自身の判断に基づいて行ってください。
- 仲介手数料について

アットホームは物件情報の適正化に努めております。
内容に誤りがある場合にはこちらへご連絡ください。