茨城県龍ケ崎市藤ケ丘5丁目(龍ケ崎市駅)の一戸建て:物件詳細
交通 所在地 |
駅徒歩 |
価格 |
間取り 建物面積 |
土地面積 私道負担面積 |
物件種目 築年月 |
JR常磐線/龍ケ崎市
茨城県龍ケ崎市藤ケ丘5丁目
|
78分
|
1,900万円
|
3DK
129.49m²
|
229.90m²
なし
|
中古一戸建て
1999年1月(築26年10ヶ月)
|
2面採光、閑静な住宅街
|
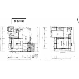
間取図
|
その他
和風の雰囲気があるおうちですね
|
その他の画像
|
交通 | JR常磐線 龍ケ崎市駅 徒歩78分 |
---|
その他の交通 | 関東鉄道竜ヶ崎線 竜ヶ崎駅 徒歩57分 関東鉄道竜ヶ崎線 入地駅 徒歩66分 |
所在地 |
茨城県龍ケ崎市藤ケ丘5丁目
|
物件種目 |
中古一戸建て |
価格 |
1,900万円 |
借地期間・地代(月額) |
- |
権利金 |
- |
敷金または保証金 |
- / - |
維持費等 |
- |
その他一時金 |
なし |
間取り |
3DK |
建物面積 |
129.49m² |
土地権利 |
所有権 |
建物構造 |
木造 |
土地面積 |
229.90m²(公簿) |
私道負担面積 |
なし |
築年月 |
1999年1月(築26年10ヶ月)
|
都市計画 |
市街化区域 |
建物名 |
龍ケ崎市藤ケ丘5丁目 中古戸建 |
建築確認番号 |
- |
用途地域 |
1種低層 |
駐車場 |
有 無料 |
建ぺい率 |
50% |
容積率 |
100% |
階建 |
2階建 |
接道状況 |
南 12.0m 公道
|
地目 |
宅地 |
地勢 |
- |
国土法届出 |
- |
セットバック |
- |
リフォーム履歴 |
- |
リノベーション履歴 |
- |
瑕疵保証 |
- |
瑕疵保険 |
- |
評価・証明書 |
- |
備考 |
総戸数:1戸
常磐線龍ケ崎市駅周辺物件:龍ケ崎市藤ケ丘5丁目 中古戸建。家から334mのところに、薬や日用品を買うのに便利なヤックスドラッグ 竜ケ崎藤ケ丘店があります。こちらの物件は龍ケ崎市立八原小学校が411m以内にあります。リアライズでなら、常磐線龍ケ崎市周辺にある素敵な物件が見つかることでしょう。まずはお気軽にご連絡ください。
薬や日用品を買うのに便利なドラッグストアコスモス 龍ケ崎ニュータウン店まで458mです。TVインターホンで、モニターから来訪者が確認できます。トイレが2ヶ所にあるので複数人でも快適に暮らせます。龍ケ崎市の常磐線龍ケ崎市近郊にある一戸建てをお探しの方は、0297-86-8370からリアライズ不動産まで、ご希望の条件をお聞かせ下さい。
|
エネルギー消費性能 |
- |
断熱性能 |
- |
目安光熱費 |
- |
バス・トイレ |
追焚機能、温水洗浄便座、トイレ2ヶ所 |
キッチン |
システムキッチン、3口以上コンロ |
設備・サービス |
全居室収納、クローゼット、モニター付インターホン、上水道、下水道、都市ガス、電気、エアコン、ワイドバルコニー、照明器具 |
その他 |
- |
現況 |
空家 |
引渡可能時期 |
相談 |
物件番号 |
1148348514 |
|
|
情報公開日 |
2025年10月4日 |
次回更新予定日 |
2025年10月27日 |
ケータイ用バーコード |
- スマートフォンでこの物件を見る
- スマートフォンからもこの物件をご覧になれます。
|
※「-」と表示されている項目については、情報提供会社にご確認ください。
周辺施設 |
龍ケ崎市立八原小学校 |
距離 |
411m |
写真を見る |
周辺施設 |
カスミ 龍ケ岡店 |
距離 |
427m |
写真を見る |
周辺施設 |
LANDROME(ランドローム)フードマーケット 龍ヶ岡店 |
距離 |
1530m |
写真を見る |
ここから簡単にお問い合わせをすることができます。
(SSLでの暗号化での送信を希望されるお客さまは
こちら
よりお問い合わせください)
お問い合わせを行う前に
「個人情報の取り扱いについて」を必ずお読みください。
「個人情報の取り扱いについて」に同意いただいた場合は「上記にご同意の上 確認画面へ進む」のボタンをクリックしてください。
個人情報の取り扱いについて
皆さまが送付された個人情報はアットホーム(株)のサーバを経由し、お問い合わせ先の不動産会社にメールまたはFAXにて転送されるためアットホーム(株)にも保管されます。アットホーム(株)で保管された個人情報の取り扱いについては、【こちら】をご覧ください。
また、本画面でご記入いただいた個人情報は、お問い合わせ先の不動産会社でも保管します。 お問い合わせ先の不動産会社が保管する個人情報の取り扱いについては、不動産会社に直接お問い合わせください。
茨城県知事免許(1)第7731号 |
---|
- 交通:
- JR常磐線/藤代駅
- 茨城県取手市藤代南3丁目11-2 増山ビル1-A
- TEL:
- 0297-86-8370
- FAX:
- 0297-86-8371
- 所属団体:
- (公社)全日本不動産協会会員(公社)首都圏不動産公正取引協議会加盟
取引態様:媒介  - 00281844
|
- スマートフォンで
この不動産会社を見る

|
- 提携サイト等より掲載されている物件情報につきましては、不動産会社詳細情報にリンクされていないものがあります。
- 物件に関するお問合せは、物件詳細ページの「情報提供会社」に表示されている不動産会社へ直接お願いいたします。
- 間取図は、現況を優先させていただきます。
- 映像は物件の一部を撮影したものです。物件の契約にあたっての最終判断はご自身の判断に基づいて行ってください。
- 仲介手数料について

アットホームは物件情報の適正化に努めております。
内容に誤りがある場合にはこちらへご連絡ください。