不動産 賃貸 マンション等の住宅情報:埼玉住まい情報


栃木県那須郡那須町大字高久甲の一戸建て:物件詳細

  • 物件詳細
  • 情報の見方
  • 印刷用画面
交通
所在地
駅徒歩 価格 間取り
建物面積
土地面積
私道負担面積
物件種目
築年月

那須IC

栃木県那須郡那須町大字高久甲


880万円

3LDK

66.23m²

429.00m²

有 43.75m²

中古一戸建て

1996年10月(築29年2ヶ月)

おすすめPOINT南向き、バス1坪以上、吹抜、整形地、隣接建物距離2m以上

おすすめコメント

栃木県那須町の別荘地「松濤苑」。那須IC・那須街道からアクセス良好で観光にも便利。標高約370m、木漏れ日が心地よい閑静な環境で、定住も可能。広い庭で家庭菜園やドッグランも楽しめます。

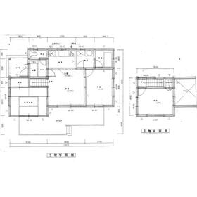
間取図

間取図

外観

外観

<
その他の画像
  • 外観
  • 外観
  • 外観
  • 外観
  • 外観
  • 外観
  • 外観
  • 玄関
  • 洗面
  • バス/シャワー
  • 室内
  • 室内
  • 室内
  • 室内
  • 室内
  • 室内
  • キッチン
  • トイレ
  • リビング
  • リビング
  • リビング
  • リビング
  • リビング
  • リビング
  • リビング
  • 室内
>
    • とりあえず保存
    • お問い合わせ
    交通

    那須IC

    所在地 栃木県那須郡那須町大字高久甲
    物件種目 中古一戸建て
    価格 880万円 借地期間・地代(月額)
    権利金 敷金または保証金 - / -
    維持費等 固定資産税:24,500円/年、共益費:28,297円/年、給水費:34,980円/年 その他一時金 譲渡承認料(個人):55,000円
    間取り 3LDK 建物面積 66.23m²
    土地権利 所有権 建物構造 木造
    土地面積 429.00m²(公簿) 私道負担面積 有 43.75m²
    築年月 1996年10月(築29年2ヶ月) 都市計画 非線引区域
    建物名   建築確認番号
    用途地域 無指定 駐車場 有 無料
    建ぺい率 60% 容積率 200%
    階建 2階建 接道状況 北 5.0m 私道 位置指定有 接面17.5m
    地目 宅地 地勢 平坦
    国土法届出 セットバック
    アピールポイント 那須IC近く、静かな別荘地。家庭菜園やドッグラン向きの広い庭栃木県那須町の別荘地「松濤苑」。那須IC・那須街道からアクセス良好で観光にも便利。標高約370m、木漏れ日が心地よい閑静な環境で、定住も可能。広い庭で家庭菜園やドッグランも楽しめます。
    リフォーム履歴 ■水回り:2025年10月
    給湯器
    ■内装:2025年11月
    全室クロス張替え
    ※実施年月は最も古い履歴を表示
    リノベーション履歴
    瑕疵保証
    瑕疵保険
    評価・証明書
    備考
    主要採光面:南向き
    ・現況での引き渡しとなります。
    ・給水費に含まれる使用量は10立方メートル/月までです。超過した場合は1立方メートル当たり155円+消費税分加算されます。
    ・管理規約で民泊は禁止されています。
    エネルギー消費性能
    断熱性能
    目安光熱費
    バス・トイレ 温水洗浄便座
    キッチン システムキッチン
    設備・サービス クローゼット、床下収納、浄化槽、出窓、プロパンガス、電気、エアコン、庭、ダウンライト、照明器具
    その他
    現況 空家 引渡可能時期 相談
    物件番号 1148348713    
    情報公開日 2025年10月25日 次回更新予定日 2025年11月8日
    ケータイ用バーコード

    QRコード

    スマートフォンでこの物件を見る
    スマートフォンからもこの物件をご覧になれます。
    ※「-」と表示されている項目については、情報提供会社にご確認ください。

    この物件の周辺情報

    周辺施設 セブンイレブン那須田代店
    距離 3600m
    周辺施設 セブンイレブン那須インター店
    距離 2300m
    周辺施設 那須高原りんどう湖ファミリー牧場
    距離 4000m
    周辺施設 ツルハドラッグ那須高原店
    距離 6000m
    周辺施設 ダイユー那須高原店
    距離 6100m
    周辺施設 キャンプ・アンド・キャビンズ
    距離 1400m
    周辺施設 コメリハード&グリーン那須高原店
    距離 5900m
    周辺施設 道の駅那須高原友愛の森
    距離 5600m

    クイックお問い合わせ

    ここから簡単にお問い合わせをすることができます。
    (SSLでの暗号化での送信を希望されるお客さまは こちら よりお問い合わせください)

    お問い合わせ内容(必須)
    お名前(必須) 姓  名 
    メールアドレス(必須)
    ※携帯電話のメールアドレスをご入力される方はこちらをご確認ください
    電話番号(必須)
    - -

    ※入力いただいた電話番号へSMSまたは音声でパスワードをご連絡します。

    携帯電話の番号をご入力の方へ

    携帯電話の番号をご入力の方へ
    確認画面にて送信ボタンをクリックするとSMSが携帯電話に届きます。
    そのSMSに記載のパスワード(認証番号)を入力し、お問い合わせを完了してください。
    尚、SMSの送信者番号は 0005 202 760 となります。
    これはアットホームの固定番号です。

    備考欄 希望条件、物件案内希望日、質問などがございましたらご記入ください。
    お問い合わせを行う前に「個人情報の取り扱いについて」を必ずお読みください。
    「個人情報の取り扱いについて」に同意いただいた場合は「上記にご同意の上 確認画面へ進む」のボタンをクリックしてください。

    個人情報の取り扱いについて

    皆さまが送付された個人情報はアットホーム(株)のサーバを経由し、お問い合わせ先の不動産会社にメールまたはFAXにて転送されるためアットホーム(株)にも保管されます。アットホーム(株)で保管された個人情報の取り扱いについては、【こちら】をご覧ください。
    また、本画面でご記入いただいた個人情報は、お問い合わせ先の不動産会社でも保管します。 お問い合わせ先の不動産会社が保管する個人情報の取り扱いについては、不動産会社に直接お問い合わせください。

    情報提供会社

    (株)パル・コンサルティング

    福島県知事免許(1)第3719号

    交通:
    東北新幹線/郡山駅
    福島県郡山市島2丁目38-16 新さくらビル202
    TEL:
    024-907-0758
    所属団体:
    (公社)福島県宅地建物取引業協会会員
    東北地区不動産公正取引協議会加盟

    取引態様:売主

    • 77701352
    • とりあえず保存
    • お問い合わせ
    • 提携サイト等より掲載されている物件情報につきましては、不動産会社詳細情報にリンクされていないものがあります。
    • 物件に関するお問合せは、物件詳細ページの「情報提供会社」に表示されている不動産会社へ直接お願いいたします。
    • 間取図は、現況を優先させていただきます。
    • 映像は物件の一部を撮影したものです。物件の契約にあたっての最終判断はご自身の判断に基づいて行ってください。
    • 仲介手数料について仲介手数料

    アットホームは物件情報の適正化に努めております。 内容に誤りがある場合にはこちらへご連絡ください。

    【埼玉住まい情報】では、日本全国の物件から賃貸マンションや賃貸アパート・賃貸一戸建て等の賃貸住宅情報、新築マンション・分譲マンションや中古マンション等の売買マンション情報、新築一戸建てや中古一戸建てなどの戸建住宅、 土地など、総合的な不動産住宅情報検索サービスを提供致します。
    【埼玉住まい情報】から、選りすぐりの不動産物件を探してみましょう。

    【免責事項】
    このコーナーの運営はアットホーム株式会社(https://www.athome.co.jp/)が行っています。
    このコーナーに掲載している物件情報は、「アットホーム不動産情報ネットワーク」に加盟する不動産会社等(情報提供元)から提供されています。信頼性の高い情報提供が行えるよう、最大限の努力をしておりますが、その内容を保証するものではありません。 利用者のみなさまと各情報提供元との取引に起因する損害および情報が掲載されたことに起因する損害等については、株式会社イーシティ埼玉、およびアットホームは一切責任を負いません。
    各物件情報の内容や画像等はすべて現況を優先させていただきます。
    お取引等(お取引の準備、資金調達等を含みます)の際には、内容や契約条件等について、各情報提供元より十分な説明を受け、ご自身でご確認の上、判断してください。
    このコーナーへの物件情報のご掲載、その他不動産業務ソリューション等についての不動産会社様のお問合せはこちらからお願いいたします。

    物件画像: