東京都国立市東2丁目(国立駅)の一戸建て:物件詳細
交通 所在地 |
駅徒歩 |
価格 |
間取り 建物面積 |
土地面積 私道負担面積 |
物件種目 築年月 |
|
JR中央線/国立
東京都国立市東2丁目
|
12分
|
8,280万円
|
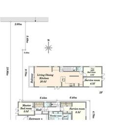
2LDK
98.74m²
|
108.95m²
-
|
新築一戸建て
2025年12月
|
|
間取図
間取図
|
外観
建築中の外観:全3区画 奥部分(撮影年月:2025年09月)
|
<
その他の画像
>
|
| 交通 | JR中央線 国立駅 徒歩12分 |
| 所在地 |
東京都国立市東2丁目
|
| 物件種目 |
新築一戸建て |
| 価格 |
8,280万円 |
借地期間・地代(月額) |
- |
| 権利金 |
- |
敷金または保証金 |
- / - |
| 維持費等 |
- |
その他一時金 |
- |
| 間取り |
2LDK |
建物面積 |
98.74m² |
| 土地権利 |
所有権 |
建物構造 |
木造 |
| 土地面積 |
108.95m²(実測) |
私道負担面積 |
- |
| 築年月 |
2025年12月
|
都市計画 |
市街化区域 |
| 建物名 |
国立市東二丁目新築戸建C号棟 |
建築確認番号 |
第25UDI1K建00405号 |
| 用途地域 |
1種低層 |
駐車場 |
有 |
| 建ぺい率 |
50% |
容積率 |
100% |
| 階建 |
2階建 |
接道状況 |
北 5.4m 公道 接面2.7m
|
| 地目 |
宅地 |
地勢 |
平坦 |
| 国土法届出 |
- |
セットバック |
- |
| アピールポイント |
■物件特徴
・ZEH水準省エネ住宅
・耐震等級3
・設計/施工:イトーピアホーム
・瑕疵担保責任保険「JIOわが家の保険」
・天然木の表情を生かした突板フローリング採用
■設備特徴
・玄関ドア(電子錠)ピタットキー
・TVモニター付きインターホン
・深型食器洗浄乾燥機
・浴室換気暖房乾燥機
・魔法びん浴槽
・シャワートイレ2箇所
・床暖房
■特徴
・オープンエアに広がる開放感ある20帖のLDK
・スポーツ用品等が収納しやすい大型SIC
・ゆとりあるキッチンスペース |
| リフォーム履歴 |
- |
| リノベーション履歴 |
- |
| 瑕疵保証 |
- |
| 瑕疵保険 |
- |
| 評価・証明書 |
- |
| 備考 |
都市計画法他制限:準防火地域、第1種高度地区、文教地区である/※敷地面積108.95m2には建築確認面積除外部分の2.02m2を含みます。
※土地面積には路地状部分約35.67m2(土地面積に対し約32.73%)を含みます。
※最狭小間口は約2.15mです
※駐車場:有(車種による)/設備:都市ガス、公営水道、本下水
|
| エネルギー消費性能 |
- |
| 断熱性能 |
- |
| 目安光熱費 |
- |
| バス・トイレ |
浴室乾燥機、トイレ2ヶ所 |
| キッチン |
システムキッチン、食器洗浄乾燥機 |
| 設備・サービス |
床暖房、シューズインクローゼット、モニター付インターホン、全居室フローリング、都市ガス |
| その他 |
- |
| 現況 |
建築中 |
引渡可能時期 |
指定有り2025年12月 |
| 物件番号 |
1148550813 |
|
|
| 情報公開日 |
2025年6月24日 |
次回更新予定日 |
2025年10月24日 |
| ケータイ用バーコード |
- スマートフォンでこの物件を見る
- スマートフォンからもこの物件をご覧になれます。
|
※「-」と表示されている項目については、情報提供会社にご確認ください。
| 周辺施設 |
nonowa国立SOUTH |
| 距離 |
1000m |
写真を見る |
| 周辺施設 |
国立第三小学校 |
| 距離 |
860m |
写真を見る |
| 周辺施設 |
国立第一中学校 |
| 距離 |
580m |
写真を見る |
| 周辺施設 |
国立クムクム保育園 |
| 距離 |
310m |
写真を見る |
| 周辺施設 |
せせらぎ公園 |
| 距離 |
910m |
写真を見る |
| 周辺施設 |
ローソン・スリーエフ国立東三丁目店 |
| 距離 |
570m |
写真を見る |
| 周辺施設 |
国立東郵便局 |
| 距離 |
450m |
写真を見る |
ここから簡単にお問い合わせをすることができます。
(SSLでの暗号化での送信を希望されるお客さまは
こちら
よりお問い合わせください)
お問い合わせを行う前に
「個人情報の取り扱いについて」を必ずお読みください。
「個人情報の取り扱いについて」に同意いただいた場合は「上記にご同意の上 確認画面へ進む」のボタンをクリックしてください。
個人情報の取り扱いについて
皆さまが送付された個人情報はアットホーム(株)のサーバを経由し、お問い合わせ先の不動産会社にメールまたはFAXにて転送されるためアットホーム(株)にも保管されます。アットホーム(株)で保管された個人情報の取り扱いについては、【こちら】をご覧ください。
また、本画面でご記入いただいた個人情報は、お問い合わせ先の不動産会社でも保管します。 お問い合わせ先の不動産会社が保管する個人情報の取り扱いについては、不動産会社に直接お問い合わせください。
国土交通大臣免許(5)第6101号 |
|---|
- 交通:
- 東急東横線/学芸大学駅 徒歩2分
- 東京都目黒区鷹番2丁目21-11 プラザ鷹番1F
- TEL:
- 0120-771-251
- FAX:
- 03-5720-6901
- 所属団体:
- (一社)不動産流通経営協会会員(公社)首都圏不動産公正取引協議会加盟
取引態様:専属専任媒介  - 00781770
|
- スマートフォンで
この不動産会社を見る

|
- 提携サイト等より掲載されている物件情報につきましては、不動産会社詳細情報にリンクされていないものがあります。
- 物件に関するお問合せは、物件詳細ページの「情報提供会社」に表示されている不動産会社へ直接お願いいたします。
- 間取図は、現況を優先させていただきます。
- 映像は物件の一部を撮影したものです。物件の契約にあたっての最終判断はご自身の判断に基づいて行ってください。
- 仲介手数料について

アットホームは物件情報の適正化に努めております。
内容に誤りがある場合にはこちらへご連絡ください。