兵庫県明石市大久保町江井島(江井ヶ島駅)の一戸建て:物件詳細
交通 所在地 |
駅徒歩 |
価格 |
間取り 建物面積 |
土地面積 私道負担面積 |
物件種目 築年月 |
山陽電鉄本線/江井ヶ島
兵庫県明石市大久保町江井島
|
13分
|
3,480万円
|
4LDK
104.48m²
|
139.59m²
有 7.80m²
|
新築一戸建て
2025年7月
|
駐車場2台分、南向き、外壁サイディング、バス1坪以上、24時間換気システム、閑静な住宅街
|
間取図
|
外観
|
<
その他の画像
>
|
交通 | 山陽電鉄本線 江井ヶ島駅 徒歩13分 |
---|
その他の交通 | 山陽電鉄本線 西江井ヶ島駅 徒歩17分 JR山陽本線 大久保駅 徒歩39分 |
所在地 |
兵庫県明石市大久保町江井島
|
物件種目 |
新築一戸建て |
価格 |
3,480万円 |
借地期間・地代(月額) |
- |
権利金 |
- |
敷金または保証金 |
- / - |
維持費等 |
- |
その他一時金 |
なし |
間取り |
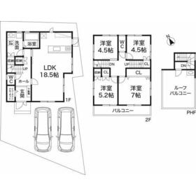
4LDK(LDK18.5、洋7、5.2、4.5、4.5) |
建物面積 |
104.48m² |
土地権利 |
所有権 |
建物構造 |
木造 |
土地面積 |
139.59m²(公簿) |
私道負担面積 |
有 7.80m² |
築年月 |
2025年7月
|
都市計画 |
市街化区域 |
建物名 |
明石市大久保町江井島 新築戸建て |
建築確認番号 |
- |
用途地域 |
1種住居 |
駐車場 |
- |
建ぺい率 |
60% |
容積率 |
200% |
階建 |
2階建 |
接道状況 |
南 3.0m 公道 接面10.0m
|
地目 |
宅地 |
地勢 |
平坦 |
国土法届出 |
- |
セットバック |
要 7.80m² |
リフォーム履歴 |
- |
リノベーション履歴 |
- |
瑕疵保証 |
- |
瑕疵保険 |
- |
評価・証明書 |
- |
備考 |
主要採光面:南向き
徒歩13分の場所に明石市立江井島小学校があります。こちらは清潔感のある新築戸建て物件です。こちらの物件は南向きです。新築物件で新たな生活をスタートさせてみませんか。078-962-5271からお問い合わせいただければ、明石市の一戸建てをご紹介いたします。不動産のことなら、トラスト不動産にお任せください。
徒歩13分の場所に明石市立江井島小学校があります。魅力が満載の素敵な4LDK物件の情報をご用意しています。充実の設備が好評の3480万円の物件はこちらです。今回ご紹介しているこちらの物件は南向きです。山陽電鉄本線江井ヶ島近くに気になる不動産があれば、トラスト不動産までご連絡して、内覧のご予約を行って下さい。
|
エネルギー消費性能 |
- |
断熱性能 |
- |
目安光熱費 |
- |
バス・トイレ |
トイレ2ヶ所 |
キッチン |
オープンキッチン、システムキッチン、食器洗浄乾燥機、浄水器、3口以上コンロ |
設備・サービス |
シューズインクローゼット、クローゼット、床下収納、カードキー、全居室フローリング、上水道、下水道、都市ガス、電気、ルーフバルコニー、ダウンライト、複層ガラス |
その他 |
- |
現況 |
完成済 |
引渡可能時期 |
即時 |
物件番号 |
1148700814 |
|
|
情報公開日 |
2025年10月11日 |
次回更新予定日 |
2025年10月25日 |
ケータイ用バーコード |
- スマートフォンでこの物件を見る
- スマートフォンからもこの物件をご覧になれます。
|
※「-」と表示されている項目については、情報提供会社にご確認ください。
周辺施設 |
山陽電車江井ヶ島駅 |
距離 |
1052m |
写真を見る |
周辺施設 |
江井島港(バス停) |
距離 |
106m |
写真を見る |
周辺施設 |
ながさわ明石江井島酒館 |
距離 |
423m |
写真を見る |
周辺施設 |
江井島保育所 |
距離 |
623m |
写真を見る |
周辺施設 |
明石市立江井島幼稚園 |
距離 |
804m |
写真を見る |
周辺施設 |
明石市立江井島小学校 |
距離 |
987m |
写真を見る |
周辺施設 |
明石市立江井島中学校 |
距離 |
1262m |
写真を見る |
周辺施設 |
エーコープ江井ケ島店 |
距離 |
959m |
写真を見る |
ここから簡単にお問い合わせをすることができます。
(SSLでの暗号化での送信を希望されるお客さまは
こちら
よりお問い合わせください)
お問い合わせを行う前に
「個人情報の取り扱いについて」を必ずお読みください。
「個人情報の取り扱いについて」に同意いただいた場合は「上記にご同意の上 確認画面へ進む」のボタンをクリックしてください。
個人情報の取り扱いについて
皆さまが送付された個人情報はアットホーム(株)のサーバを経由し、お問い合わせ先の不動産会社にメールまたはFAXにて転送されるためアットホーム(株)にも保管されます。アットホーム(株)で保管された個人情報の取り扱いについては、【こちら】をご覧ください。
また、本画面でご記入いただいた個人情報は、お問い合わせ先の不動産会社でも保管します。 お問い合わせ先の不動産会社が保管する個人情報の取り扱いについては、不動産会社に直接お問い合わせください。
兵庫県知事免許(3)第401435号 |
---|
- 交通:
- JR山陽本線/朝霧駅 徒歩20分
- 兵庫県明石市朝霧東町2丁目1-37
- TEL:
- 078-962-5271
- FAX:
- 078-962-5281
- 所属団体:
- (一社)兵庫県宅地建物取引業協会会員(公社)近畿地区不動産公正取引協議会加盟
取引態様:媒介  - 50025094
|
- スマートフォンで
この不動産会社を見る

|
- 提携サイト等より掲載されている物件情報につきましては、不動産会社詳細情報にリンクされていないものがあります。
- 物件に関するお問合せは、物件詳細ページの「情報提供会社」に表示されている不動産会社へ直接お願いいたします。
- 間取図は、現況を優先させていただきます。
- 映像は物件の一部を撮影したものです。物件の契約にあたっての最終判断はご自身の判断に基づいて行ってください。
- 仲介手数料について

アットホームは物件情報の適正化に努めております。
内容に誤りがある場合にはこちらへご連絡ください。