東京都世田谷区南烏山5丁目(千歳烏山駅)の一戸建て:物件詳細
交通 所在地 |
駅徒歩 |
価格 |
間取り 建物面積 |
土地面積 私道負担面積 |
物件種目 築年月 |
|
京王線/千歳烏山
東京都世田谷区南烏山5丁目
|
7分
|
8,500万円
|
4LDK
132.42m²
|
97.24m²
なし
|
中古一戸建て
2011年1月(築15年3ヶ月)
|
|
閑静な住宅街
|
|
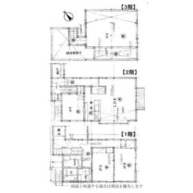
間取図
間取り図
|
周辺環境
世田谷区立烏山小学校まで約1400m
|
その他の画像
|
| 交通 | 京王線 千歳烏山駅 徒歩7分 |
|---|
| その他の交通 | 京王線 芦花公園駅 徒歩14分 小田急小田原線 祖師ヶ谷大蔵駅 徒歩2700m [バス利用可] バス 24分 粕谷町 停歩2分 |
| 所在地 |
東京都世田谷区南烏山5丁目
|
| 物件種目 |
中古一戸建て |
| 価格 |
8,500万円 |
借地期間・地代(月額) |
- |
| 権利金 |
- |
敷金または保証金 |
- / - |
| 維持費等 |
- |
その他一時金 |
- |
| 間取り |
4LDK |
建物面積 |
132.42m² |
| 土地権利 |
所有権 |
建物構造 |
木造 |
| 土地面積 |
97.24m²(公簿) |
私道負担面積 |
なし |
| 築年月 |
2011年1月(築15年3ヶ月)
|
都市計画 |
市街化区域 |
| 建物名 |
世田谷区南烏山5丁目 |
建築確認番号 |
- |
| 用途地域 |
1種低層 |
駐車場 |
無 |
| 建ぺい率 |
60% |
容積率 |
150% |
| 階建 |
3階建 |
接道状況 |
北西 4.0m 私道
|
| 地目 |
宅地 |
地勢 |
平坦 |
| 国土法届出 |
- |
セットバック |
済 1.61m² |
| アピールポイント |
ここが 『 朝日土地建物 』 イチ押しポイント!!
【世田谷区南烏山5丁目】
・コンビニ、スーパーまで徒歩圏内
・閑静な住宅街
・使いやすい広々とした4LDK
まずはお気軽にご覧ください!!
朝日土地建物登戸支店営業2課 0120-51-7062 まで!!
併せて 『 住宅ローン説明会 』 も開催中
お気軽にご相談ください!!
~土日に限らず平日いつでもご案内できます~ |
| リフォーム履歴 |
- |
| リノベーション履歴 |
- |
| 瑕疵保証 |
- |
| 瑕疵保険 |
- |
| 評価・証明書 |
- |
| 備考 |
総戸数:1戸
法令等制限:宅地造成工事規制区域 敷地面積最低限度有 日影制限有
■オンライン見学できます♪(予約制)■ご見学時のご送迎もお気軽にお申し付けください。■お仕事帰りのご相談等もご対応できます。(予約制)■無料FP相談会(予約制)まずは、お気軽に「朝日土地建物」までお問い合わせください♪
朝日土地建物株式会社は、神奈川県・東京都・埼玉県の不動産を中心に取り扱っている不動産会社です。おかげさまで創業41年の信頼と安心でお客様の住まい探しを全力でサポートいたします。
|
| エネルギー消費性能 |
- |
| 断熱性能 |
- |
| 目安光熱費 |
- |
| バス・トイレ |
トイレ2ヶ所 |
| キッチン |
3口以上コンロ |
| 設備・サービス |
床暖房、上水道、下水道、都市ガス、火災警報器(報知機) |
| その他 |
- |
| 現況 |
所有者居住中 |
引渡可能時期 |
相談 |
| 物件番号 |
1148749111 |
|
|
| 情報公開日 |
2026年3月12日 |
次回更新予定日 |
2026年4月9日 |
| ケータイ用バーコード |
- スマートフォンでこの物件を見る
- スマートフォンからもこの物件をご覧になれます。
|
※「-」と表示されている項目については、情報提供会社にご確認ください。
ここから簡単にお問い合わせをすることができます。
(SSLでの暗号化での送信を希望されるお客さまは
こちら
よりお問い合わせください)
お問い合わせを行う前に
「個人情報の取り扱いについて」を必ずお読みください。
「個人情報の取り扱いについて」に同意いただいた場合は「上記にご同意の上 確認画面へ進む」のボタンをクリックしてください。
個人情報の取り扱いについて
皆さまが送付された個人情報はアットホーム(株)のサーバを経由し、お問い合わせ先の不動産会社にメールまたはFAXにて転送されるためアットホーム(株)にも保管されます。アットホーム(株)で保管された個人情報の取り扱いについては、【こちら】をご覧ください。
また、本画面でご記入いただいた個人情報は、お問い合わせ先の不動産会社でも保管します。 お問い合わせ先の不動産会社が保管する個人情報の取り扱いについては、不動産会社に直接お問い合わせください。
国土交通大臣免許(9)第3744号 |
|---|
- 交通:
- 小田急小田原線/登戸駅 徒歩1分
- 神奈川県川崎市多摩区登戸2423-1 maruei7 1F
- TEL:
- 044-922-4392
- FAX:
- 044-922-4317
- 所属団体:
- (公社)神奈川県宅地建物取引業協会会員(公社)首都圏不動産公正取引協議会加盟
取引態様:媒介  - 00783952
|
- スマートフォンで
この不動産会社を見る

|
- 提携サイト等より掲載されている物件情報につきましては、不動産会社詳細情報にリンクされていないものがあります。
- 物件に関するお問合せは、物件詳細ページの「情報提供会社」に表示されている不動産会社へ直接お願いいたします。
- 間取図は、現況を優先させていただきます。
- 映像は物件の一部を撮影したものです。物件の契約にあたっての最終判断はご自身の判断に基づいて行ってください。
- 仲介手数料について

アットホームは物件情報の適正化に努めております。
内容に誤りがある場合にはこちらへご連絡ください。