愛知県名古屋市守山区森孝1丁目(大森・金城学院前駅)の一戸建て:物件詳細
交通 所在地 |
駅徒歩 |
価格 |
間取り 建物面積 |
土地面積 私道負担面積 |
物件種目 築年月 |
|
名鉄瀬戸線/大森・金城学院前
愛知県名古屋市守山区森孝1丁目
|
24分
|
3,850万円
|
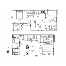
3LDK
97.81m²
|
97.23m²
なし
|
新築一戸建て
2026年1月
|
|
駐車場2台分、バス1坪以上、全室2面採光、2面採光、24時間換気システム、閑静な住宅街、整形地、設計住宅性能評価書あり、長期優良住宅(耐震、省エネ性等高い)
|
|
間取図
|
外観
|
その他の画像
|
| 交通 | 名鉄瀬戸線 大森・金城学院前駅 徒歩24分 |
|---|
| その他の交通 | 名鉄瀬戸線 喜多山駅 徒歩32分 名古屋市東山線 藤が丘駅 徒歩32分 |
| 所在地 |
愛知県名古屋市守山区森孝1丁目
|
| 物件種目 |
新築一戸建て |
| 価格 |
3,850万円 |
借地期間・地代(月額) |
- |
| 権利金 |
- |
敷金または保証金 |
- / - |
| 維持費等 |
- |
その他一時金 |
なし |
| 間取り |
3LDK |
建物面積 |
97.81m² |
| 土地権利 |
所有権 |
建物構造 |
木造 |
| 土地面積 |
97.23m²(公簿) |
私道負担面積 |
なし |
| 築年月 |
2026年1月
|
都市計画 |
- |
| 建物名 |
守山区森孝3期(全3棟)2号棟 |
建築確認番号 |
K125-0420-54599 |
| 用途地域 |
1種住居 |
駐車場 |
- |
| 建ぺい率 |
60% |
容積率 |
200% |
| 階建 |
2階建 |
接道状況 |
北 2.0m 公道
・ 東 4.0m 公道
|
| 地目 |
宅地 |
地勢 |
- |
| 国土法届出 |
- |
セットバック |
要 |
| アピールポイント |
【物件コメント】
・家族三世代が安心に住める長期優良住宅☆
・主要道路へのアクセスが良く、通勤や通学に便利です。
・小中学校まで徒歩15分圏内!
・閑静な住宅地で、環境も良好なエリアです☆
・角地のため圧迫感がなく、爽やかな風が抜けるおうちです☆
・広いリビング19.4帖!くつろぎスペースが家族の憩いの空間に☆
・LDKから洗面スペースへと繋がる、効率的な家事動線♪
・主寝室が広く、WICでお部屋もスッキリ。
・パントリー+WIC+SIC。収納豊富な人気の間取りです。
・インナーバルコニーは洗濯物が目立ちにくく、急な雨でも安心です☆
おうちと皆様のご縁を結ぶことが私たちの使命です。
皆様にお会いできますことを、心よりお待ち申し上げております。 |
| リフォーム履歴 |
- |
| リノベーション履歴 |
- |
| 瑕疵保証 |
- |
| 瑕疵保険 |
- |
| 評価・証明書 |
■長期優良住宅認定通知書 長期優良住宅認定通知書あり |
| 備考 |
総戸数:3戸
工事完了予定日:2026年1月
15m高度地区、景観法、都市再生特別措置法、緑化地域、前面道路制限(容積率160%)、セットバック(北側:1.0m)
|
| エネルギー消費性能 |
- |
| 断熱性能 |
- |
| 目安光熱費 |
- |
| バス・トイレ |
浴室乾燥機、オートバス、追焚機能、温水洗浄便座、トイレ2ヶ所 |
| キッチン |
カウンターキッチン、システムキッチン、食器洗浄乾燥機、浄水器 |
| 設備・サービス |
全居室収納、ウォークインクローゼット、EV車充電設備、床下収納、モニター付インターホン、全居室フローリング、上水道、下水道、都市ガス、電気、庭、複層ガラス |
| その他 |
- |
| 現況 |
建築中 |
引渡可能時期 |
相談 |
| 物件番号 |
1148943214 |
|
|
| 情報公開日 |
2025年10月17日 |
次回更新予定日 |
2025年12月15日 |
| ケータイ用バーコード |
- スマートフォンでこの物件を見る
- スマートフォンからもこの物件をご覧になれます。
|
※「-」と表示されている項目については、情報提供会社にご確認ください。
| 周辺施設 |
ナフコ不二屋 引山店 |
| 距離 |
504m |
写真を見る |
| 周辺施設 |
イオン 名古屋東店 |
| 距離 |
1208m |
写真を見る |
| 周辺施設 |
マックスバリュ 香流店 |
| 距離 |
1335m |
写真を見る |
| 周辺施設 |
ファミリーマート 名東延珠町店 |
| 距離 |
225m |
写真を見る |
| 周辺施設 |
名古屋市立森孝中学校 |
| 距離 |
1212m |
写真を見る |
| 周辺施設 |
名古屋市立森孝西小学校 |
| 距離 |
363m |
写真を見る |
| 周辺施設 |
医療法人博報会いのこし病院 |
| 距離 |
1406m |
写真を見る |
ここから簡単にお問い合わせをすることができます。
(SSLでの暗号化での送信を希望されるお客さまは
こちら
よりお問い合わせください)
お問い合わせを行う前に
「個人情報の取り扱いについて」を必ずお読みください。
「個人情報の取り扱いについて」に同意いただいた場合は「上記にご同意の上 確認画面へ進む」のボタンをクリックしてください。
個人情報の取り扱いについて
皆さまが送付された個人情報はアットホーム(株)のサーバを経由し、お問い合わせ先の不動産会社にメールまたはFAXにて転送されるためアットホーム(株)にも保管されます。アットホーム(株)で保管された個人情報の取り扱いについては、【こちら】をご覧ください。
また、本画面でご記入いただいた個人情報は、お問い合わせ先の不動産会社でも保管します。 お問い合わせ先の不動産会社が保管する個人情報の取り扱いについては、不動産会社に直接お問い合わせください。
愛知県知事免許(1)第24749号 |
|---|
- 交通:
- JR中央線/新守山駅 徒歩11分 【バス】4分 二城小学校 停歩1分
- 愛知県名古屋市守山区西川原町137
- TEL:
- 0120-398-335
- FAX:
- 052-715-3631
- 所属団体:
- (公社)愛知県宅地建物取引業協会会員東海不動産公正取引協議会加盟
取引態様:一般媒介  - 40412507
|
- スマートフォンで
この不動産会社を見る

|
- 提携サイト等より掲載されている物件情報につきましては、不動産会社詳細情報にリンクされていないものがあります。
- 物件に関するお問合せは、物件詳細ページの「情報提供会社」に表示されている不動産会社へ直接お願いいたします。
- 間取図は、現況を優先させていただきます。
- 映像は物件の一部を撮影したものです。物件の契約にあたっての最終判断はご自身の判断に基づいて行ってください。
- 仲介手数料について

アットホームは物件情報の適正化に努めております。
内容に誤りがある場合にはこちらへご連絡ください。