熊本県熊本市南区富合町榎津(富合駅)の一戸建て:物件詳細
交通 所在地 |
駅徒歩 |
価格 |
間取り 建物面積 |
土地面積 私道負担面積 |
物件種目 築年月 |
|
JR三角線/富合
熊本県熊本市南区富合町榎津
|
2800m
|
3,309万円
|
4LDK
106.40m²
|
201.56m²
-
|
新築一戸建て
2026年5月
|
|
駐車場3台分以上、バス1坪以上、オール電化
|
|
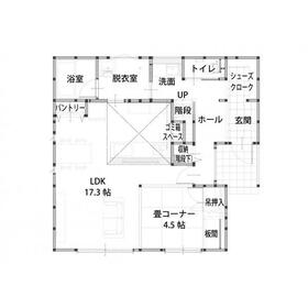
間取図
平面図1階
|
完成イメージパース※外構は価格に含みません|ダークカラーの重厚感あるモダン外観
|
その他の画像
|
| 交通 | JR三角線 富合駅 徒歩2800m |
| 所在地 |
熊本県熊本市南区富合町榎津
|
| 物件種目 |
新築一戸建て |
| 価格 |
3,309万円 |
借地期間・地代(月額) |
- |
| 権利金 |
- |
敷金または保証金 |
- / - |
| 維持費等 |
- |
その他一時金 |
- |
| 間取り |
4LDK |
建物面積 |
106.40m² |
| 土地権利 |
所有権 |
建物構造 |
木造 |
| 土地面積 |
201.56m² |
私道負担面積 |
- |
| 築年月 |
2026年5月
|
都市計画 |
調整区域 |
| 建物名 |
熊本市南区富合町榎津(11) 32坪 |
建築確認番号 |
第202518030号(令和7年12月23日) |
| 用途地域 |
無指定 |
駐車場 |
有 |
| 建ぺい率 |
40% |
容積率 |
80% |
| 階建 |
2階建 |
接道状況 |
南西 5.0m 接面4.0m
|
| 地目 |
宅地 |
地勢 |
- |
| 国土法届出 |
- |
セットバック |
- |
| アピールポイント |
くつろぎの畳コーナーと家事ラク動線のある32坪4LDKの二階建て
~富合小学校・富合中学校エリア~
◇富合小学校まで徒歩約19分
◇富合中学校まで徒歩約19分
◇ホームプラザナフコ 富合店まで車約7分
◇サンサンうきっ子まで車約4分
◇セブンイレブン熊本富合町店まで車約6分
\オススメPOINT/
・3台駐車可
・照明、カーテン付き
・リビングエアコン付き
・太陽光発電システムあり
・シューズクローク
・ウォークインクローゼット
・畳コーナー |
| リフォーム履歴 |
- |
| リノベーション履歴 |
- |
| 瑕疵保証 |
- |
| 瑕疵保険 |
- |
| 評価・証明書 |
- |
| 備考 |
-
|
| エネルギー消費性能 |
- |
| 断熱性能 |
- |
| 目安光熱費 |
- |
| バス・トイレ |
トイレ2ヶ所 |
| キッチン |
システムキッチン、食器洗浄乾燥機、IHクッキングヒーター |
| 設備・サービス |
全居室収納、ウォークインクローゼット、太陽光発電システム、シューズインクローゼット、上水道、下水道、エアコン、照明器具、複層ガラス |
| その他 |
- |
| 現況 |
建築中 |
引渡可能時期 |
相談 |
| 物件番号 |
1149265811 |
|
|
| 情報公開日 |
2026年1月27日 |
次回更新予定日 |
2026年5月14日 |
| ケータイ用バーコード |
- スマートフォンでこの物件を見る
- スマートフォンからもこの物件をご覧になれます。
|
※「-」と表示されている項目については、情報提供会社にご確認ください。
ここから簡単にお問い合わせをすることができます。
(SSLでの暗号化での送信を希望されるお客さまは
こちら
よりお問い合わせください)
お問い合わせを行う前に
「個人情報の取り扱いについて」を必ずお読みください。
「個人情報の取り扱いについて」に同意いただいた場合は「上記にご同意の上 確認画面へ進む」のボタンをクリックしてください。
個人情報の取り扱いについて
皆さまが送付された個人情報はアットホーム(株)のサーバを経由し、お問い合わせ先の不動産会社にメールまたはFAXにて転送されるためアットホーム(株)にも保管されます。アットホーム(株)で保管された個人情報の取り扱いについては、【こちら】をご覧ください。
また、本画面でご記入いただいた個人情報は、お問い合わせ先の不動産会社でも保管します。 お問い合わせ先の不動産会社が保管する個人情報の取り扱いについては、不動産会社に直接お問い合わせください。
国土交通大臣免許(3)第8831号 |
|---|
- 交通:
- JR豊肥本線/平成駅 徒歩10分
- 熊本県熊本市南区馬渡2丁目12-35
- TEL:
- 096-370-0007
- FAX:
- 096-370-0700
- 所属団体:
- (公社)熊本県宅地建物取引業協会会員(一社)九州不動産公正取引協議会加盟
取引態様:売主  - 80500237
|
- スマートフォンで
この不動産会社を見る

|
- 提携サイト等より掲載されている物件情報につきましては、不動産会社詳細情報にリンクされていないものがあります。
- 物件に関するお問合せは、物件詳細ページの「情報提供会社」に表示されている不動産会社へ直接お願いいたします。
- 間取図は、現況を優先させていただきます。
- 映像は物件の一部を撮影したものです。物件の契約にあたっての最終判断はご自身の判断に基づいて行ってください。
- 仲介手数料について

アットホームは物件情報の適正化に努めております。
内容に誤りがある場合にはこちらへご連絡ください。