東京都八王子市館町(めじろ台駅)の一戸建て:物件詳細
交通 所在地 |
駅徒歩 |
価格 |
間取り 建物面積 |
土地面積 私道負担面積 |
物件種目 築年月 |
|
京王高尾線/めじろ台
東京都八王子市館町
|
24分
|
2,580万円
|
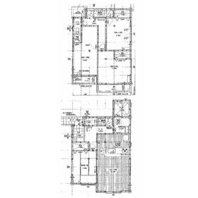
4LDK
100.19m²
|
130.50m²
なし
|
中古一戸建て
2018年11月(築7年4ヶ月)
|
|
駐車場2台分、駐車場3台分以上、バス1坪以上、全室2面採光、2面採光、整形地、分譲地内
|
|
間取図
季節の移ろいを身近に感じる、自然豊かな閑静な住宅街
|
周辺環境
京王電鉄高尾線「狭間」駅迄2040m
|
<
その他の画像
>
|
| 交通 | 京王高尾線 めじろ台駅 徒歩24分 |
|---|
| その他の交通 | 京王高尾線 高尾駅 徒歩26分 [バス利用可] バス 9分 停歩17分 京王高尾線 狭間駅 徒歩29分 |
| 所在地 |
東京都八王子市館町
|
| 物件種目 |
中古一戸建て |
| 価格 |
2,580万円 |
借地期間・地代(月額) |
- |
| 権利金 |
- |
敷金または保証金 |
- / - |
| 維持費等 |
- |
その他一時金 |
- |
| 間取り |
4LDK |
建物面積 |
100.19m² |
| 土地権利 |
所有権 |
建物構造 |
木造 |
| 土地面積 |
130.50m²(公簿) |
私道負担面積 |
なし |
| 築年月 |
2018年11月(築7年4ヶ月)
|
都市計画 |
- |
| 建物名 |
八王子市館町 |
建築確認番号 |
- |
| 用途地域 |
1種低層 |
駐車場 |
有 |
| 建ぺい率 |
40% |
容積率 |
80% |
| 階建 |
2階建 |
接道状況 |
北東 5.0m 公道 接面8.2m
|
| 地目 |
宅地 |
地勢 |
平坦 |
| 国土法届出 |
- |
セットバック |
- |
| アピールポイント |
敷地130.50m2、建物100.19m2のゆとりある4LDK中古戸建です。土地にも建物にも十分な広さが確保されており、ご家族それぞれのプライベート空間を大切にしながら、のびのびと暮らしていただけます。リビングを中心にゆとりある室内設計となっており、日々の生活動線も快適。部屋数も敷地も妥協したくない方におすすめの一邸です。広さが生み出す開放感と安心感を、ぜひ現地にてご体感ください。皆様のお問い合わせを心よりお待ちしております。 |
| リフォーム履歴 |
- |
| リノベーション履歴 |
- |
| 瑕疵保証 |
- |
| 瑕疵保険 |
- |
| 評価・証明書 |
- |
| 備考 |
主要採光面:南東向き
総戸数:1戸
法令等制限:宅地造成工事規制区域、航空法、景観法、高度地区、日影制限有
平坦地、整形地、分譲地内、2沿線以上利用可、急行停車駅、始発駅、駐車場2台分、駐車場3台分以上、下水道、電気、対面式キッチン、システムキッチン、オープンキッチン、浄水器、追焚き給湯、浴室乾燥機、浴室暖房、浴室に窓、バス1坪以上、温水洗浄便座、トイレ2ヶ所、シャワー付き洗面化粧台、独立洗面台、室内洗濯機置場、全居室収納スペース、床下収納、バルコニー、全居室2面採光、2面採光、フローリング、複層ガラス、ペアガラス、ダブルロックドア、ディンプルキー、TVインターホン、火災警報器(報知機)、見学可高さ限度有、法第22条区域、館地区地区計画区域
|
| エネルギー消費性能 |
- |
| 断熱性能 |
- |
| 目安光熱費 |
- |
| バス・トイレ |
浴室暖房、浴室乾燥機、追焚機能、シャワー付洗面化粧台、温水洗浄便座、トイレ2ヶ所、浴室に窓あり |
| キッチン |
オープンキッチン、システムキッチン、浄水器、3口以上コンロ |
| 設備・サービス |
床下収納、モニター付インターホン、ディンプルキー、ダブルロックドア、上水道、下水道、都市ガス、電気、火災警報器(報知機)、複層ガラス |
| その他 |
- |
| 現況 |
空家 |
引渡可能時期 |
相談 |
| 物件番号 |
1149707011 |
|
|
| 情報公開日 |
2026年2月20日 |
次回更新予定日 |
2026年3月6日 |
| ケータイ用バーコード |
- スマートフォンでこの物件を見る
- スマートフォンからもこの物件をご覧になれます。
|
※「-」と表示されている項目については、情報提供会社にご確認ください。
| 周辺施設 |
京王電鉄高尾線「狭間」駅迄2040m |
| 距離 |
2040m |
写真を見る |
| 周辺施設 |
フードワンゆりのき台店迄950m |
| 距離 |
950m |
写真を見る |
| 周辺施設 |
セブンイレブン 八王子館町店迄1010m |
| 距離 |
1010m |
写真を見る |
| 周辺施設 |
井脇医院迄1520m |
| 距離 |
1520m |
写真を見る |
| 周辺施設 |
殿入北公園迄390m |
| 距離 |
390m |
写真を見る |
| 周辺施設 |
八王子市立館中学校迄1790m |
| 距離 |
1790m |
写真を見る |
| 周辺施設 |
八王子市立横山第一小学校迄1130m |
| 距離 |
1130m |
写真を見る |
| 周辺施設 |
共励第三保育園迄1790m |
| 距離 |
1790m |
写真を見る |
ここから簡単にお問い合わせをすることができます。
(SSLでの暗号化での送信を希望されるお客さまは
こちら
よりお問い合わせください)
お問い合わせを行う前に
「個人情報の取り扱いについて」を必ずお読みください。
「個人情報の取り扱いについて」に同意いただいた場合は「上記にご同意の上 確認画面へ進む」のボタンをクリックしてください。
個人情報の取り扱いについて
皆さまが送付された個人情報はアットホーム(株)のサーバを経由し、お問い合わせ先の不動産会社にメールまたはFAXにて転送されるためアットホーム(株)にも保管されます。アットホーム(株)で保管された個人情報の取り扱いについては、【こちら】をご覧ください。
また、本画面でご記入いただいた個人情報は、お問い合わせ先の不動産会社でも保管します。 お問い合わせ先の不動産会社が保管する個人情報の取り扱いについては、不動産会社に直接お問い合わせください。
国土交通大臣免許(9)第3744号 |
|---|
- 交通:
- JR中央線/八王子駅 徒歩1分
- 東京都八王子市旭町10-3 安嶋中央ビル4F
- TEL:
- 0120-57-6312
- FAX:
- 042-642-4312
- 所属団体:
- (公社)東京都宅地建物取引業協会会員(公社)首都圏不動産公正取引協議会加盟
取引態様:媒介  - 00781573
|
- スマートフォンで
この不動産会社を見る

|
- 提携サイト等より掲載されている物件情報につきましては、不動産会社詳細情報にリンクされていないものがあります。
- 物件に関するお問合せは、物件詳細ページの「情報提供会社」に表示されている不動産会社へ直接お願いいたします。
- 間取図は、現況を優先させていただきます。
- 映像は物件の一部を撮影したものです。物件の契約にあたっての最終判断はご自身の判断に基づいて行ってください。
- 仲介手数料について

アットホームは物件情報の適正化に努めております。
内容に誤りがある場合にはこちらへご連絡ください。