神奈川県大和市西鶴間2丁目(鶴間駅)の一戸建て:物件詳細
交通 所在地 |
駅徒歩 |
価格 |
間取り 建物面積 |
土地面積 私道負担面積 |
物件種目 築年月 |
|
小田急江ノ島線/鶴間
神奈川県大和市西鶴間2丁目
|
4分
|
4,280万円
|
3LDK
87.11m²
|
72.76m²
なし
|
新築一戸建て
2025年6月
|
|
全室2面採光、2面採光、24時間換気システム
|
|
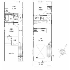
間取図
2号棟
|
外観
2号棟
|
<
その他の画像
>
|
| 交通 | 小田急江ノ島線 鶴間駅 徒歩4分 |
|---|
| その他の交通 | 相鉄本線 大和駅 【バス】 14分 水道局前 停歩4分 東急田園都市線 中央林間駅 徒歩31分 |
| 所在地 |
神奈川県大和市西鶴間2丁目
|
| 物件種目 |
新築一戸建て |
| 価格 |
4,280万円 |
借地期間・地代(月額) |
- |
| 権利金 |
- |
敷金または保証金 |
- / - |
| 維持費等 |
- |
その他一時金 |
なし |
| 間取り |
3LDK(洋室4.5帖 洋室5.1帖 洋室4.5帖 LDK16.5帖) |
建物面積 |
87.11m² |
| 土地権利 |
所有権 |
建物構造 |
木造 |
| 土地面積 |
72.76m²(公簿) |
私道負担面積 |
なし |
| 築年月 |
2025年6月
|
都市計画 |
市街化区域 |
| 建物名 |
大和市西鶴間2丁目全2棟 2号棟 新築戸建 |
建築確認番号 |
第2024SBC-確02723H号 |
| 用途地域 |
1種住居 |
駐車場 |
有 無料 |
| 建ぺい率 |
60% |
容積率 |
200% |
| 階建 |
2階建 |
接道状況 |
南東 4.0m 公道 接面4.8m
|
| 地目 |
宅地 |
地勢 |
- |
| 国土法届出 |
- |
セットバック |
- |
| アピールポイント |
☆◆--------------◆☆
◆弊社独自の住宅ローン提案システム◆
弊社ではファイナンシャル専門スタッフによる
【丁寧な資金アドバイス】
【ファイナンシャルプラン提案書の作成】
を随時行っております。
意外に知らないお客様が多い
【定年時の住宅ローン残高】
【住宅購入者だけが加入できる無料の生命保険】
【13年間もらえる、国からの特別ボーナス】
これから多くなる【教育費】
住宅を買った後から始まる【住宅ローン返済】
65歳以上から必要になる【老後の費用負担】
住宅探しの【このタイミング】で不安な部分を明確にしていきませんか??
☆◆--------------◆☆
|
| リフォーム履歴 |
- |
| リノベーション履歴 |
- |
| 瑕疵保証 |
- |
| 瑕疵保険 |
- |
| 評価・証明書 |
- |
| 備考 |
主要採光面:南東向き
総戸数:2戸
法令等制限:航空法/景観法
BELS/省エネ基準適合認定
■三ツ境店は相鉄線[三ツ境]駅南口徒歩1分
■鶴ヶ峰店は相鉄線[鶴ヶ峰]駅北口徒歩3分
■大和店は相鉄線・小田急線[大和]駅北口徒歩3分
各店舗[駐車場・キッズスペース]有!お気軽にご来店下さい
|
| エネルギー消費性能 |
- |
| 断熱性能 |
- |
| 目安光熱費 |
- |
| バス・トイレ |
ミストサウナ、浴室暖房、浴室乾燥機、オートバス、追焚機能、温水洗浄便座、トイレ2ヶ所、浴室に窓あり |
| キッチン |
システムキッチン、食器洗浄乾燥機、浄水器、3口以上コンロ |
| 設備・サービス |
全居室収納、床暖房、クローゼット、モニター付インターホン、シャッター雨戸、上水道、下水道、都市ガス、電気、ダウンライト、照明器具、複層ガラス、Low-E ガラス |
| その他 |
- |
| 現況 |
空家 |
引渡可能時期 |
相談 |
| 物件番号 |
1168766007 |
|
|
| 情報公開日 |
2025年6月29日 |
次回更新予定日 |
2025年11月14日 |
| ケータイ用バーコード |
- スマートフォンでこの物件を見る
- スマートフォンからもこの物件をご覧になれます。
|
※「-」と表示されている項目については、情報提供会社にご確認ください。
| 周辺施設 |
大和南林間雲母保育園 |
| 距離 |
510m |
写真を見る |
| 周辺施設 |
大和市立西鶴間小学校 |
| 距離 |
530m |
写真を見る |
| 周辺施設 |
大和市立大和中学校 |
| 距離 |
990m |
写真を見る |
| 周辺施設 |
ローソン 大和西鶴間二丁目店 |
| 距離 |
140m |
写真を見る |
| 周辺施設 |
マルエツ 鶴間店 |
| 距離 |
420m |
写真を見る |
| 周辺施設 |
サンドラッグ西鶴間店 |
| 距離 |
460m |
写真を見る |
| 周辺施設 |
やまとオークシティー |
| 距離 |
1160m |
写真を見る |
| 周辺施設 |
泉の森クリニック |
| 距離 |
100m |
写真を見る |
ここから簡単にお問い合わせをすることができます。
(SSLでの暗号化での送信を希望されるお客さまは
こちら
よりお問い合わせください)
お問い合わせを行う前に
「個人情報の取り扱いについて」を必ずお読みください。
「個人情報の取り扱いについて」に同意いただいた場合は「上記にご同意の上 確認画面へ進む」のボタンをクリックしてください。
個人情報の取り扱いについて
皆さまが送付された個人情報はアットホーム(株)のサーバを経由し、お問い合わせ先の不動産会社にメールまたはFAXにて転送されるためアットホーム(株)にも保管されます。アットホーム(株)で保管された個人情報の取り扱いについては、【こちら】をご覧ください。
また、本画面でご記入いただいた個人情報は、お問い合わせ先の不動産会社でも保管します。 お問い合わせ先の不動産会社が保管する個人情報の取り扱いについては、不動産会社に直接お問い合わせください。
神奈川県知事免許(2)第29327号 |
|---|
- 交通:
- 相鉄本線/三ツ境駅 徒歩1分
- 神奈川県横浜市瀬谷区三ツ境15-4
- TEL:
- 0120-102-687
- FAX:
- 045-360-3032
- 所属団体:
- (公社)神奈川県宅地建物取引業協会会員(公社)首都圏不動産公正取引協議会加盟
取引態様:媒介  - 00260037
|
- スマートフォンで
この不動産会社を見る

|
- 提携サイト等より掲載されている物件情報につきましては、不動産会社詳細情報にリンクされていないものがあります。
- 物件に関するお問合せは、物件詳細ページの「情報提供会社」に表示されている不動産会社へ直接お願いいたします。
- 間取図は、現況を優先させていただきます。
- 映像は物件の一部を撮影したものです。物件の契約にあたっての最終判断はご自身の判断に基づいて行ってください。
- 仲介手数料について

アットホームは物件情報の適正化に努めております。
内容に誤りがある場合にはこちらへご連絡ください。