東京都町田市本町田(玉川学園前駅)の一戸建て:物件詳細
交通 所在地 |
駅徒歩 |
価格 |
間取り 建物面積 |
土地面積 私道負担面積 |
物件種目 築年月 |
|
小田急小田原線/玉川学園前
東京都町田市本町田
|
19分
|
6,780万円
|
5LDK
145.73m²
|
224.09m²
-
|
新築一戸建て
2025年1月
|
|
長期優良住宅(耐震、省エネ性等高い)
|
|
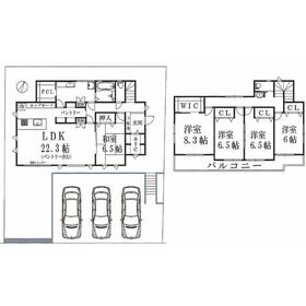
間取図
|
外観
|
<
その他の画像
>
|
| 交通 | 小田急小田原線 玉川学園前駅 徒歩19分 |
|---|
| その他の交通 | 小田急小田原線 町田駅 徒歩36分 JR横浜線 古淵駅 徒歩46分 |
| 所在地 |
東京都町田市本町田
|
| 物件種目 |
新築一戸建て |
| 価格 |
6,780万円 |
借地期間・地代(月額) |
- |
| 権利金 |
- |
敷金または保証金 |
- / - |
| 維持費等 |
- |
その他一時金 |
なし |
| 間取り |
5LDK(LDK22.3帖 和室6.5帖 洋室8.3帖 洋室6.5帖…) |
建物面積 |
145.73m² |
| 土地権利 |
所有権 |
建物構造 |
木造 |
| 土地面積 |
224.09m² |
私道負担面積 |
- |
| 築年月 |
2025年1月
|
都市計画 |
市街化区域 |
| 建物名 |
町田市本町田 |
建築確認番号 |
第24UDI1T建00255号 |
| 用途地域 |
1種低層 |
駐車場 |
- |
| 建ぺい率 |
40% |
容積率 |
80% |
| 階建 |
2階建 |
接道状況 |
南東 6.6m 公道
|
| 地目 |
宅地 |
地勢 |
- |
| 国土法届出 |
- |
セットバック |
- |
| アピールポイント |
【小田急の仲介】
◆土地面積約67坪!
◆建物面積145.73m2・5LDK!
◎開放感のあるフラット対面キッチン(食器洗い乾燥機付き)を採用
◎2700mmのカップボードにはダストボックス・蒸気処理機能が標準装備
◎収納力のあるパントリー・シューズインクローゼット・ファミリークローゼットを完備
◎洗面室は1700mmの三面鏡+ワイドカウンター |
| リフォーム履歴 |
- |
| リノベーション履歴 |
- |
| 瑕疵保証 |
- |
| 瑕疵保険 |
- |
| 評価・証明書 |
■長期優良住宅認定通知書 長期優良住宅認定通知書あり |
| 備考 |
主要採光面:南東向き
※長期優良住宅認定建物
|
| エネルギー消費性能 |
- |
| 断熱性能 |
- |
| 目安光熱費 |
- |
| バス・トイレ |
浴室暖房、浴室乾燥機、トイレ2ヶ所 |
| キッチン |
システムキッチン、食器洗浄乾燥機 |
| 設備・サービス |
全居室収納、ウォークインクローゼット、シューズインクローゼット、庭、ワイドバルコニー |
| その他 |
- |
| 現況 |
空家 |
引渡可能時期 |
相談 |
| 物件番号 |
1169086907 |
|
|
| 情報公開日 |
2025年4月25日 |
次回更新予定日 |
2025年11月11日 |
| ケータイ用バーコード |
- スマートフォンでこの物件を見る
- スマートフォンからもこの物件をご覧になれます。
|
※「-」と表示されている項目については、情報提供会社にご確認ください。
| 周辺施設 |
小田急線「玉川学園前」駅 |
| 距離 |
1520m |
写真を見る |
| 周辺施設 |
ローソン本町田店 |
| 距離 |
750m |
写真を見る |
| 周辺施設 |
sanwa玉川学園店 |
| 距離 |
1350m |
写真を見る |
| 周辺施設 |
小田急マルシェ玉川学園前 |
| 距離 |
1510m |
写真を見る |
| 周辺施設 |
町田市立町田第三小学校 |
| 距離 |
950m |
写真を見る |
| 周辺施設 |
町田市立薬師中学校 |
| 距離 |
1370m |
写真を見る |
| 周辺施設 |
町田市民病院 |
| 距離 |
1870m |
写真を見る |
| 周辺施設 |
セキチュー鶴川店 |
| 距離 |
1940m |
写真を見る |
ここから簡単にお問い合わせをすることができます。
(SSLでの暗号化での送信を希望されるお客さまは
こちら
よりお問い合わせください)
お問い合わせを行う前に
「個人情報の取り扱いについて」を必ずお読みください。
「個人情報の取り扱いについて」に同意いただいた場合は「上記にご同意の上 確認画面へ進む」のボタンをクリックしてください。
個人情報の取り扱いについて
皆さまが送付された個人情報はアットホーム(株)のサーバを経由し、お問い合わせ先の不動産会社にメールまたはFAXにて転送されるためアットホーム(株)にも保管されます。アットホーム(株)で保管された個人情報の取り扱いについては、【こちら】をご覧ください。
また、本画面でご記入いただいた個人情報は、お問い合わせ先の不動産会社でも保管します。 お問い合わせ先の不動産会社が保管する個人情報の取り扱いについては、不動産会社に直接お問い合わせください。
国土交通大臣免許(15)第1168号 |
|---|
- 交通:
- 小田急小田原線/相模大野駅 徒歩1分
- 神奈川県相模原市南区相模大野3丁目8-1 小田急相模大野ステーションスクエアA館7階
- TEL:
- 042-766-0909
- FAX:
- 042-766-0990
- 所属団体:
- (一社)不動産協会会員(公社)首都圏不動産公正取引協議会加盟
取引態様:媒介  - 00781386
|
- スマートフォンで
この不動産会社を見る

|
- 提携サイト等より掲載されている物件情報につきましては、不動産会社詳細情報にリンクされていないものがあります。
- 物件に関するお問合せは、物件詳細ページの「情報提供会社」に表示されている不動産会社へ直接お願いいたします。
- 間取図は、現況を優先させていただきます。
- 映像は物件の一部を撮影したものです。物件の契約にあたっての最終判断はご自身の判断に基づいて行ってください。
- 仲介手数料について

アットホームは物件情報の適正化に努めております。
内容に誤りがある場合にはこちらへご連絡ください。