福岡県春日市小倉東1丁目(春日駅)の一戸建て:物件詳細
交通 所在地 |
駅徒歩 |
価格 |
間取り 建物面積 |
土地面積 私道負担面積 |
物件種目 築年月 |
|
JR鹿児島本線/春日
福岡県春日市小倉東1丁目
|
20分
|
4,999万円
|
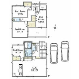
4LDK
109.24m²
|
156.08m²
なし
|
新築一戸建て
2025年11月
|
|
駐車場2台分、バス1坪以上
|
|
間取図
|
外観
|
その他の画像
|
| 交通 | JR鹿児島本線 春日駅 徒歩20分 |
|---|
| その他の交通 | JR鹿児島本線 春日駅 徒歩20分 |
| 所在地 |
福岡県春日市小倉東1丁目
|
| 物件種目 |
新築一戸建て |
| 価格 |
4,999万円 |
借地期間・地代(月額) |
- |
| 権利金 |
- |
敷金または保証金 |
- / - |
| 維持費等 |
- |
その他一時金 |
- |
| 間取り |
4LDK(LDK20畳 1階にリビング 主寝室8畳以上) |
建物面積 |
109.24m² |
| 土地権利 |
所有権 |
建物構造 |
木造 |
| 土地面積 |
156.08m² |
私道負担面積 |
なし |
| 築年月 |
2025年11月
|
都市計画 |
市街化区域 |
| 建物名 |
|
建築確認番号 |
第BVJ-ENG25-10-0480号 |
| 用途地域 |
1種中高 |
駐車場 |
有 |
| 建ぺい率 |
60% |
容積率 |
150% |
| 階建 |
2階建 |
接道状況 |
北西 3.0m 公道
|
| 地目 |
宅地 |
地勢 |
- |
| 国土法届出 |
- |
セットバック |
- |
| リフォーム履歴 |
- |
| リノベーション履歴 |
- |
| 瑕疵保証 |
- |
| 瑕疵保険 |
- |
| 評価・証明書 |
- |
| 備考 |
法令等制限:文化財保護法
別途通路等14.8m2有
|
| エネルギー消費性能 |
- |
| 断熱性能 |
- |
| 目安光熱費 |
- |
| バス・トイレ |
浴室乾燥機、シャワー付洗面化粧台、温水洗浄便座、トイレ2ヶ所 |
| キッチン |
カウンターキッチン、システムキッチン、食器洗浄乾燥機、浄水器 |
| 設備・サービス |
全居室収納、ウォークインクローゼット、都市ガス、複層ガラス |
| その他 |
- |
| 現況 |
建築中 |
引渡可能時期 |
指定有り2025年12月 |
| 物件番号 |
1169521907 |
|
|
| 情報公開日 |
2025年7月20日 |
次回更新予定日 |
2025年11月4日 |
| ケータイ用バーコード |
- スマートフォンでこの物件を見る
- スマートフォンからもこの物件をご覧になれます。
|
※「-」と表示されている項目については、情報提供会社にご確認ください。
| 周辺施設 |
鹿児島線「春日」駅 |
| 距離 |
1600m |
写真を見る |
| 周辺施設 |
サニー宝町店 |
| 距離 |
533m |
写真を見る |
| 周辺施設 |
マルキョウ宝町店 |
| 距離 |
1188m |
写真を見る |
| 周辺施設 |
若葉台中央公園 |
| 距離 |
432m |
写真を見る |
| 周辺施設 |
春日市立大谷小学校 |
| 距離 |
760m |
写真を見る |
| 周辺施設 |
春日市立春日東中学校 |
| 距離 |
676m |
写真を見る |
| 周辺施設 |
イオン大野城ショッピングセンター |
| 距離 |
2511m |
写真を見る |
| 周辺施設 |
ディスカウントドラッグコスモス春日宝町店 |
| 距離 |
745m |
写真を見る |
ここから簡単にお問い合わせをすることができます。
(SSLでの暗号化での送信を希望されるお客さまは
こちら
よりお問い合わせください)
お問い合わせを行う前に
「個人情報の取り扱いについて」を必ずお読みください。
「個人情報の取り扱いについて」に同意いただいた場合は「上記にご同意の上 確認画面へ進む」のボタンをクリックしてください。
個人情報の取り扱いについて
皆さまが送付された個人情報はアットホーム(株)のサーバを経由し、お問い合わせ先の不動産会社にメールまたはFAXにて転送されるためアットホーム(株)にも保管されます。アットホーム(株)で保管された個人情報の取り扱いについては、【こちら】をご覧ください。
また、本画面でご記入いただいた個人情報は、お問い合わせ先の不動産会社でも保管します。 お問い合わせ先の不動産会社が保管する個人情報の取り扱いについては、不動産会社に直接お問い合わせください。
国土交通大臣免許(1)第9996号 |
|---|
- 交通:
- JR山手線/渋谷駅 徒歩1分
- 東京都渋谷区渋谷1丁目13-9 渋谷たくぎんビル
- TEL:
- 0120-717-021
- FAX:
- 03-3400-9964
- 所属団体:
- (一社)不動産流通経営協会会員(一社)全国住宅産業協会会員(公社)首都圏不動産公正取引協議会加盟
取引態様:媒介  - 00781691
|
- スマートフォンで
この不動産会社を見る

|
- 提携サイト等より掲載されている物件情報につきましては、不動産会社詳細情報にリンクされていないものがあります。
- 物件に関するお問合せは、物件詳細ページの「情報提供会社」に表示されている不動産会社へ直接お願いいたします。
- 間取図は、現況を優先させていただきます。
- 映像は物件の一部を撮影したものです。物件の契約にあたっての最終判断はご自身の判断に基づいて行ってください。
- 仲介手数料について

アットホームは物件情報の適正化に努めております。
内容に誤りがある場合にはこちらへご連絡ください。