千葉県船橋市高根台1丁目(高根公団駅)の一戸建て:物件詳細
交通 所在地 |
駅徒歩 |
価格 |
間取り 建物面積 |
土地面積 私道負担面積 |
物件種目 築年月 |
|
京成松戸線/高根公団
千葉県船橋市高根台1丁目
|
4分
|
3,640万円
|
3LDK
89.01m²
|
113.33m²
なし
|
新築一戸建て
2025年11月
|
|
駐車場2台分、南向き、バリアフリー、閑静な住宅街
|
|
≪オープンハウス/モデルハウス≫【開催期間】2025年8月1日~12月28日 【時間】9:30~19:00 事前に必ずお問い合わせください
|
|
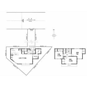
間取図
|
外観
|
その他の画像
|
| 交通 | 京成松戸線 高根公団駅 徒歩4分 |
|---|
| その他の交通 | 京成松戸線 滝不動駅 徒歩13分 京成松戸線 高根木戸駅 徒歩13分 |
| 所在地 |
千葉県船橋市高根台1丁目
|
| 物件種目 |
新築一戸建て |
| 価格 |
3,640万円 |
借地期間・地代(月額) |
- |
| 権利金 |
- |
敷金または保証金 |
- / - |
| 維持費等 |
- |
その他一時金 |
なし |
| 間取り |
3LDK(LDK17.9) |
建物面積 |
89.01m² |
| 土地権利 |
所有権 |
建物構造 |
木造 |
| 土地面積 |
113.33m²(実測) |
私道負担面積 |
なし |
| 築年月 |
2025年11月
|
都市計画 |
市街化区域 |
| 建物名 |
船橋市高根台1丁目 |
建築確認番号 |
- |
| 用途地域 |
1種中高 |
駐車場 |
有 無料 |
| 建ぺい率 |
60% |
容積率 |
200% |
| 階建 |
2階建 |
接道状況 |
北 6.0m 私道
|
| 地目 |
宅地 |
地勢 |
平坦 |
| 国土法届出 |
- |
セットバック |
- |
| アピールポイント |
<年中無休でお問い合わせ受付しております>
●――AZLinksが選ばれる理由――
千葉・四街道エリア3冠〈第1位〉を獲得!はじめての住まい探し、住宅ローンなど誠心誠意サポートさせていただきます!
「今から見学したい」「お子様連れの方」など大歓迎でお問合せお待ちしております!
●――ご案内について――
本物件以外の近隣物件や同条件物件もまとめてご案内もできます。
建築中の場合は施工例としてモデルハウスにて、建築図面、設備仕様などご説明いたします。
※他社に問い合わせした物件も当社がまとめてご案内ができます。
●――住宅ローン相談――
住宅ローンが不安でも大丈夫!頭金0円で購入諸費用、太陽光発電、住宅オプション、家具家電など一括ローン可能。住宅ローンアドバイザーがしっかりご提案させていただきます!
・個人事業主、自営業の方
・車など借入残債がある方
・どの銀行で借りるのがいい?
【全員もらえる!ご成約プレゼントキャンペーン】
当社で新築ご成約の皆様に選べる!ステキな住宅オプションをプレゼント!
(A)太陽光発電割引券 (B)選べる生活家電 (C)選べる住宅オプション |
| リフォーム履歴 |
- |
| リノベーション履歴 |
- |
| 瑕疵保証 |
- |
| 瑕疵保険 |
- |
| 評価・証明書 |
- |
| 備考 |
主要採光面:南向き
【年中無休でお問い合わせ受付OK】ご案内の際は直接、現地で待ち合わせさせていただくこともできます。また、ご来店された際に物件提案や住宅ローンのご説明や審査も当日可能です。キッズスペース、ソファ席がございますのでお子様連れでもご安心してご来店ください。
「現地案内会・個別住宅ローン相談会」を開催しております!当日予約OK!事前にご予約いただければ希望時間にて優先にご案内させていただきます。
|
| エネルギー消費性能 |
- |
| 断熱性能 |
- |
| 目安光熱費 |
- |
| バス・トイレ |
浴室乾燥機、追焚機能、シャワー付洗面化粧台、温水洗浄便座、トイレ2ヶ所 |
| キッチン |
カウンターキッチン、システムキッチン、食器洗浄乾燥機、浄水器 |
| 設備・サービス |
全居室収納、クローゼット、床下収納、モニター付インターホン、全居室フローリング、上水道、下水道、都市ガス、庭、複層ガラス |
| その他 |
- |
| 現況 |
完成済 |
引渡可能時期 |
即時 |
| 物件番号 |
1169787209 |
|
|
| 情報公開日 |
2025年9月1日 |
次回更新予定日 |
2025年12月29日 |
| ケータイ用バーコード |
- スマートフォンでこの物件を見る
- スマートフォンからもこの物件をご覧になれます。
|
※「-」と表示されている項目については、情報提供会社にご確認ください。
| 周辺施設 |
船橋市立高根台第三小学校 |
| 距離 |
610m |
写真を見る |
ここから簡単にお問い合わせをすることができます。
(SSLでの暗号化での送信を希望されるお客さまは
こちら
よりお問い合わせください)
お問い合わせを行う前に
「個人情報の取り扱いについて」を必ずお読みください。
「個人情報の取り扱いについて」に同意いただいた場合は「上記にご同意の上 確認画面へ進む」のボタンをクリックしてください。
個人情報の取り扱いについて
皆さまが送付された個人情報はアットホーム(株)のサーバを経由し、お問い合わせ先の不動産会社にメールまたはFAXにて転送されるためアットホーム(株)にも保管されます。アットホーム(株)で保管された個人情報の取り扱いについては、【こちら】をご覧ください。
また、本画面でご記入いただいた個人情報は、お問い合わせ先の不動産会社でも保管します。 お問い合わせ先の不動産会社が保管する個人情報の取り扱いについては、不動産会社に直接お問い合わせください。
千葉県知事免許(2)第17303号 |
|---|
- 交通:
- JR総武本線/四街道駅 徒歩13分
- 千葉県四街道市鹿渡933-296
- TEL:
- 043-290-9500
- FAX:
- 043-290-9510
- 所属団体:
- (公社)全日本不動産協会会員(公社)首都圏不動産公正取引協議会加盟
取引態様:媒介  - 00263992
|
- スマートフォンで
この不動産会社を見る

|
- 提携サイト等より掲載されている物件情報につきましては、不動産会社詳細情報にリンクされていないものがあります。
- 物件に関するお問合せは、物件詳細ページの「情報提供会社」に表示されている不動産会社へ直接お願いいたします。
- 間取図は、現況を優先させていただきます。
- 映像は物件の一部を撮影したものです。物件の契約にあたっての最終判断はご自身の判断に基づいて行ってください。
- 仲介手数料について

アットホームは物件情報の適正化に努めております。
内容に誤りがある場合にはこちらへご連絡ください。