福島県郡山市富田町字菱内(郡山富田駅)の一戸建て:物件詳細
交通 所在地 |
駅徒歩 |
価格 |
間取り 建物面積 |
土地面積 私道負担面積 |
物件種目 築年月 |
|
JR磐越西線/郡山富田
福島県郡山市富田町字菱内
|
34分
|
3,770万円
|
3LDK
96.87m²
|
167.91m²
-
|
新築一戸建て
2025年8月
|
|
駐車場3台分以上、2面採光、24時間換気システム、閑静な住宅街、オール電化、整形地
|
|
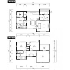
間取図
8号棟 ゆったりとしたホールは天気の悪い日や花粉の季節のお洗濯干しに使えます!
|
リビング
【堂々完成!おしゃれな室内をご内覧ください】太陽光発電システム搭載!節約上手に夢のマイホームを叶えます。(8月28日撮影写真)
|
<
その他の画像
>
|
| 交通 | JR磐越西線 郡山富田駅 徒歩34分 |
| 所在地 |
福島県郡山市富田町字菱内
|
| 物件種目 |
新築一戸建て |
| 価格 |
3,770万円 |
借地期間・地代(月額) |
- |
| 権利金 |
- |
敷金または保証金 |
- / - |
| 維持費等 |
- |
その他一時金 |
- |
| 間取り |
3LDK(LDK17.5 洋8 洋4.5・4.5) |
建物面積 |
96.87m² |
| 土地権利 |
所有権 |
建物構造 |
木造 |
| 土地面積 |
167.91m²(公簿) |
私道負担面積 |
- |
| 築年月 |
2025年8月
|
都市計画 |
市街化区域 |
| 建物名 |
富田町字菱内 8号棟 |
建築確認番号 |
R06確申建築BHC中支0652号 |
| 用途地域 |
1種低層 |
駐車場 |
有 無料 |
| 建ぺい率 |
40% |
容積率 |
60% |
| 階建 |
2階建 |
接道状況 |
北 6.0m 私道
|
| 地目 |
田 |
地勢 |
- |
| 国土法届出 |
- |
セットバック |
- |
| アピールポイント |
**物件ポイント**
●太陽光発電8.6キロワット搭載!(諸条件あり)
●おひさまエコキュート!太陽光で給湯してお得に生活!
●玄関ドアピタットキー!ハンドルにかざして楽々開錠!
●ブランド家具一式付き!住み始めの準備も楽々です!
●エアコン4台、全室照明、カーテン、網戸付き!
●駐車4台!
**周辺環境**
●大島小学校 徒歩約19分(1551m)
●郡山第六中学校 徒歩約7分(600m)
●ローソン郡山富田十文字店 徒歩約5分(462m)
●ザビックエクスプレス富田店 徒歩約13分(1076m)
―――住宅ローンに関するご相談承ります―――
*勤続年数の少ない方
*自己資金の少ない方
*他にお借入れのある方
*契約・派遣社員の方
その他、不動産購入で不安な点は弊社にご相談ください!
経験豊富なスタッフが実績と専門知識を活かし、トータルサポート致します!
お気軽にお問い合わせください♪ |
| リフォーム履歴 |
- |
| リノベーション履歴 |
- |
| 瑕疵保証 |
- |
| 瑕疵保険 |
- |
| 評価・証明書 |
- |
| 備考 |
総戸数:2戸
|
| エネルギー消費性能 |
- |
| 断熱性能 |
- |
| 目安光熱費 |
- |
| バス・トイレ |
浴室暖房、浴室乾燥機、オートバス、追焚機能、シャワー付洗面化粧台、温水洗浄便座、トイレ2ヶ所、浴室に窓あり |
| キッチン |
カウンターキッチン、オープンキッチン、システムキッチン、IHクッキングヒーター、3口以上コンロ、グリル |
| 設備・サービス |
ウォークインクローゼット、エアコン2台以上、モニター付インターホン、ダブルロックドア、省エネ給湯器、全居室フローリング、上水道、下水道、電気、側溝、エアコン、ルーフバルコニー、照明器具 |
| その他 |
- |
| 現況 |
完成済 |
引渡可能時期 |
即時 |
| 物件番号 |
1170524705 |
|
|
| 情報公開日 |
2025年5月11日 |
次回更新予定日 |
2026年3月31日 |
| ケータイ用バーコード |
- スマートフォンでこの物件を見る
- スマートフォンからもこの物件をご覧になれます。
|
※「-」と表示されている項目については、情報提供会社にご確認ください。
| 周辺施設 |
大島小学校 徒歩約19分(1551m) |
| 距離 |
1551m |
写真を見る |
| 周辺施設 |
郡山第六中学校 徒歩約7分(600m) |
| 距離 |
600m |
写真を見る |
| 周辺施設 |
ローソン郡山富田十文字店 徒歩約5分(462m) |
| 距離 |
462m |
写真を見る |
| 周辺施設 |
ザ・ビックエクスプレス富田店 徒歩約13分(1076m) |
| 距離 |
1075m |
写真を見る |
ここから簡単にお問い合わせをすることができます。
(SSLでの暗号化での送信を希望されるお客さまは
こちら
よりお問い合わせください)
お問い合わせを行う前に
「個人情報の取り扱いについて」を必ずお読みください。
「個人情報の取り扱いについて」に同意いただいた場合は「上記にご同意の上 確認画面へ進む」のボタンをクリックしてください。
個人情報の取り扱いについて
皆さまが送付された個人情報はアットホーム(株)のサーバを経由し、お問い合わせ先の不動産会社にメールまたはFAXにて転送されるためアットホーム(株)にも保管されます。アットホーム(株)で保管された個人情報の取り扱いについては、【こちら】をご覧ください。
また、本画面でご記入いただいた個人情報は、お問い合わせ先の不動産会社でも保管します。 お問い合わせ先の不動産会社が保管する個人情報の取り扱いについては、不動産会社に直接お問い合わせください。
国土交通大臣免許(14)第1961号 |
|---|
- 交通:
- JR東北本線/郡山駅 【バス】 島東 停歩1分
- 福島県郡山市島1丁目11-1
- TEL:
- 0120-703-708
- FAX:
- 024-922-3230
- 所属団体:
- (公社)福島県宅地建物取引業協会会員東北地区不動産公正取引協議会加盟
取引態様:一般媒介  - 20001992
|
- スマートフォンで
この不動産会社を見る

|
- 提携サイト等より掲載されている物件情報につきましては、不動産会社詳細情報にリンクされていないものがあります。
- 物件に関するお問合せは、物件詳細ページの「情報提供会社」に表示されている不動産会社へ直接お願いいたします。
- 間取図は、現況を優先させていただきます。
- 映像は物件の一部を撮影したものです。物件の契約にあたっての最終判断はご自身の判断に基づいて行ってください。
- 仲介手数料について

アットホームは物件情報の適正化に努めております。
内容に誤りがある場合にはこちらへご連絡ください。