奈良県宇陀郡曽爾村大字今井(名張駅)の一戸建て:物件詳細
交通 所在地 |
駅徒歩 |
価格 |
間取り 建物面積 |
土地面積 私道負担面積 |
物件種目 築年月 |
|
近鉄大阪線/名張 [バス利用可] バス 44分 今井(曽爾村) 停歩3分
奈良県宇陀郡曽爾村大字今井
|
20640m
|
500万円
|
9SDK
209.94m²
|
1,872.95m²
なし
|
中古一戸建て
1912年1月(築114年2ヶ月)
|
|
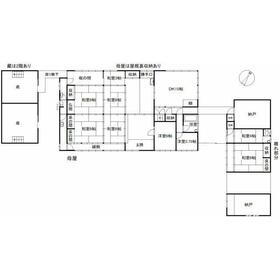
間取図
蔵や納屋もあり、収納力良し
|
外観
おおきな大和棟のおうち
|
その他の画像
|
| 交通 | 近鉄大阪線 名張駅 徒歩20640m [バス利用可] バス 44分 今井(曽爾村) 停歩3分 |
|---|
| その他の交通 | 近鉄大阪線 榛原駅 徒歩20560m [バス利用可] バス 55分 曽爾村役場 停歩3分 |
| 所在地 |
奈良県宇陀郡曽爾村大字今井
|
| 物件種目 |
中古一戸建て |
| 価格 |
500万円 |
借地期間・地代(月額) |
- |
| 権利金 |
- |
敷金または保証金 |
- / - |
| 維持費等 |
- |
その他一時金 |
なし |
| 間取り |
9SDK |
建物面積 |
209.94m² |
| 土地権利 |
所有権 |
建物構造 |
木造 |
| 土地面積 |
1,872.95m²(公簿) |
私道負担面積 |
なし |
| 築年月 |
1912年1月(築114年2ヶ月)
|
都市計画 |
区域外 |
| 建物名 |
曽爾村今井 |
建築確認番号 |
- |
| 用途地域 |
- |
駐車場 |
有 無料 |
| 建ぺい率 |
- |
容積率 |
- |
| 階建 |
平屋建 |
接道状況 |
北 公道
|
| 地目 |
宅地 |
地勢 |
平坦 |
| 国土法届出 |
- |
セットバック |
- |
| リフォーム履歴 |
- |
| リノベーション履歴 |
- |
| 瑕疵保証 |
- |
| 瑕疵保険 |
- |
| 評価・証明書 |
- |
| 備考 |
大正時代から続く古民家物件。歴史を感じる立派なつくりです。
・曽爾村空き家バンク物件の為、定住が条件となります。 ・居住空間は綺麗に使用されております。(但し、設備など修繕箇所は多々あり) ・風呂、トイレは山水が利用されておりますが、現在枯れることが多いとのこと。(簡易水道への接続工事をおすすめします。)
|
| エネルギー消費性能 |
- |
| 断熱性能 |
- |
| 目安光熱費 |
- |
| バス・トイレ |
- |
| キッチン |
- |
| 設備・サービス |
浄化槽、上水道、プロパンガス、電気、庭 |
| その他 |
- |
| 現況 |
空家 |
引渡可能時期 |
相談 |
| 物件番号 |
1171126409 |
|
|
| 情報公開日 |
2025年10月11日 |
次回更新予定日 |
2026年2月9日 |
| ケータイ用バーコード |
- スマートフォンでこの物件を見る
- スマートフォンからもこの物件をご覧になれます。
|
※「-」と表示されている項目については、情報提供会社にご確認ください。
ここから簡単にお問い合わせをすることができます。
(SSLでの暗号化での送信を希望されるお客さまは
こちら
よりお問い合わせください)
お問い合わせを行う前に
「個人情報の取り扱いについて」を必ずお読みください。
「個人情報の取り扱いについて」に同意いただいた場合は「上記にご同意の上 確認画面へ進む」のボタンをクリックしてください。
個人情報の取り扱いについて
皆さまが送付された個人情報はアットホーム(株)のサーバを経由し、お問い合わせ先の不動産会社にメールまたはFAXにて転送されるためアットホーム(株)にも保管されます。アットホーム(株)で保管された個人情報の取り扱いについては、【こちら】をご覧ください。
また、本画面でご記入いただいた個人情報は、お問い合わせ先の不動産会社でも保管します。 お問い合わせ先の不動産会社が保管する個人情報の取り扱いについては、不動産会社に直接お問い合わせください。
奈良県知事免許(7)第2919号 |
|---|
- 交通:
- 近鉄大阪線/榛原駅 徒歩1分
- 奈良県宇陀市榛原萩原2844-17
- TEL:
- 0745-82-6677
- FAX:
- 0745-82-6687
- 所属団体:
- (公社)奈良県宅地建物取引業協会会員(公社)近畿地区不動産公正取引協議会加盟
取引態様:一般媒介  - 50017711
|
- スマートフォンで
この不動産会社を見る

|
- 提携サイト等より掲載されている物件情報につきましては、不動産会社詳細情報にリンクされていないものがあります。
- 物件に関するお問合せは、物件詳細ページの「情報提供会社」に表示されている不動産会社へ直接お願いいたします。
- 間取図は、現況を優先させていただきます。
- 映像は物件の一部を撮影したものです。物件の契約にあたっての最終判断はご自身の判断に基づいて行ってください。
- 仲介手数料について

アットホームは物件情報の適正化に努めております。
内容に誤りがある場合にはこちらへご連絡ください。