埼玉県草加市瀬崎7丁目(谷塚駅)の一戸建て:物件詳細
交通 所在地 |
駅徒歩 |
価格 |
間取り 建物面積 |
土地面積 私道負担面積 |
物件種目 築年月 |
|
東武伊勢崎線/谷塚
埼玉県草加市瀬崎7丁目
|
15分
|
4,380万円
|
4LDK
105.95m²
|
100.01m²
なし
|
中古一戸建て
2023年6月(築2年10ヶ月)
|
|
デザイナーズ、駐車場2台分、外壁サイディング、バス1坪以上、24時間換気システム、閑静な住宅街、整形地
|
|
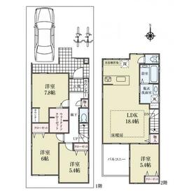
間取図
間取り図
|
外観
空室物件につきいつでもご見学できます♪
|
<
その他の画像
>
|
| 交通 | 東武伊勢崎線 谷塚駅 徒歩15分 |
|---|
| その他の交通 | つくばエクスプレス 六町駅 【バス】 13分 花畑四丁目 停歩7分 東京メトロ千代田線 綾瀬駅 【バス】 32分 花畑五丁目 停歩7分 |
| 所在地 |
埼玉県草加市瀬崎7丁目
|
| 物件種目 |
中古一戸建て |
| 価格 |
4,380万円 |
借地期間・地代(月額) |
- |
| 権利金 |
- |
敷金または保証金 |
- / - |
| 維持費等 |
- |
その他一時金 |
- |
| 間取り |
4LDK |
建物面積 |
105.95m² |
| 土地権利 |
所有権 |
建物構造 |
木造 |
| 土地面積 |
100.01m²(公簿) |
私道負担面積 |
なし |
| 築年月 |
2023年6月(築2年10ヶ月)
|
都市計画 |
市街化区域 |
| 建物名 |
草加市瀬崎7丁目 中古一戸建て |
建築確認番号 |
- |
| 用途地域 |
1種住居 |
駐車場 |
有 |
| 建ぺい率 |
60% |
容積率 |
200% |
| 階建 |
2階建 |
接道状況 |
北 8.7m 公道
|
| 地目 |
宅地 |
地勢 |
- |
| 国土法届出 |
- |
セットバック |
済 |
| アピールポイント |
~ハウスプラザのおすすめポイント~
◇敷地面積30坪の整形地!お車2台駐車可能
◇2階水回り集約タイプの間取り
◇勾配天井の開放感のあるLDK
◇南側にワイドバルコニー
◇各部屋×リビング×廊下に収納あり
◇コンビニ・スーパー徒歩圏の周辺環境良好
◇前面道路が広いので駐車もラクラクです♪
物件のご見学予約・資料請求はお気軽にお問合せ下さい! |
| リフォーム履歴 |
- |
| リノベーション履歴 |
- |
| 瑕疵保証 |
- |
| 瑕疵保険 |
- |
| 評価・証明書 |
- |
| 備考 |
総戸数:1戸
法第22条区域、最低敷地面積100平米、【ごみ置場持分】2.53平米×1/7ずつ、【町会費】200円/月、【現況】空家
|
| エネルギー消費性能 |
- |
| 断熱性能 |
- |
| 目安光熱費 |
- |
| バス・トイレ |
浴室暖房、浴室乾燥機、追焚機能、シャワー付洗面化粧台、温水洗浄便座、トイレ2ヶ所、浴室に窓あり |
| キッチン |
システムキッチン、食器洗浄乾燥機、浄水器 |
| 設備・サービス |
ウォークインクローゼット、太陽光発電システム、EV車充電設備、エアコン2台以上、床暖房、床下収納、モニター付インターホン、ディンプルキー、シャッター雨戸、省エネ給湯器、全居室フローリング、上水道、下水道、都市ガス、可動間仕切り、エアコン、ワイドバルコニー、ルーフバルコニー、人感センサー付照明、ダウンライト、照明器具、火災警報器(報知機)、蓄電池付き、複層ガラス |
| その他 |
- |
| 現況 |
所有者居住中 |
引渡可能時期 |
相談 |
| 物件番号 |
1171778605 |
|
|
| 情報公開日 |
2025年6月19日 |
次回更新予定日 |
2026年3月22日 |
| ケータイ用バーコード |
- スマートフォンでこの物件を見る
- スマートフォンからもこの物件をご覧になれます。
|
※「-」と表示されている項目については、情報提供会社にご確認ください。
| 周辺施設 |
草加市立瀬崎小学校 |
| 距離 |
915m |
写真を見る |
| 周辺施設 |
草加市立瀬崎中学校 |
| 距離 |
918m |
写真を見る |
| 周辺施設 |
せざき保育園 |
| 距離 |
656m |
写真を見る |
| 周辺施設 |
ローソン草加瀬崎四丁目店 |
| 距離 |
218m |
写真を見る |
| 周辺施設 |
ベルクスモール花畑中央店 |
| 距離 |
432m |
写真を見る |
| 周辺施設 |
桑袋ビオトープ公園 |
| 距離 |
1012m |
写真を見る |
ここから簡単にお問い合わせをすることができます。
(SSLでの暗号化での送信を希望されるお客さまは
こちら
よりお問い合わせください)
お問い合わせを行う前に
「個人情報の取り扱いについて」を必ずお読みください。
「個人情報の取り扱いについて」に同意いただいた場合は「上記にご同意の上 確認画面へ進む」のボタンをクリックしてください。
個人情報の取り扱いについて
皆さまが送付された個人情報はアットホーム(株)のサーバを経由し、お問い合わせ先の不動産会社にメールまたはFAXにて転送されるためアットホーム(株)にも保管されます。アットホーム(株)で保管された個人情報の取り扱いについては、【こちら】をご覧ください。
また、本画面でご記入いただいた個人情報は、お問い合わせ先の不動産会社でも保管します。 お問い合わせ先の不動産会社が保管する個人情報の取り扱いについては、不動産会社に直接お問い合わせください。
国土交通大臣免許(6)第5542号 |
|---|
- 交通:
- 京成本線/京成八幡駅 徒歩7分
- 千葉県市川市東菅野1丁目5-7 エステートピア本八幡1F
- TEL:
- 0120-303-965
- FAX:
- 047-711-0972
- 所属団体:
- (公社)東京都宅地建物取引業協会会員(公社)首都圏不動産公正取引協議会加盟
取引態様:一般媒介  - 00271220
|
- スマートフォンで
この不動産会社を見る

|
- 提携サイト等より掲載されている物件情報につきましては、不動産会社詳細情報にリンクされていないものがあります。
- 物件に関するお問合せは、物件詳細ページの「情報提供会社」に表示されている不動産会社へ直接お願いいたします。
- 間取図は、現況を優先させていただきます。
- 映像は物件の一部を撮影したものです。物件の契約にあたっての最終判断はご自身の判断に基づいて行ってください。
- 仲介手数料について

アットホームは物件情報の適正化に努めております。
内容に誤りがある場合にはこちらへご連絡ください。