東京都町田市常盤町(淵野辺駅)の一戸建て:物件詳細
交通 所在地 |
駅徒歩 |
価格 |
間取り 建物面積 |
土地面積 私道負担面積 |
物件種目 築年月 |
|
JR横浜線/淵野辺 【バス】10分 常盤 停歩4分
東京都町田市常盤町
|
-
|
2,980万円
|
4LDK
123.37m²
|
163.00m²
なし
|
中古一戸建て
2004年11月(築21年4ヶ月)
|
|
駐車場2台分、閑静な住宅街
|
|
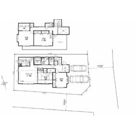
間取図
間取り図
|
外観
現地外観
|
<
その他の画像
>
|
| 交通 | JR横浜線 淵野辺駅 【バス】 10分 常盤 停歩4分 |
|---|
| その他の交通 | JR横浜線 矢部駅 徒歩26分 JR横浜線 相模原駅 徒歩41分 |
| 所在地 |
東京都町田市常盤町
|
| 物件種目 |
中古一戸建て |
| 価格 |
2,980万円 |
借地期間・地代(月額) |
- |
| 権利金 |
- |
敷金または保証金 |
- / - |
| 維持費等 |
- |
その他一時金 |
なし |
| 間取り |
4LDK |
建物面積 |
123.37m² |
| 土地権利 |
所有権 |
建物構造 |
木造 |
| 土地面積 |
163.00m²(公簿) |
私道負担面積 |
なし |
| 築年月 |
2004年11月(築21年4ヶ月)
|
都市計画 |
市街化区域 |
| 建物名 |
常盤町 一戸建て |
建築確認番号 |
- |
| 用途地域 |
1種低層 |
駐車場 |
有 無料 |
| 建ぺい率 |
40% |
容積率 |
80% |
| 階建 |
2階建 |
接道状況 |
東 6.0m 公道
・ 南 4.0m 公道
・ 二方道路
|
| 地目 |
宅地 |
地勢 |
- |
| 国土法届出 |
- |
セットバック |
- |
| アピールポイント |
前面道路6m以上は確保しているので車の出し入れもラクラクです。バルコニーが付いています。お勧めの好条件の購入価格2,980万円の物件です。戸建て物件をお探しの方は、便利な価格からなる中古物件はいかがでしょうか。システムキッチン付きの物件でカラーリングも統一できるため見た目に一体感が生まれ、美しいです。4LDKの物件で、開放感のある生活を送る事が出来ます。2台駐車可能です。 |
| リフォーム履歴 |
- |
| リノベーション履歴 |
- |
| 瑕疵保証 |
- |
| 瑕疵保険 |
- |
| 評価・証明書 |
- |
| 備考 |
主要採光面:南西向き
総戸数:1戸
■角地のため、陽当りが良く開放感があります♪ ■並列2台駐車可能なので、お車やバイクがお好きな方にもおすすめです♪ ■ゆとりのある4LDKの間取りです♪
◇特徴 角地のため、開放感があり日当たり良好です♪ 室内は全居室6帖以上のゆとりある間取りです♪ 2階には約8.6帖、8帖の洋室がございます。 広々としたバルコニーに面しており、開放的な空間です♪ 収納が多く、お荷物の多い方も安心です♪ 約3帖のクローゼットは、衣類や季節ものの収納にも役立ちます♪ お車は並列2台駐車可能です。バイクやお車がお好きな方、通勤や通学でご利用される方にもおすすめです♪ ◇その他 周辺は閑静な住宅街なので、お静かな生活をお送りいただけます♪ 人気の淵野辺駅エリアは、お買い物施設なども周辺に多数あり、生活環境良好です♪
|
| エネルギー消費性能 |
- |
| 断熱性能 |
- |
| 目安光熱費 |
- |
| バス・トイレ |
- |
| キッチン |
カウンターキッチン、システムキッチン |
| 設備・サービス |
全居室収納、クローゼット、グルニエ、上水道、下水道、プロパンガス、ワイドバルコニー |
| その他 |
- |
| 現況 |
空家 |
引渡可能時期 |
相談 |
| 物件番号 |
1172096809 |
|
|
| 情報公開日 |
2025年9月16日 |
次回更新予定日 |
2026年2月20日 |
| ケータイ用バーコード |
- スマートフォンでこの物件を見る
- スマートフォンからもこの物件をご覧になれます。
|
※「-」と表示されている項目については、情報提供会社にご確認ください。
| 周辺施設 |
桜美林幼稚園 |
| 距離 |
924m |
写真を見る |
| 周辺施設 |
町田市立小山田南小学校 |
| 距離 |
888m |
写真を見る |
| 周辺施設 |
相模原市立大野北中学校 |
| 距離 |
1922m |
写真を見る |
| 周辺施設 |
三和 小山田店 |
| 距離 |
1065m |
写真を見る |
| 周辺施設 |
アメリア町田根岸ショッピングセンター |
| 距離 |
1958m |
写真を見る |
| 周辺施設 |
セブンイレブン 町田常盤店 |
| 距離 |
436m |
写真を見る |
| 周辺施設 |
ローソン 町田常盤町店 |
| 距離 |
430m |
写真を見る |
ここから簡単にお問い合わせをすることができます。
(SSLでの暗号化での送信を希望されるお客さまは
こちら
よりお問い合わせください)
お問い合わせを行う前に
「個人情報の取り扱いについて」を必ずお読みください。
「個人情報の取り扱いについて」に同意いただいた場合は「上記にご同意の上 確認画面へ進む」のボタンをクリックしてください。
個人情報の取り扱いについて
皆さまが送付された個人情報はアットホーム(株)のサーバを経由し、お問い合わせ先の不動産会社にメールまたはFAXにて転送されるためアットホーム(株)にも保管されます。アットホーム(株)で保管された個人情報の取り扱いについては、【こちら】をご覧ください。
また、本画面でご記入いただいた個人情報は、お問い合わせ先の不動産会社でも保管します。 お問い合わせ先の不動産会社が保管する個人情報の取り扱いについては、不動産会社に直接お問い合わせください。
東京都知事免許(2)第104540号 |
|---|
- 交通:
- 小田急小田原線/町田駅 徒歩15分 【バス】1分 森野3丁目 停歩4分
- 東京都町田市森野3丁目18番17号 WING森野201
- TEL:
- 042-785-4930
- FAX:
- 042-785-4940
- 所属団体:
- (公社)東京都宅地建物取引業協会会員(公社)首都圏不動産公正取引協議会加盟
取引態様:媒介  - 00268032
|
- スマートフォンで
この不動産会社を見る

|
- 提携サイト等より掲載されている物件情報につきましては、不動産会社詳細情報にリンクされていないものがあります。
- 物件に関するお問合せは、物件詳細ページの「情報提供会社」に表示されている不動産会社へ直接お願いいたします。
- 間取図は、現況を優先させていただきます。
- 映像は物件の一部を撮影したものです。物件の契約にあたっての最終判断はご自身の判断に基づいて行ってください。
- 仲介手数料について

アットホームは物件情報の適正化に努めております。
内容に誤りがある場合にはこちらへご連絡ください。