神奈川県川崎市麻生区細山4丁目(読売ランド前駅)の一戸建て:物件詳細
交通 所在地 |
駅徒歩 |
価格 |
間取り 建物面積 |
土地面積 私道負担面積 |
物件種目 築年月 |
|
小田急小田原線/読売ランド前
神奈川県川崎市麻生区細山4丁目
|
22分
|
4,880万円
|
4LDK
110.75m²
|
148.35m²
なし
|
新築一戸建て
2026年5月
|
|
駐車場2台分、外壁サイディング、バス1坪以上、24時間換気システム、閑静な住宅街、フラット35適合証明書あり、フラット35S適合証明書あり
|
|
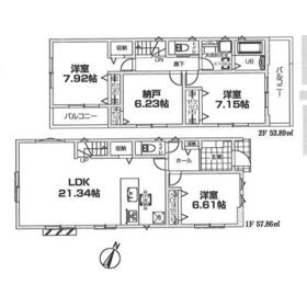
間取図
|
|
<
その他の画像
>
|
| 交通 | 小田急小田原線 読売ランド前駅 徒歩22分 |
|---|
| その他の交通 | 小田急小田原線 新百合ヶ丘駅 【バス】 17分 細山会館前 停歩6分 京王相模原線 京王よみうりランド駅 徒歩25分 |
| 所在地 |
神奈川県川崎市麻生区細山4丁目
|
| 物件種目 |
新築一戸建て |
| 価格 |
4,880万円 |
借地期間・地代(月額) |
- |
| 権利金 |
- |
敷金または保証金 |
- / - |
| 維持費等 |
- |
その他一時金 |
- |
| 間取り |
4LDK(洋6.61 洋7.92 洋7.15 洋6.23) |
建物面積 |
110.75m² |
| 土地権利 |
所有権 |
建物構造 |
木造 |
| 土地面積 |
148.35m²(実測) |
私道負担面積 |
なし |
| 築年月 |
2026年5月
|
都市計画 |
市街化区域 |
| 建物名 |
「読売ランド前」駅 歩22分 川崎市麻生区細山4丁目 |
建築確認番号 |
第KBI-TKN25-10-0169号 |
| 用途地域 |
1種低層 |
駐車場 |
有 |
| 建ぺい率 |
50% |
容積率 |
100% |
| 階建 |
2階建 |
接道状況 |
北東 4.0m 公道
|
| 地目 |
宅地 |
地勢 |
高台 |
| 国土法届出 |
- |
セットバック |
- |
| アピールポイント |
2号棟
◇全室南東向きに配置した明るい間取り♪
◇カースペース2台駐車可(車種による)♪
◇LDK18.34帖以上でゆったりご団らんいただけます♪
◇24時間換気システムでいつでも換気ができます♪
◇会話が弾む対面キッチンです♪
◇ご家族が顔を合わせやすいリビングイン階段♪
◇綺麗が長く続く外壁サイディングです♪ |
| リフォーム履歴 |
- |
| リノベーション履歴 |
- |
| 瑕疵保証 |
- |
| 瑕疵保険 |
- |
| 評価・証明書 |
■フラット35適合証明書 フラット35適合証明書あり ■フラット35S適合証明書 フラット35S適合証明書あり |
| 備考 |
総戸数:2戸
法令等制限:宅地造成工事規制区域 敷地面積最低限度有
日影制限有 壁面後退有 高さ限度有 敷地内段差有 景観法 高度地区
kids roomみらいっ子まで約760m
|
| エネルギー消費性能 |
- |
| 断熱性能 |
- |
| 目安光熱費 |
- |
| バス・トイレ |
浴室乾燥機、オートバス、温水洗浄便座、トイレ2ヶ所 |
| キッチン |
システムキッチン、浄水器 |
| 設備・サービス |
全居室収納、床下収納、モニター付インターホン、全居室フローリング、上水道、下水道、都市ガス、火災警報器(報知機) |
| その他 |
- |
| 現況 |
建築中 |
引渡可能時期 |
相談 |
| 物件番号 |
1172352605 |
|
|
| 情報公開日 |
2025年7月7日 |
次回更新予定日 |
2026年5月11日 |
| ケータイ用バーコード |
- スマートフォンでこの物件を見る
- スマートフォンからもこの物件をご覧になれます。
|
※「-」と表示されている項目については、情報提供会社にご確認ください。
| 周辺施設 |
読売ランド前駅 |
| 距離 |
1692m |
写真を見る |
| 周辺施設 |
新百合ヶ丘駅 |
| 距離 |
2535m |
写真を見る |
| 周辺施設 |
京王よみうりランド駅 |
| 距離 |
1948m |
写真を見る |
| 周辺施設 |
川崎市立西生田小学校 |
| 距離 |
860m |
写真を見る |
| 周辺施設 |
川崎市立西生田中学校 |
| 距離 |
1014m |
写真を見る |
| 周辺施設 |
こうりんじ幼稚園 |
| 距離 |
689m |
写真を見る |
| 周辺施設 |
ローソン 麻生細山店 |
| 距離 |
681m |
写真を見る |
| 周辺施設 |
Odakyu OX 読売ランド店 |
| 距離 |
1778m |
写真を見る |
ここから簡単にお問い合わせをすることができます。
(SSLでの暗号化での送信を希望されるお客さまは
こちら
よりお問い合わせください)
お問い合わせを行う前に
「個人情報の取り扱いについて」を必ずお読みください。
「個人情報の取り扱いについて」に同意いただいた場合は「上記にご同意の上 確認画面へ進む」のボタンをクリックしてください。
個人情報の取り扱いについて
皆さまが送付された個人情報はアットホーム(株)のサーバを経由し、お問い合わせ先の不動産会社にメールまたはFAXにて転送されるためアットホーム(株)にも保管されます。アットホーム(株)で保管された個人情報の取り扱いについては、【こちら】をご覧ください。
また、本画面でご記入いただいた個人情報は、お問い合わせ先の不動産会社でも保管します。 お問い合わせ先の不動産会社が保管する個人情報の取り扱いについては、不動産会社に直接お問い合わせください。
国土交通大臣免許(9)第3744号 |
|---|
- 交通:
- 小田急小田原線/町田駅 徒歩2分
- 東京都町田市原町田6丁目3-20 TK町田ビル
- TEL:
- 042-723-7411
- FAX:
- 042-723-9155
- 所属団体:
- (公社)東京都宅地建物取引業協会会員(公社)首都圏不動産公正取引協議会加盟
取引態様:媒介  - 00781445
|
- スマートフォンで
この不動産会社を見る

|
- 提携サイト等より掲載されている物件情報につきましては、不動産会社詳細情報にリンクされていないものがあります。
- 物件に関するお問合せは、物件詳細ページの「情報提供会社」に表示されている不動産会社へ直接お願いいたします。
- 間取図は、現況を優先させていただきます。
- 映像は物件の一部を撮影したものです。物件の契約にあたっての最終判断はご自身の判断に基づいて行ってください。
- 仲介手数料について

アットホームは物件情報の適正化に努めております。
内容に誤りがある場合にはこちらへご連絡ください。