東京都調布市飛田給3丁目(飛田給駅)の一戸建て:物件詳細
交通 所在地 |
駅徒歩 |
価格 |
間取り 建物面積 |
土地面積 私道負担面積 |
物件種目 築年月 |
|
京王線/飛田給
東京都調布市飛田給3丁目
|
17分
|
4,480万円
|
3LDK
87.56m²
|
123.77m²
なし
|
中古一戸建て
2004年7月(築21年9ヶ月)
|
|
駐車場2台分、南向き、バス1坪以上、2面採光、閑静な住宅街、前面棟無
|
|
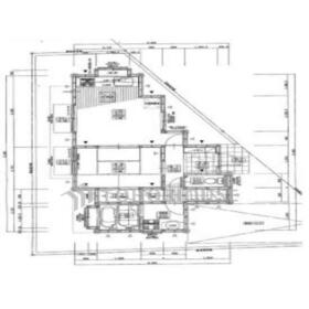
間取図
【間取り図】採光と風 家事導線も比較的良好で、風通しの良さで過ごしやすいです。
|
リビング
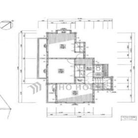
【間取り図】
|
<
その他の画像
>
|
| 交通 | 京王線 飛田給駅 徒歩17分 |
|---|
| その他の交通 | 京王線 西調布駅 徒歩17分 京王線 武蔵野台駅 徒歩28分 |
| 所在地 |
東京都調布市飛田給3丁目
|
| 物件種目 |
中古一戸建て |
| 価格 |
4,480万円 |
借地期間・地代(月額) |
- |
| 権利金 |
- |
敷金または保証金 |
- / - |
| 維持費等 |
- |
その他一時金 |
- |
| 間取り |
3LDK |
建物面積 |
87.56m² |
| 土地権利 |
所有権 |
建物構造 |
木造 |
| 土地面積 |
123.77m²(実測) |
私道負担面積 |
なし |
| 築年月 |
2004年7月(築21年9ヶ月)
|
都市計画 |
市街化区域 |
| 建物名 |
調布市飛田給3丁目 |
建築確認番号 |
- |
| 用途地域 |
1種低層 |
駐車場 |
有 無料 |
| 建ぺい率 |
40% |
容積率 |
80% |
| 階建 |
2階建 |
接道状況 |
北 5.0m 公道
|
| 地目 |
宅地 |
地勢 |
平坦 |
| 国土法届出 |
- |
セットバック |
- |
| アピールポイント |
現地案内会(事前に必ずお問い合わせください)
日程/公開中
時間/9:00~21:00
■日時
毎日、ご見学・ご相談が可能です。
9:00~21:00まで
■ご案内方法
ご自宅へのお迎え・現地待ち合わせ・最寄り駅でお待ち合わせ、弊社へのご来社等ご相談下さいませ。
お探しの条件を事前に承ることが出来れば、ご希望に合わせた物件等もご提案可能でございます。
■キッズスペースもご用意しております。
弊社にはお子様が退屈しないよう、キッズスペースも充実させております。
是非ご家族皆様でご来社頂ければ幸いです。
■お車の無料提携駐車場がございます。
詳しくは営業スタッフよりお伝えさせて頂きます。
■住宅ローンもお任せ下さい。
グループ創業約40年で培った信頼と実績による手厚いローンの斡旋が可能でございます。
お客様にあった最適なプランをご提案させて頂きます。
まずは、お気軽にご連絡頂ければ幸いです。
0120-104-793 |
| リフォーム履歴 |
- |
| リノベーション履歴 |
- |
| 瑕疵保証 |
- |
| 瑕疵保険 |
- |
| 評価・証明書 |
- |
| 備考 |
主要採光面:南向き
総戸数:1戸
法令等制限:全面道路は法43条2項第2号但し書き道路。
≪飛田給≫飛田給11分×土地123平米のゆとりある4LDK
|
| エネルギー消費性能 |
- |
| 断熱性能 |
- |
| 目安光熱費 |
- |
| バス・トイレ |
シャワー付洗面化粧台、トイレ2ヶ所、浴室に窓あり |
| キッチン |
システムキッチン、食器洗浄乾燥機、IHクッキングヒーター、3口以上コンロ |
| 設備・サービス |
全居室収納、クローゼット、モニター付インターホン、全居室フローリング、上水道、下水道、都市ガス、照明器具 |
| その他 |
- |
| 現況 |
空家 |
引渡可能時期 |
即時 |
| 物件番号 |
1176365215 |
|
|
| 情報公開日 |
2026年2月19日 |
次回更新予定日 |
2026年4月2日 |
| ケータイ用バーコード |
- スマートフォンでこの物件を見る
- スマートフォンからもこの物件をご覧になれます。
|
※「-」と表示されている項目については、情報提供会社にご確認ください。
| 周辺施設 |
サンドラッグ下石原店 |
| 距離 |
842m |
写真を見る |
| 周辺施設 |
キッチンコート |
| 距離 |
934m |
写真を見る |
| 周辺施設 |
100円ショップseria |
| 距離 |
934m |
写真を見る |
| 周辺施設 |
オザム調布多摩川店 |
| 距離 |
1015m |
写真を見る |
ここから簡単にお問い合わせをすることができます。
(SSLでの暗号化での送信を希望されるお客さまは
こちら
よりお問い合わせください)
お問い合わせを行う前に
「個人情報の取り扱いについて」を必ずお読みください。
「個人情報の取り扱いについて」に同意いただいた場合は「上記にご同意の上 確認画面へ進む」のボタンをクリックしてください。
個人情報の取り扱いについて
皆さまが送付された個人情報はアットホーム(株)のサーバを経由し、お問い合わせ先の不動産会社にメールまたはFAXにて転送されるためアットホーム(株)にも保管されます。アットホーム(株)で保管された個人情報の取り扱いについては、【こちら】をご覧ください。
また、本画面でご記入いただいた個人情報は、お問い合わせ先の不動産会社でも保管します。 お問い合わせ先の不動産会社が保管する個人情報の取り扱いについては、不動産会社に直接お問い合わせください。
東京都知事免許(2)第103929号 |
|---|
- 交通:
- JR中央線/阿佐ケ谷駅 徒歩2分
- 東京都杉並区阿佐谷南1丁目47-24 KDXレジデンス1F
- TEL:
- 0120-104-760
- FAX:
- 03-4332-7894
- 所属団体:
- (公社)東京都宅地建物取引業協会会員(公社)首都圏不動産公正取引協議会加盟
取引態様:媒介  - 00267291
|
- スマートフォンで
この不動産会社を見る

|
- 提携サイト等より掲載されている物件情報につきましては、不動産会社詳細情報にリンクされていないものがあります。
- 物件に関するお問合せは、物件詳細ページの「情報提供会社」に表示されている不動産会社へ直接お願いいたします。
- 間取図は、現況を優先させていただきます。
- 映像は物件の一部を撮影したものです。物件の契約にあたっての最終判断はご自身の判断に基づいて行ってください。
- 仲介手数料について

アットホームは物件情報の適正化に努めております。
内容に誤りがある場合にはこちらへご連絡ください。