東京都西東京市保谷町2丁目(西武柳沢駅)の一戸建て:物件詳細
交通 所在地 |
駅徒歩 |
価格 |
間取り 建物面積 |
土地面積 私道負担面積 |
物件種目 築年月 |
|
西武新宿線/西武柳沢
東京都西東京市保谷町2丁目
|
5分
|
5,280万円
|
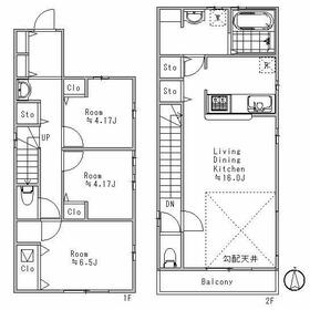
3LDK
85.05m²
|
80.79m²
-
|
新築一戸建て
2025年9月
|
|
南向き、バス1坪以上、2面採光、24時間換気システム、閑静な住宅街、整形地
|
|
間取図
|
外観
前面道路は車通りが少なく排気ガスや騒音を気にせずゆったりと暮らせます。お子様の通学も安心して送り出…
|
<
その他の画像
>
|
| 交通 | 西武新宿線 西武柳沢駅 徒歩5分 |
|---|
| その他の交通 | 西武新宿線 東伏見駅 徒歩15分 西武新宿線 田無駅 徒歩22分 |
| 所在地 |
東京都西東京市保谷町2丁目
|
| 物件種目 |
新築一戸建て |
| 価格 |
5,280万円 |
借地期間・地代(月額) |
- |
| 権利金 |
- |
敷金または保証金 |
- / - |
| 維持費等 |
- |
その他一時金 |
なし |
| 間取り |
3LDK |
建物面積 |
85.05m² |
| 土地権利 |
所有権 |
建物構造 |
木造 |
| 土地面積 |
80.79m² |
私道負担面積 |
- |
| 築年月 |
2025年9月
|
都市計画 |
市街化区域 |
| 建物名 |
保谷町2丁目新築1棟 |
建築確認番号 |
第24UDI1W建10915号 |
| 用途地域 |
1種低層 |
駐車場 |
- |
| 建ぺい率 |
50% |
容積率 |
100% |
| 階建 |
2階建 |
接道状況 |
北 5.7m 公道
|
| 地目 |
宅地 |
地勢 |
- |
| 国土法届出 |
- |
セットバック |
- |
| リフォーム履歴 |
- |
| リノベーション履歴 |
- |
| 瑕疵保証 |
- |
| 瑕疵保険 |
- |
| 評価・証明書 |
- |
| 備考 |
主要採光面:南向き
|
| エネルギー消費性能 |
- |
| 断熱性能 |
- |
| 目安光熱費 |
- |
| バス・トイレ |
浴室乾燥機、追焚機能、シャワー付洗面化粧台、温水洗浄便座、トイレ2ヶ所、浴室に窓あり |
| キッチン |
カウンターキッチン、システムキッチン、食器洗浄乾燥機、3口以上コンロ、2口コンロ、グリル |
| 設備・サービス |
全居室収納、太陽光発電システム、床下収納、モニター付インターホン、下水道、都市ガス、電気、ワイドバルコニー、複層ガラス |
| その他 |
- |
| 現況 |
空家 |
引渡可能時期 |
相談 |
| 物件番号 |
1187907012 |
|
|
| 情報公開日 |
2025年9月21日 |
次回更新予定日 |
2025年11月5日 |
| ケータイ用バーコード |
- スマートフォンでこの物件を見る
- スマートフォンからもこの物件をご覧になれます。
|
※「-」と表示されている項目については、情報提供会社にご確認ください。
| 周辺施設 |
西武柳沢駅(西武 新宿線) |
| 距離 |
490m |
写真を見る |
| 周辺施設 |
いなげや西東京富士町店 |
| 距離 |
220m |
写真を見る |
| 周辺施設 |
ファミリーマート柳沢南口店 |
| 距離 |
490m |
写真を見る |
| 周辺施設 |
セイジョー柳沢店 |
| 距離 |
570m |
写真を見る |
| 周辺施設 |
西東京市立保谷中学校 |
| 距離 |
680m |
写真を見る |
| 周辺施設 |
西東京市立本町小学校 |
| 距離 |
400m |
写真を見る |
| 周辺施設 |
西東京市役所 |
| 距離 |
1960m |
写真を見る |
| 周辺施設 |
東京都立東伏見公園 |
| 距離 |
420m |
写真を見る |
ここから簡単にお問い合わせをすることができます。
(SSLでの暗号化での送信を希望されるお客さまは
こちら
よりお問い合わせください)
お問い合わせを行う前に
「個人情報の取り扱いについて」を必ずお読みください。
「個人情報の取り扱いについて」に同意いただいた場合は「上記にご同意の上 確認画面へ進む」のボタンをクリックしてください。
個人情報の取り扱いについて
皆さまが送付された個人情報はアットホーム(株)のサーバを経由し、お問い合わせ先の不動産会社にメールまたはFAXにて転送されるためアットホーム(株)にも保管されます。アットホーム(株)で保管された個人情報の取り扱いについては、【こちら】をご覧ください。
また、本画面でご記入いただいた個人情報は、お問い合わせ先の不動産会社でも保管します。 お問い合わせ先の不動産会社が保管する個人情報の取り扱いについては、不動産会社に直接お問い合わせください。
国土交通大臣免許(6)第005866号 |
|---|
- 交通:
- JR中央線/武蔵境駅 徒歩1分
- 東京都武蔵野市境南町2丁目3-2
- TEL:
- 0422-39-3966
- FAX:
- 0422-39-3733
- 所属団体:
- (公社)全日本不動産協会会員(公社)首都圏不動産公正取引協議会加盟
取引態様:媒介  - 00986150
|
- スマートフォンで
この不動産会社を見る

|
- 提携サイト等より掲載されている物件情報につきましては、不動産会社詳細情報にリンクされていないものがあります。
- 物件に関するお問合せは、物件詳細ページの「情報提供会社」に表示されている不動産会社へ直接お願いいたします。
- 間取図は、現況を優先させていただきます。
- 映像は物件の一部を撮影したものです。物件の契約にあたっての最終判断はご自身の判断に基づいて行ってください。
- 仲介手数料について

アットホームは物件情報の適正化に努めております。
内容に誤りがある場合にはこちらへご連絡ください。