埼玉県さいたま市西区三橋6丁目(西大宮駅)の一戸建て:物件詳細
交通 所在地 |
駅徒歩 |
価格 |
間取り 建物面積 |
土地面積 私道負担面積 |
物件種目 築年月 |
|
JR川越線/西大宮
埼玉県さいたま市西区三橋6丁目
|
19分
|
3,780万円
|
4LDK
104.54m²
|
114.59m²
なし
|
中古一戸建て
2023年6月(築2年5ヶ月)
|
|
駐車場2台分、全室2面採光、3面採光、2面採光、閑静な住宅街
|
|
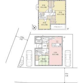
間取図
1階・家族空間、2階・プライベート空間に分けられた間取となっております
|
外観
角地に面しているため、開放感のある住まいを実現。
|
<
その他の画像
>
|
| 交通 | JR川越線 西大宮駅 徒歩19分 |
|---|
| その他の交通 | JR京浜東北線 大宮駅 【バス】 25分 東五味貝戸 停歩2分 JR川越線 指扇駅 徒歩30分 |
| 所在地 |
埼玉県さいたま市西区三橋6丁目
|
| 物件種目 |
中古一戸建て |
| 価格 |
3,780万円 |
借地期間・地代(月額) |
- |
| 権利金 |
- |
敷金または保証金 |
- / - |
| 維持費等 |
- |
その他一時金 |
- |
| 間取り |
4LDK(4LDK→5LDKへ変更可(別途費用負担有)) |
建物面積 |
104.54m² |
| 土地権利 |
所有権 |
建物構造 |
木造 |
| 土地面積 |
114.59m²(公簿) |
私道負担面積 |
なし |
| 築年月 |
2023年6月(築2年5ヶ月)
|
都市計画 |
市街化区域 |
| 建物名 |
さいたま市西区三橋6丁目 中古戸建 |
建築確認番号 |
- |
| 用途地域 |
2種住居、2種中高 |
駐車場 |
有 無料 |
| 建ぺい率 |
70% |
容積率 |
160% |
| 階建 |
2階建 |
接道状況 |
南西 4.0m 公道
・ 北西 4.0m 公道
・ 二方道路
|
| 地目 |
宅地 |
地勢 |
平坦 |
| 国土法届出 |
- |
セットバック |
- |
| アピールポイント |
◇◆2023年6月築*大変綺麗にお使いです◆◇
大変綺麗にお使いいただいておりますので、
リフォーム費用を抑えたいなど、
お考えのお客様はぜひ一度ご見学ください!
◇◆開放感のある住まい◆◇
角地に位置しているため、開放感のある住まいでございます!
LDKは三面採光により、温かな日差しや心地よい風に包まれ、
快適な家族空間となっております。
4LDK→5LDK対応可能!(別途工事費用要)
◇◆便利な設備が充実◆◇
食器洗浄乾燥機*水栓一体型浄水器(キッチン)
タッチレス水栓付洗面台*温水洗浄便座
TVモニター付インターホン*床下収納など
ご見学いただけますので、
ご興味のある方は、ぜひお問い合わせください! |
| リフォーム履歴 |
- |
| リノベーション履歴 |
- |
| 瑕疵保証 |
- |
| 瑕疵保険 |
- |
| 評価・証明書 |
- |
| 備考 |
主要採光面:南西向き
総戸数:1戸
法令等制限:※東南側隣地との地役権設定あり
※ゴミ置き場:2.25m2・持分6分の1あり ※東南側隣地との地役権設定あり(目的:通行・ライフライン管の埋設) ※北西側道路スクールゾーン設定あり(土日・休日を除く7:30~8:00)※4LDK→5LDK対応可能!(別途工事費用要)
|
| エネルギー消費性能 |
- |
| 断熱性能 |
- |
| 目安光熱費 |
- |
| バス・トイレ |
追焚機能、シャワー付洗面化粧台、温水洗浄便座、トイレ2ヶ所、浴室に窓あり |
| キッチン |
カウンターキッチン、システムキッチン、食器洗浄乾燥機、浄水器、3口以上コンロ、グリル |
| 設備・サービス |
全居室収納、ウォークインクローゼット、クローゼット、床下収納、モニター付インターホン、上水道、下水道、都市ガス |
| その他 |
- |
| 現況 |
所有者居住中 |
引渡可能時期 |
相談 |
| 物件番号 |
1188042410 |
|
|
| 情報公開日 |
2025年7月22日 |
次回更新予定日 |
2025年11月6日 |
| ケータイ用バーコード |
- スマートフォンでこの物件を見る
- スマートフォンからもこの物件をご覧になれます。
|
※「-」と表示されている項目については、情報提供会社にご確認ください。
| 周辺施設 |
大宮西小学校 |
| 距離 |
1200m |
写真を見る |
| 周辺施設 |
大宮西中学校 |
| 距離 |
1200m |
写真を見る |
| 周辺施設 |
さいたま市立三橋西保育園 |
| 距離 |
140m |
写真を見る |
| 周辺施設 |
コープみらい コープ指扇店 |
| 距離 |
1000m |
写真を見る |
ここから簡単にお問い合わせをすることができます。
(SSLでの暗号化での送信を希望されるお客さまは
こちら
よりお問い合わせください)
お問い合わせを行う前に
「個人情報の取り扱いについて」を必ずお読みください。
「個人情報の取り扱いについて」に同意いただいた場合は「上記にご同意の上 確認画面へ進む」のボタンをクリックしてください。
個人情報の取り扱いについて
皆さまが送付された個人情報はアットホーム(株)のサーバを経由し、お問い合わせ先の不動産会社にメールまたはFAXにて転送されるためアットホーム(株)にも保管されます。アットホーム(株)で保管された個人情報の取り扱いについては、【こちら】をご覧ください。
また、本画面でご記入いただいた個人情報は、お問い合わせ先の不動産会社でも保管します。 お問い合わせ先の不動産会社が保管する個人情報の取り扱いについては、不動産会社に直接お問い合わせください。
国土交通大臣免許(13)第2401号 |
|---|
- 交通:
- JR京浜東北線/大宮駅 徒歩15分 【バス】3分 上小町バス停 停歩1分
- 埼玉県さいたま市大宮区上小町482-2 第8横溝ビル1F
- TEL:
- 0120-988-320
- FAX:
- 048-877-3401
- 所属団体:
- (公社)埼玉県宅地建物取引業協会会員(一社)全国住宅産業協会会員(公社)首都圏不動産公正取引協議会加盟
取引態様:専任媒介  - 00270728
|
- スマートフォンで
この不動産会社を見る

|
- 提携サイト等より掲載されている物件情報につきましては、不動産会社詳細情報にリンクされていないものがあります。
- 物件に関するお問合せは、物件詳細ページの「情報提供会社」に表示されている不動産会社へ直接お願いいたします。
- 間取図は、現況を優先させていただきます。
- 映像は物件の一部を撮影したものです。物件の契約にあたっての最終判断はご自身の判断に基づいて行ってください。
- 仲介手数料について

アットホームは物件情報の適正化に努めております。
内容に誤りがある場合にはこちらへご連絡ください。