埼玉県戸田市大字新曽(戸田駅)の一戸建て:物件詳細
交通 所在地 |
駅徒歩 |
価格 |
間取り 建物面積 |
土地面積 私道負担面積 |
物件種目 築年月 |
|
JR埼京線/戸田
埼玉県戸田市大字新曽
|
19分
|
5,380万円
|
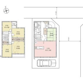
5LDK
113.44m²
|
105.14m²
なし
|
中古一戸建て
2011年10月(築14年3ヶ月)
|
|
バリアフリー、閑静な住宅街、オール電化、整形地、分譲地内
|
|
間取図
間取図
|
リビング
リビング(2025年11月撮影)
|
<
その他の画像
>
|
| 交通 | JR埼京線 戸田駅 徒歩19分 |
|---|
| その他の交通 | JR埼京線 戸田公園駅 徒歩30分 JR埼京線 北戸田駅 徒歩23分 |
| 所在地 |
埼玉県戸田市大字新曽
|
| 物件種目 |
中古一戸建て |
| 価格 |
5,380万円 |
借地期間・地代(月額) |
- |
| 権利金 |
- |
敷金または保証金 |
- / - |
| 維持費等 |
- |
その他一時金 |
- |
| 間取り |
5LDK |
建物面積 |
113.44m² |
| 土地権利 |
所有権 |
建物構造 |
木造 |
| 土地面積 |
105.14m²(公簿) |
私道負担面積 |
なし |
| 築年月 |
2011年10月(築14年3ヶ月)
|
都市計画 |
市街化区域 |
| 建物名 |
戸田市大字新曽 戸建 |
建築確認番号 |
- |
| 用途地域 |
1種住居 |
駐車場 |
有 無料 |
| 建ぺい率 |
60% |
容積率 |
200% |
| 階建 |
2階建 |
接道状況 |
東 6.0m 公道 接面12.1m
・ 北 5.2m 公道 接面5.4m
|
| 地目 |
宅地 |
地勢 |
- |
| 国土法届出 |
- |
セットバック |
- |
| リフォーム履歴 |
- |
| リノベーション履歴 |
- |
| 瑕疵保証 |
- |
| 瑕疵保険 |
- |
| 評価・証明書 |
- |
| 備考 |
≪全7区画の旧分譲地 形成された街並み≫●北東角地 南側にカースペースがあり陽当たり良好●スペースの使い分ができるロフト付き洋室♪●1階はLDK約17.5帖+和室やく6帖の広さ●キッチンはコミュニケーションのとりやすい対面式キッチン●エコキュート新規交換済(2025年7月)●室内とても丁寧にお使いいただいております。●「マルエツ戸田氷川町店」徒歩3分●「新曽北小学校」徒歩14分●「ウエルシア戸田新曽店」徒歩9分※地区計画:新曽中央地区
|
| エネルギー消費性能 |
- |
| 断熱性能 |
- |
| 目安光熱費 |
- |
| バス・トイレ |
浴室乾燥機、追焚機能、トイレ2ヶ所、浴室に窓あり |
| キッチン |
カウンターキッチン、システムキッチン、食器洗浄乾燥機、IHクッキングヒーター |
| 設備・サービス |
床下収納、モニター付インターホン、シャッター雨戸、上水道、下水道 |
| その他 |
- |
| 現況 |
空家 |
引渡可能時期 |
即時 |
| 物件番号 |
1188059410 |
|
|
| 情報公開日 |
2025年10月6日 |
次回更新予定日 |
2025年12月21日 |
| ケータイ用バーコード |
- スマートフォンでこの物件を見る
- スマートフォンからもこの物件をご覧になれます。
|
※「-」と表示されている項目については、情報提供会社にご確認ください。
| 周辺施設 |
新曽北小学校 |
| 距離 |
1070m |
写真を見る |
| 周辺施設 |
新曽中学校 |
| 距離 |
1300m |
写真を見る |
ここから簡単にお問い合わせをすることができます。
(SSLでの暗号化での送信を希望されるお客さまは
こちら
よりお問い合わせください)
お問い合わせを行う前に
「個人情報の取り扱いについて」を必ずお読みください。
「個人情報の取り扱いについて」に同意いただいた場合は「上記にご同意の上 確認画面へ進む」のボタンをクリックしてください。
個人情報の取り扱いについて
皆さまが送付された個人情報はアットホーム(株)のサーバを経由し、お問い合わせ先の不動産会社にメールまたはFAXにて転送されるためアットホーム(株)にも保管されます。アットホーム(株)で保管された個人情報の取り扱いについては、【こちら】をご覧ください。
また、本画面でご記入いただいた個人情報は、お問い合わせ先の不動産会社でも保管します。 お問い合わせ先の不動産会社が保管する個人情報の取り扱いについては、不動産会社に直接お問い合わせください。
国土交通大臣免許(13)第2401号 |
|---|
- 交通:
- JR埼京線/戸田駅 徒歩4分
- 埼玉県戸田市大字新曽93-1 La Vert戸田 1F
- TEL:
- 048-430-5611
- FAX:
- 048-430-5612
- 所属団体:
- (一社)全国住宅産業協会会員(公社)埼玉県宅地建物取引業協会会員(公社)首都圏不動産公正取引協議会加盟
取引態様:専任媒介  - 00274891
|
- スマートフォンで
この不動産会社を見る

|
- 提携サイト等より掲載されている物件情報につきましては、不動産会社詳細情報にリンクされていないものがあります。
- 物件に関するお問合せは、物件詳細ページの「情報提供会社」に表示されている不動産会社へ直接お願いいたします。
- 間取図は、現況を優先させていただきます。
- 映像は物件の一部を撮影したものです。物件の契約にあたっての最終判断はご自身の判断に基づいて行ってください。
- 仲介手数料について

アットホームは物件情報の適正化に努めております。
内容に誤りがある場合にはこちらへご連絡ください。