千葉県柏市青葉台2丁目(南柏駅)の一戸建て:物件詳細
交通 所在地 |
駅徒歩 |
価格 |
間取り 建物面積 |
土地面積 私道負担面積 |
物件種目 築年月 |
JR千代田・常磐緩行線/南柏 【バス】19分 青葉台 停歩3分
千葉県柏市青葉台2丁目
|
-
|
2,980万円
|
4LDK
95.57m²
|
127.05m²
なし
|
中古一戸建て
2023年8月(築2年3ヶ月)
|
南向き
|
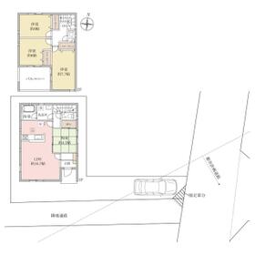
間取図
1階はLDK16.7帖のリビング!和室4.5帖
|
外観
フロアコーティングで室内大変綺麗です
|
<
その他の画像
>
|
交通 | JR千代田・常磐緩行線 南柏駅 【バス】 19分 青葉台 停歩3分 |
---|
その他の交通 | 京成松戸線 常盤平駅 徒歩25分 |
所在地 |
千葉県柏市青葉台2丁目
|
物件種目 |
中古一戸建て |
価格 |
2,980万円 |
借地期間・地代(月額) |
- |
権利金 |
- |
敷金または保証金 |
- / - |
維持費等 |
- |
その他一時金 |
- |
間取り |
4LDK |
建物面積 |
95.57m² |
土地権利 |
所有権 |
建物構造 |
木造 |
土地面積 |
127.05m²(公簿) |
私道負担面積 |
なし |
築年月 |
2023年8月(築2年3ヶ月)
|
都市計画 |
市街化区域 |
建物名 |
柏市青葉台2丁目 戸建て |
建築確認番号 |
- |
用途地域 |
1種住居 |
駐車場 |
有 無料 |
建ぺい率 |
60% |
容積率 |
200% |
階建 |
2階建 |
接道状況 |
東 5.4m 公道 接面2.7m
|
地目 |
宅地 |
地勢 |
- |
国土法届出 |
- |
セットバック |
- |
アピールポイント |
1階はLDK16.7帖のリビング!和室4.5帖
広々インナーバルコニーで急な雨でも安心
フロアコーティングで室内大変綺麗です
不在時にも荷物が受け取れる宅配ボックスあり
リビングと和室が隣接しており客間やお昼寝スペースとしてもお使いいただけます
家族やゲストとの対話を楽しみながらキッチンワークがこなせる開放的な対面式キッチン |
リフォーム履歴 |
- |
リノベーション履歴 |
- |
瑕疵保証 |
- |
瑕疵保険 |
- |
評価・証明書 |
- |
備考 |
主要採光面:南向き
敷地の一部が都市計画道路「3.3.25箕輪青葉台線幅員25m 計画決定 S43.11.6建3309号にかかっています。駐車スペースは車種幅員をご確認ください。法令上の制限/高度地区・建築基準法第22条区域
|
エネルギー消費性能 |
- |
断熱性能 |
- |
目安光熱費 |
- |
バス・トイレ |
- |
キッチン |
- |
設備・サービス |
上水道、下水道、都市ガス |
その他 |
- |
現況 |
空家 |
引渡可能時期 |
相談 |
物件番号 |
1188078610 |
|
|
情報公開日 |
2025年8月25日 |
次回更新予定日 |
2025年10月17日 |
ケータイ用バーコード |
- スマートフォンでこの物件を見る
- スマートフォンからもこの物件をご覧になれます。
|
※「-」と表示されている項目については、情報提供会社にご確認ください。
周辺施設 |
柏市立酒井根小学校 |
距離 |
1200m |
写真を見る |
周辺施設 |
柏市立酒井根中学校 |
距離 |
1600m |
写真を見る |
周辺施設 |
ヨークマート青葉台店 |
距離 |
350m |
写真を見る |
ここから簡単にお問い合わせをすることができます。
(SSLでの暗号化での送信を希望されるお客さまは
こちら
よりお問い合わせください)
お問い合わせを行う前に
「個人情報の取り扱いについて」を必ずお読みください。
「個人情報の取り扱いについて」に同意いただいた場合は「上記にご同意の上 確認画面へ進む」のボタンをクリックしてください。
個人情報の取り扱いについて
皆さまが送付された個人情報はアットホーム(株)のサーバを経由し、お問い合わせ先の不動産会社にメールまたはFAXにて転送されるためアットホーム(株)にも保管されます。アットホーム(株)で保管された個人情報の取り扱いについては、【こちら】をご覧ください。
また、本画面でご記入いただいた個人情報は、お問い合わせ先の不動産会社でも保管します。 お問い合わせ先の不動産会社が保管する個人情報の取り扱いについては、不動産会社に直接お問い合わせください。
国土交通大臣免許(13)第2401号 |
---|
- 交通:
- JR千代田・常磐緩行線/南柏駅 徒歩1分
- 千葉県柏市南柏中央6-3
- TEL:
- 04-7170-9000
- FAX:
- 04-7170-9900
- 所属団体:
- (一社)千葉県宅地建物取引業協会会員不動産公正取引協議会加盟
取引態様:一般媒介  - 00320318
|
- スマートフォンで
この不動産会社を見る

|
- 提携サイト等より掲載されている物件情報につきましては、不動産会社詳細情報にリンクされていないものがあります。
- 物件に関するお問合せは、物件詳細ページの「情報提供会社」に表示されている不動産会社へ直接お願いいたします。
- 間取図は、現況を優先させていただきます。
- 映像は物件の一部を撮影したものです。物件の契約にあたっての最終判断はご自身の判断に基づいて行ってください。
- 仲介手数料について

アットホームは物件情報の適正化に努めております。
内容に誤りがある場合にはこちらへご連絡ください。