東京都足立区伊興本町1丁目(竹ノ塚駅)の一戸建て:物件詳細
交通 所在地 |
駅徒歩 |
価格 |
間取り 建物面積 |
土地面積 私道負担面積 |
物件種目 築年月 |
東武伊勢崎線/竹ノ塚
東京都足立区伊興本町1丁目
|
8分
|
6,580万円
|
4LDK
98.22m²
|
104.11m²
なし
|
中古一戸建て
2017年4月(築8年7ヶ月)
|
南向き、天井高2.5M以上、全室2面採光、2面採光、24時間換気システム、閑静な住宅街、分譲地内
|
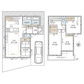
間取図
LDKは約17.1帖、続き間仕様のモダン和室は約5.0帖。ライフスタイルに合わせて暮らせます。
|
外観
東武伊勢崎「竹ノ塚」駅徒歩8分。全居室南向きにつき陽当り・通風良好な4LDK。※2025年8月撮影
|
<
その他の画像
>
|
交通 | 東武伊勢崎線 竹ノ塚駅 徒歩8分 |
---|
その他の交通 | 日暮里舎人ライナー 舎人公園駅 徒歩26分 日暮里舎人ライナー 舎人駅 徒歩30分 |
所在地 |
東京都足立区伊興本町1丁目
|
物件種目 |
中古一戸建て |
価格 |
6,580万円 |
借地期間・地代(月額) |
- |
権利金 |
- |
敷金または保証金 |
- / - |
維持費等 |
維持管理費:10,000円/年 |
その他一時金 |
- |
間取り |
4LDK |
建物面積 |
98.22m² |
土地権利 |
所有権 |
建物構造 |
木造 |
土地面積 |
104.11m²(公簿) |
私道負担面積 |
なし |
築年月 |
2017年4月(築8年7ヶ月)
|
都市計画 |
市街化区域 |
建物名 |
ポラス足立区伊興本町1丁目 戸建て |
建築確認番号 |
- |
用途地域 |
1種低層、1種住居 |
駐車場 |
有 無料 |
建ぺい率 |
50% |
容積率 |
100% |
階建 |
2階建 |
接道状況 |
南 6.0m
|
地目 |
宅地 |
地勢 |
- |
国土法届出 |
- |
セットバック |
- |
リフォーム履歴 |
■水回り:2025年10月 トイレ ガスコンロ・畳 ■内装:2025年10月 全室クロス張替え、床(フローリング等) バルコニー防水 ※実施年月は最も古い履歴を表示 |
リノベーション履歴 |
- |
瑕疵保証 |
- |
瑕疵保険 |
- |
評価・証明書 |
- |
備考 |
主要採光面:南向き
|
エネルギー消費性能 |
- |
断熱性能 |
- |
目安光熱費 |
- |
バス・トイレ |
浴室乾燥機、シャワー付洗面化粧台、温水洗浄便座、トイレ2ヶ所、浴室に窓あり |
キッチン |
カウンターキッチン、オープンキッチン、システムキッチン、食器洗浄乾燥機、浄水器、IHクッキングヒーター、3口以上コンロ |
設備・サービス |
ウォークインクローゼット、床暖房、クローゼット、床下収納、モニター付インターホン、電動シャッター、室内物干し、クッションフロア、上水道、下水道、都市ガス、複層ガラス |
その他 |
- |
現況 |
所有者居住中 |
引渡可能時期 |
相談 |
物件番号 |
1188087510 |
|
|
情報公開日 |
2025年9月2日 |
次回更新予定日 |
2025年11月2日 |
ケータイ用バーコード |
- スマートフォンでこの物件を見る
- スマートフォンからもこの物件をご覧になれます。
|
※「-」と表示されている項目については、情報提供会社にご確認ください。
周辺施設 |
東伊興小学校 |
距離 |
660m |
写真を見る |
周辺施設 |
足立第十四中学校 |
距離 |
660m |
写真を見る |
周辺施設 |
ぱんだ保育園 |
距離 |
340m |
写真を見る |
周辺施設 |
三上内科クリニック |
距離 |
160m |
写真を見る |
周辺施設 |
西友竹ノ塚店 |
距離 |
630m |
写真を見る |
周辺施設 |
ライフ竹ノ塚店 |
距離 |
613m |
写真を見る |
周辺施設 |
ドン・キホーテ竹ノ塚店 |
距離 |
769m |
写真を見る |
周辺施設 |
西保木間第二公園 |
距離 |
803m |
写真を見る |
ここから簡単にお問い合わせをすることができます。
(SSLでの暗号化での送信を希望されるお客さまは
こちら
よりお問い合わせください)
お問い合わせを行う前に
「個人情報の取り扱いについて」を必ずお読みください。
「個人情報の取り扱いについて」に同意いただいた場合は「上記にご同意の上 確認画面へ進む」のボタンをクリックしてください。
個人情報の取り扱いについて
皆さまが送付された個人情報はアットホーム(株)のサーバを経由し、お問い合わせ先の不動産会社にメールまたはFAXにて転送されるためアットホーム(株)にも保管されます。アットホーム(株)で保管された個人情報の取り扱いについては、【こちら】をご覧ください。
また、本画面でご記入いただいた個人情報は、お問い合わせ先の不動産会社でも保管します。 お問い合わせ先の不動産会社が保管する個人情報の取り扱いについては、不動産会社に直接お問い合わせください。
(株)中央住宅 Re:polus課国土交通大臣免許(13)第2401号 |
---|
- 交通:
- JR武蔵野線/南越谷駅 徒歩3分
- 埼玉県越谷市南越谷1丁目20-14 Nスクエアー 5F
- TEL:
- 048-945-3792
- FAX:
- 048-990-1727
- 所属団体:
- (公社)埼玉県宅地建物取引業協会会員(公社)首都圏不動産公正取引協議会加盟
取引態様:売主 |
- 提携サイト等より掲載されている物件情報につきましては、不動産会社詳細情報にリンクされていないものがあります。
- 物件に関するお問合せは、物件詳細ページの「情報提供会社」に表示されている不動産会社へ直接お願いいたします。
- 間取図は、現況を優先させていただきます。
- 映像は物件の一部を撮影したものです。物件の契約にあたっての最終判断はご自身の判断に基づいて行ってください。
- 仲介手数料について

アットホームは物件情報の適正化に努めております。
内容に誤りがある場合にはこちらへご連絡ください。